← Surrey Heath Borough Council
26/0196/FFU
Surrey Heath Borough Council
Status
Registered
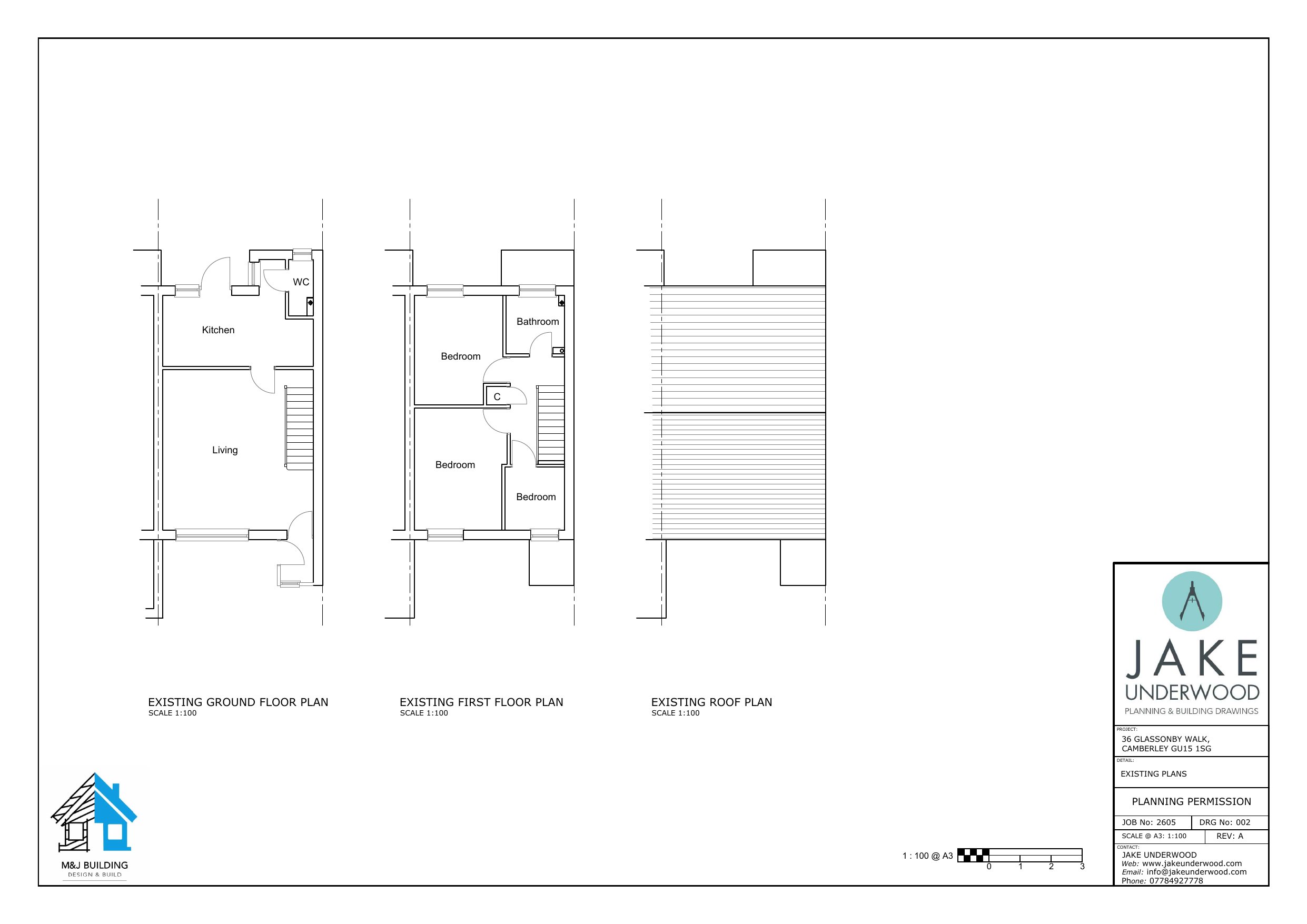
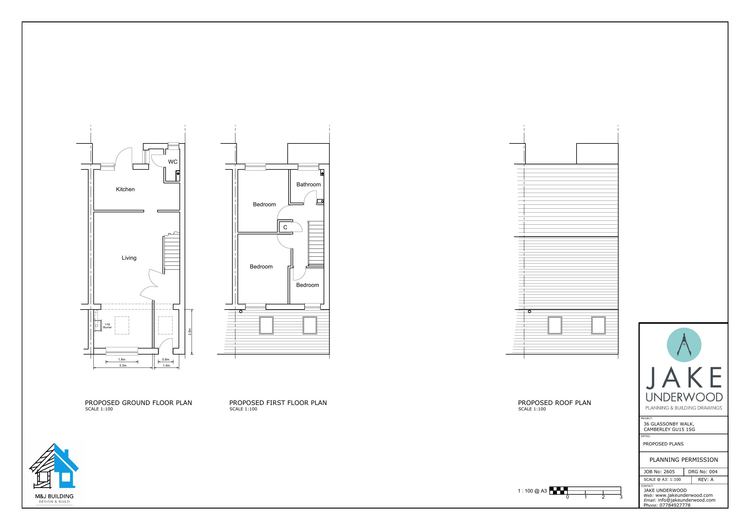
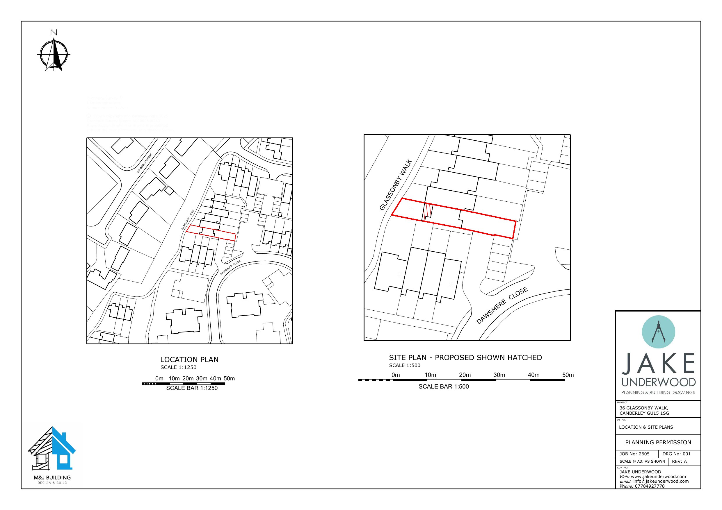
House extension
Received
Last month
New homes
0
Full proposal
Erection of a single storey front extension with log burner flue and fenestration changes.
Documents
Have your say
Your comment matters. Councils must consider every representation that raises material planning considerations.