← Back to Sutton

Status

Pending Consideration
Received 30 Dec 2024
New dwellings n/a

What you can do

Take Action

Make your voice heard. Authorities need to hear from people who support new homes.

Full Proposal

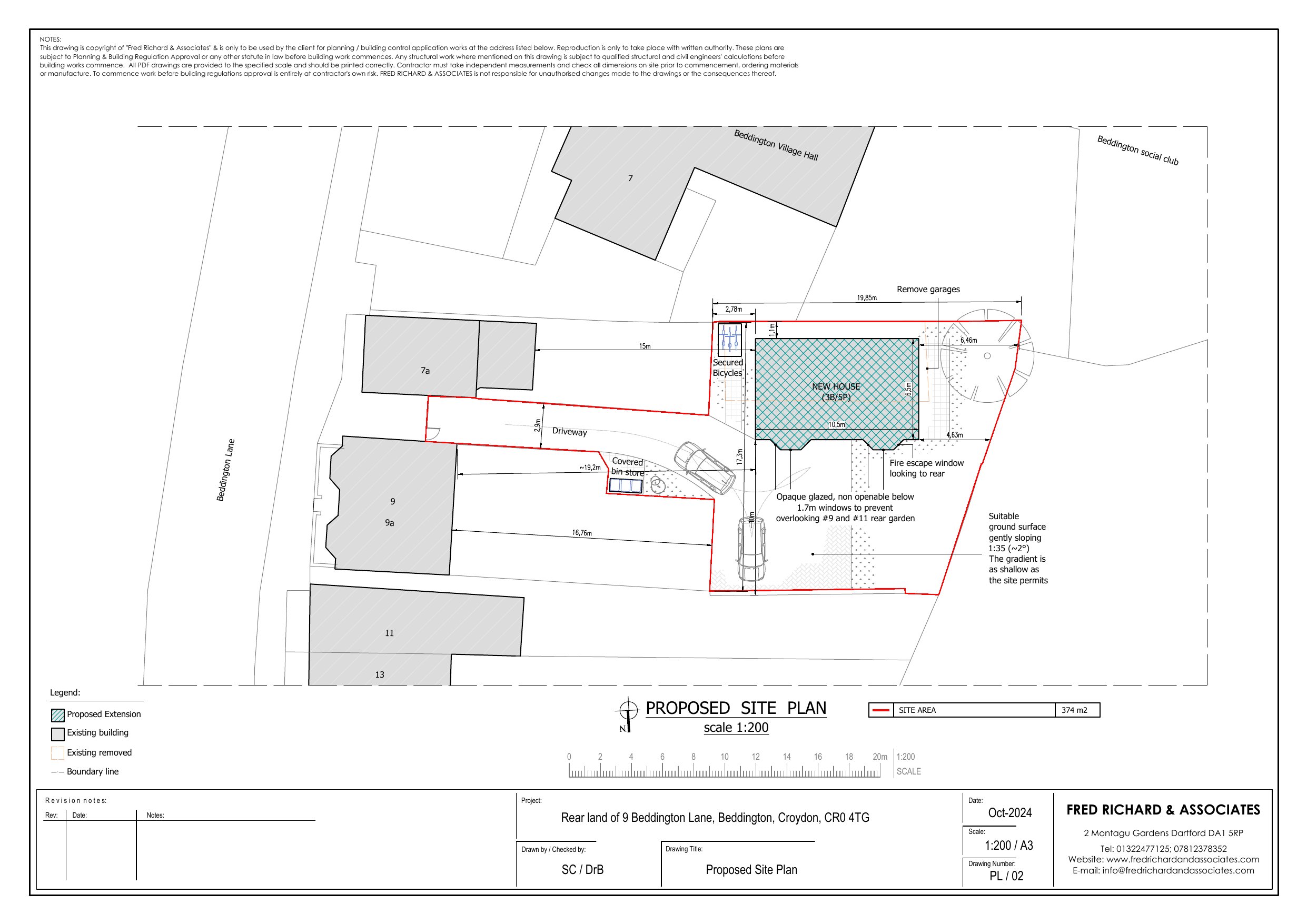
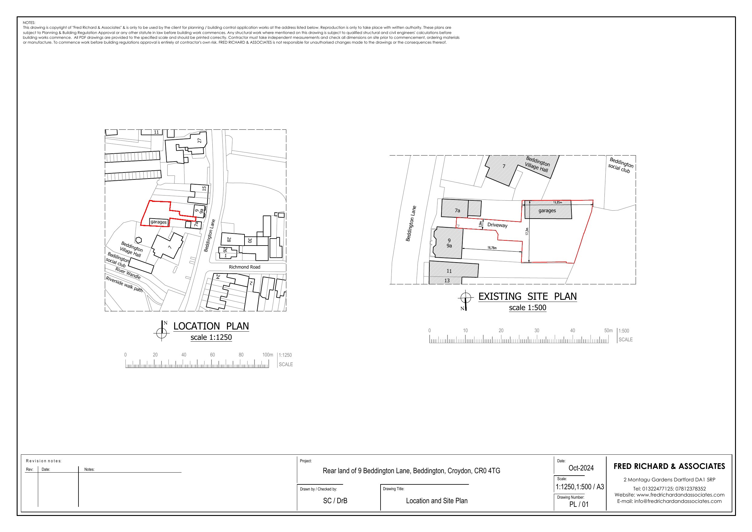
Demolition of the existing garages. Erection of a detached two storey dwelling with refuse, cycle storage and parking to the front with installation of an electrical vehicle charging point.

Detail pages

Documents

Application Form (No personal data)
Application Form
Not downloaded · Council link
Archaeological Assessment
Supporting Document
Not downloaded · Council link
Block Plan (Existing)
Site Plan
Not downloaded · Council link
Block Plan (Proposed)
Drawing
Not downloaded · Council link
Cycle/Bins
Drawing
Not downloaded · Council link
Design and Access Statement
Supporting Document
Not downloaded · Council link
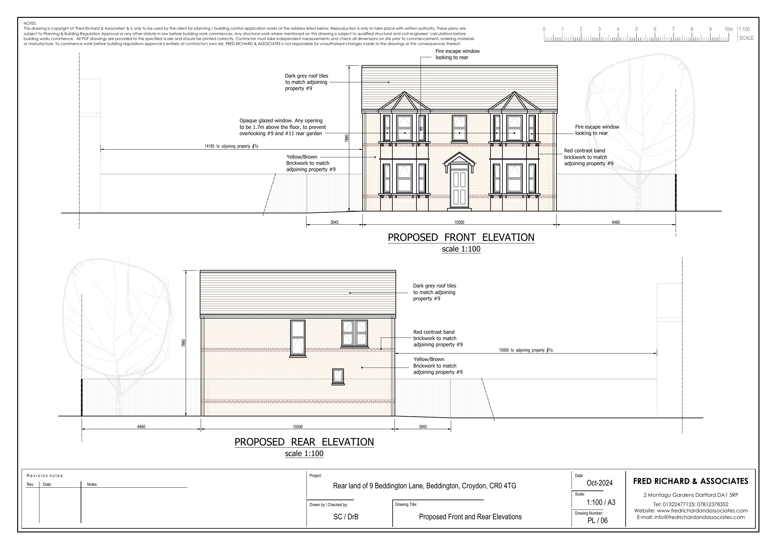
Elevations (Proposed)
Drawing
Not downloaded · Council link
Elevations (Proposed)
Drawing
Not downloaded · Council link
Energy Statement
Supporting Document
Not downloaded · Council link
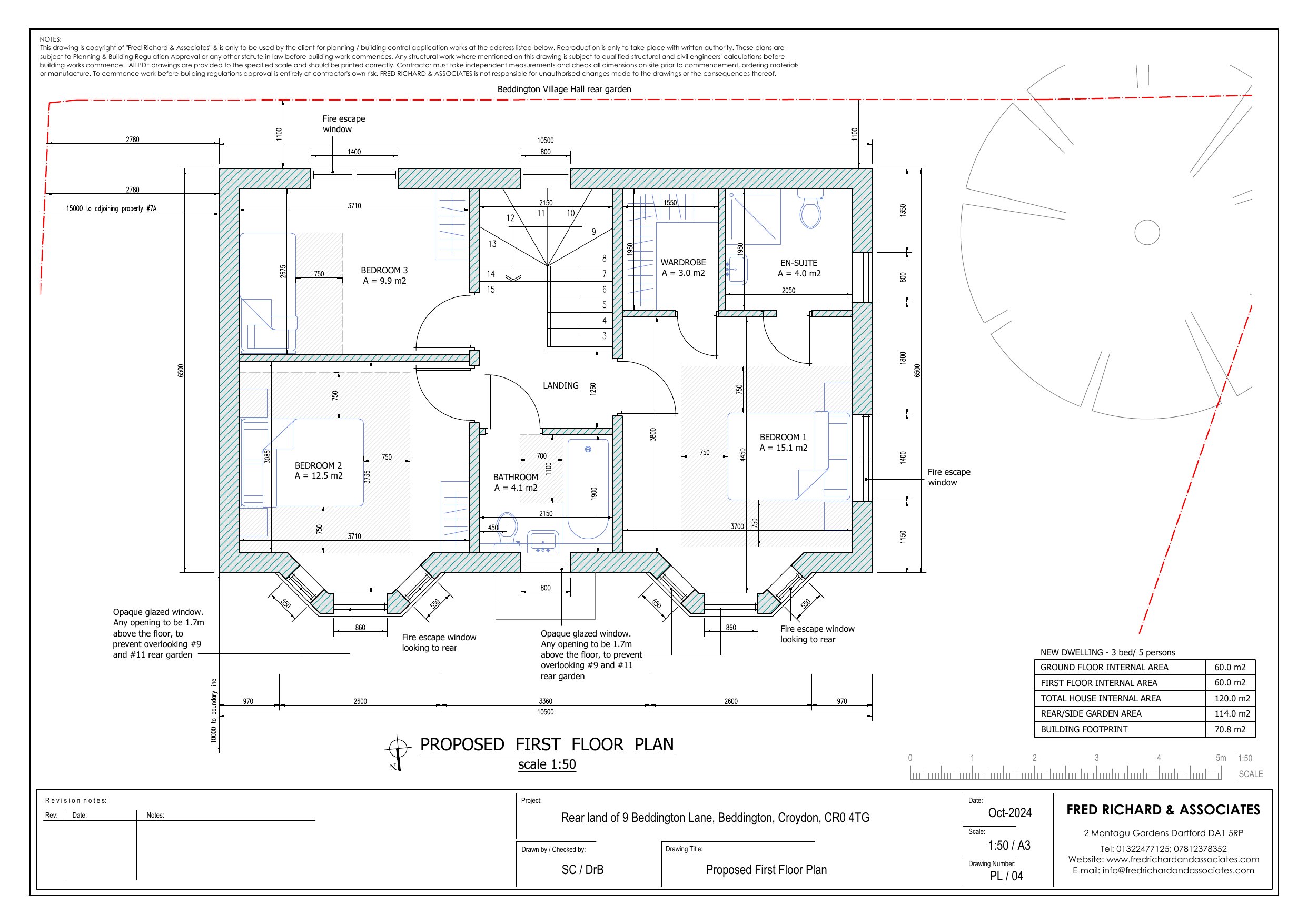
First Floor Plans (Proposed)
Drawing
Not downloaded · Council link
Flood Risk Assessment
Supporting Document
Not downloaded · Council link
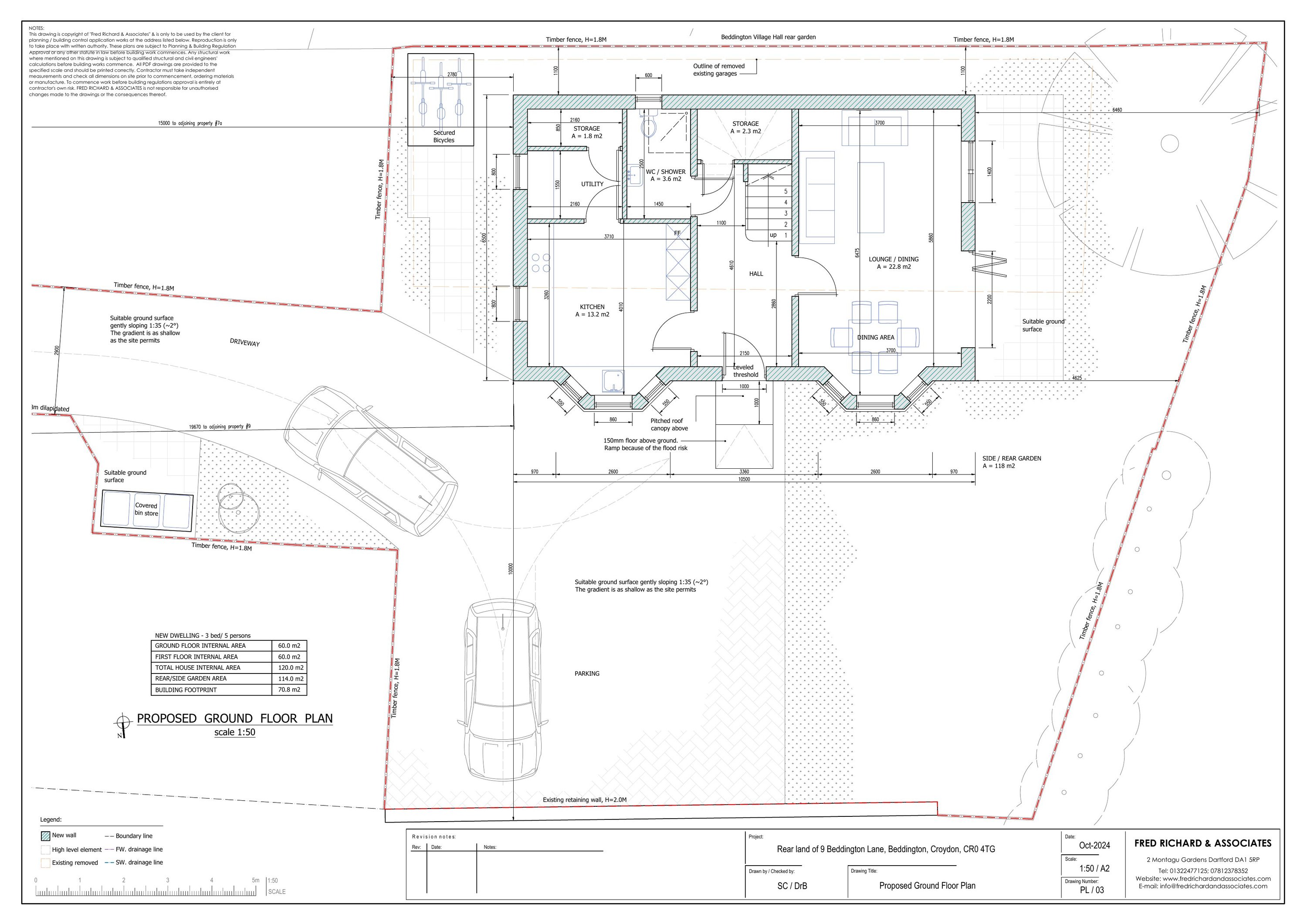
Ground Floor Plans (Proposed)
Drawing
Not downloaded · Council link
Heritage Statement
Supporting Document
Not downloaded · Council link
Press Notice
Press Notice
Not downloaded · Council link
Roof Plan (Proposed)
Drawing
Not downloaded · Council link
Site Notice
Site Notice
Not downloaded · Council link
SuDs Report
Supporting Document
Not downloaded · Council link
Supporting Document
Supporting Document
Not downloaded · Council link
WASTE MANAGEMENT, STORAGE & COLLECTION STRATEGY (1)
Supporting Document
Not downloaded · Council link