← Sutton

Status

Pending Consideration House extension
Received
18 Dec 2025
New homes
0

Full proposal

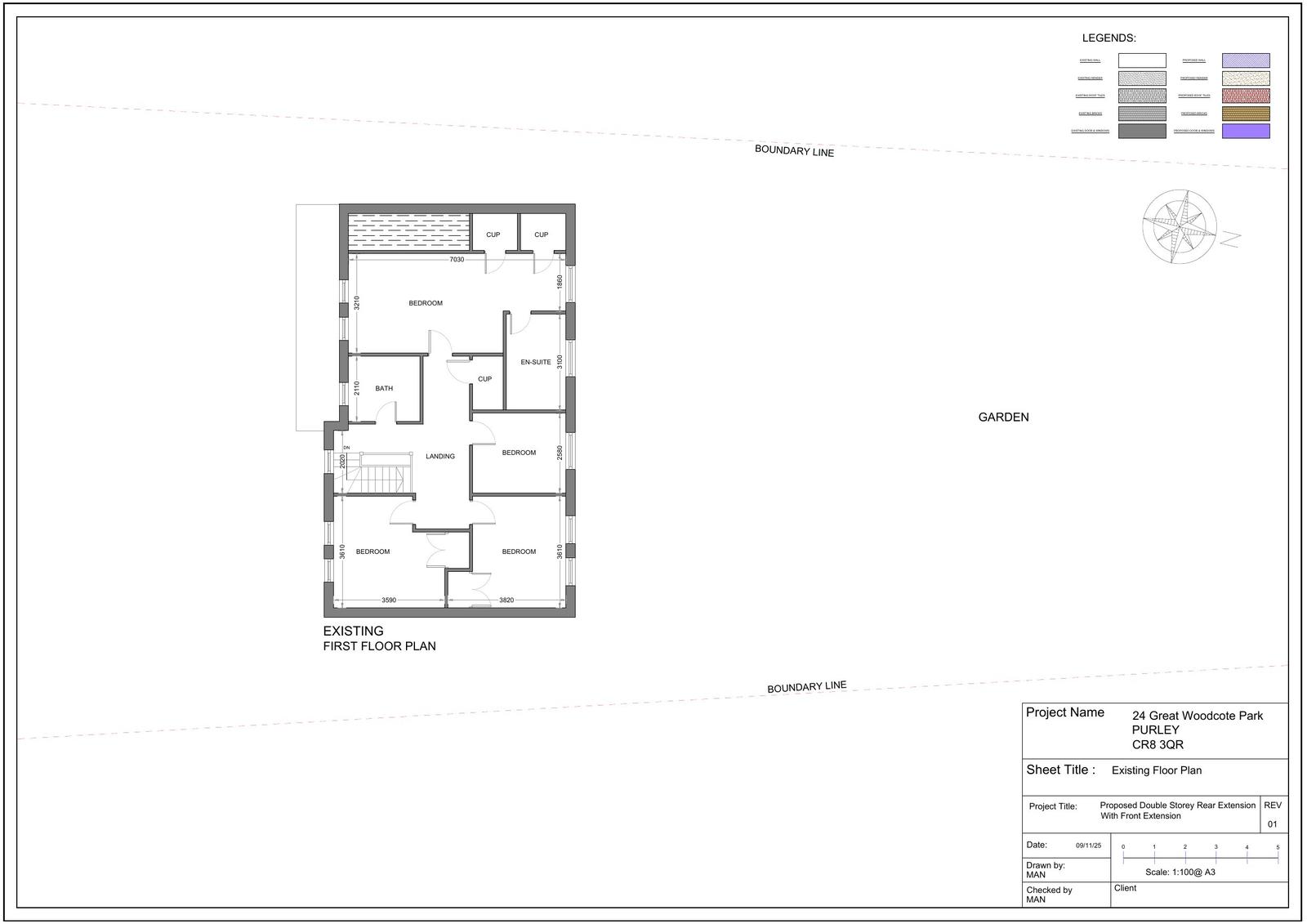
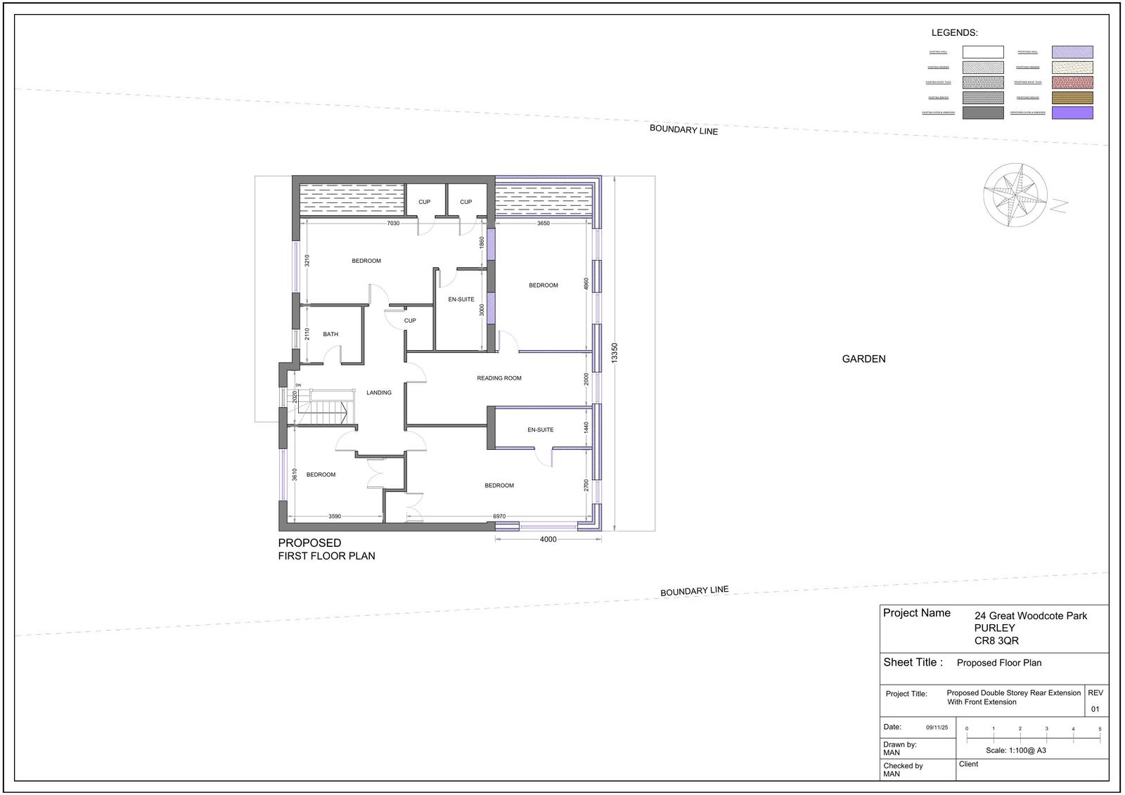
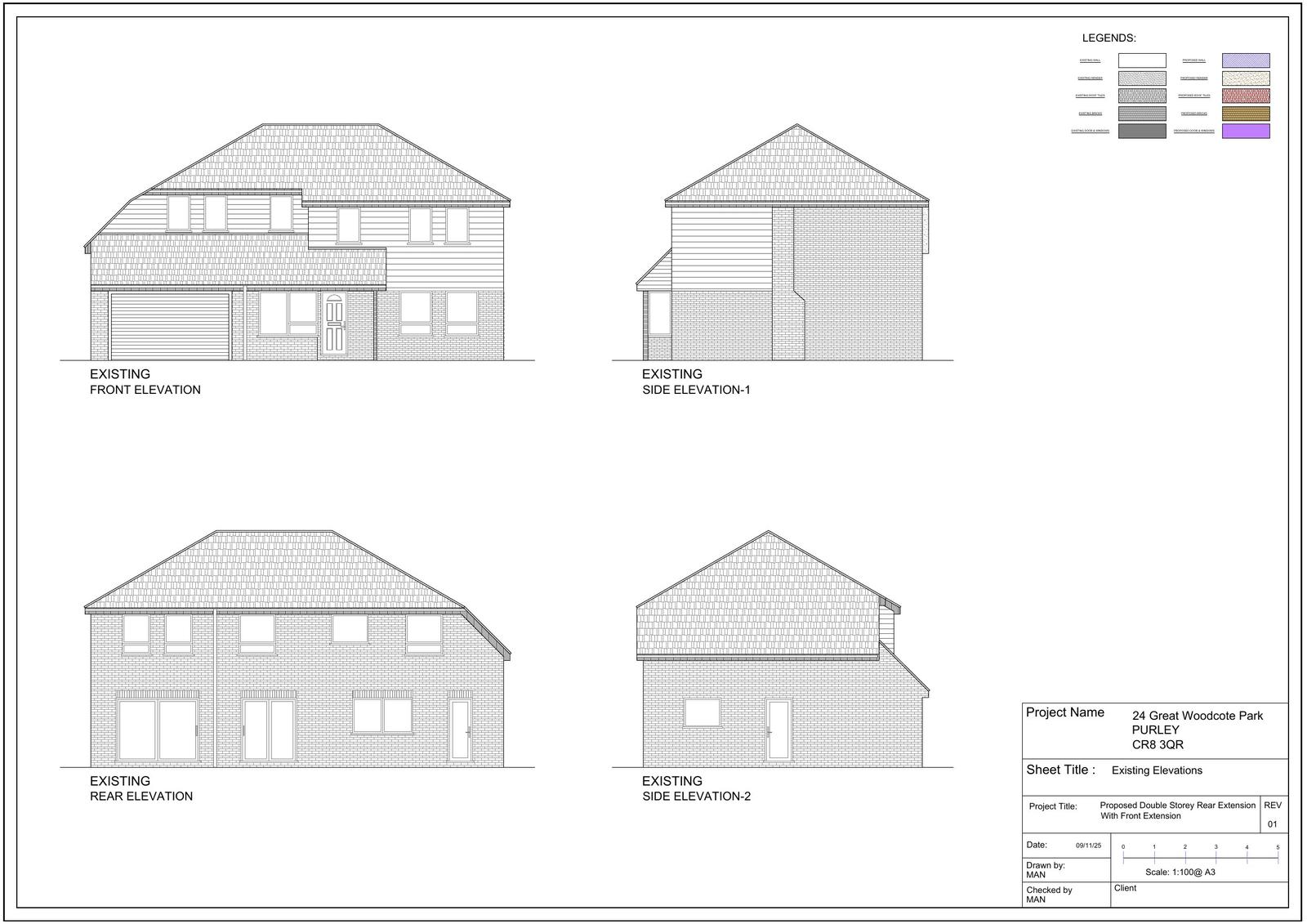
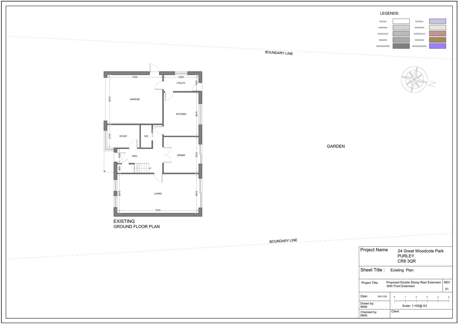
Erection of a single storey front extension, a part one, part two storey rear extension, formation of a front entrance porch, alterations to existing render and fenestrations.

Have your say

Your comment matters. Councils must consider every representation that raises material planning considerations.

Write a comment