← Sutton

Status

Pending Decision Change of use
Received
09 Oct 2025
New homes
0

Full proposal

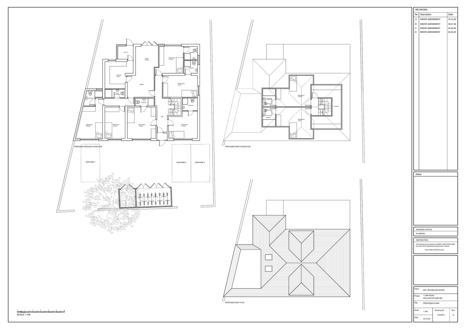
Change of use from Class C4 (Small HMO) to Class Sui Generis (Larger HMO - 8 bedrooms) involving erection of a single storey rear extension, conversion of garage to habitable room, alterations to fenestrations and provision of parking and refuse and cycle storage to front with associated hard landscaping to front.

Documents

Drawing
Archived · Original link
Drawing
Archived · Original link
Revised Drawing
Archived · Original link
Revised Drawing
Archived · Original link

Have your say

Your comment matters. Councils must consider every representation that raises material planning considerations.

Write a comment