← Sutton

Status

Pending Consideration Commercial
Received
22 Dec 2025
New homes
0

Full proposal

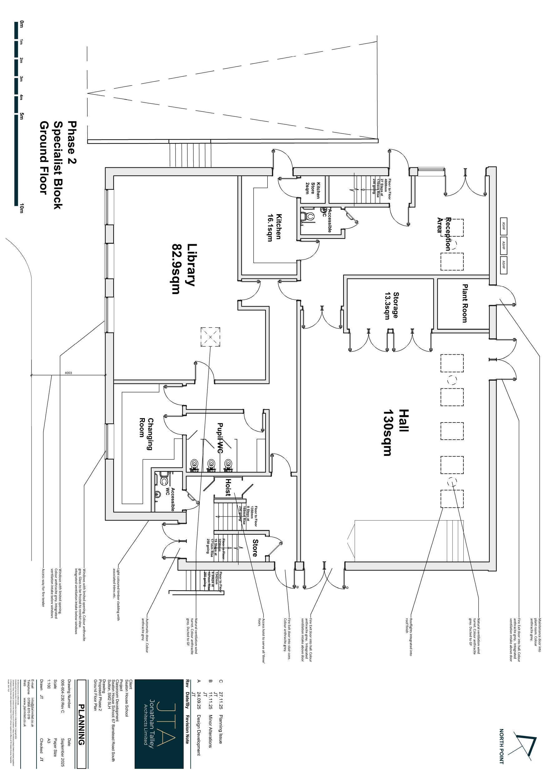
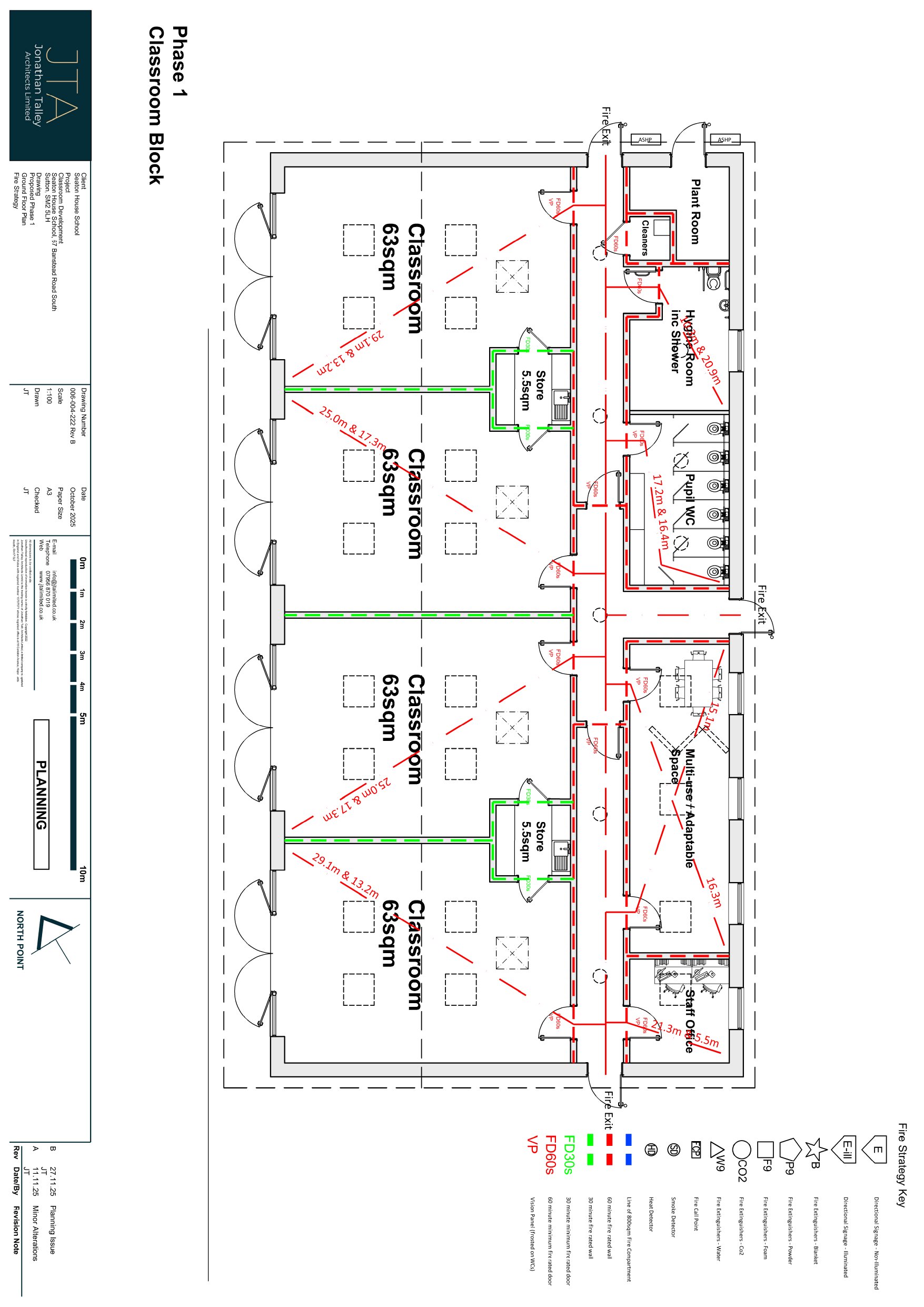
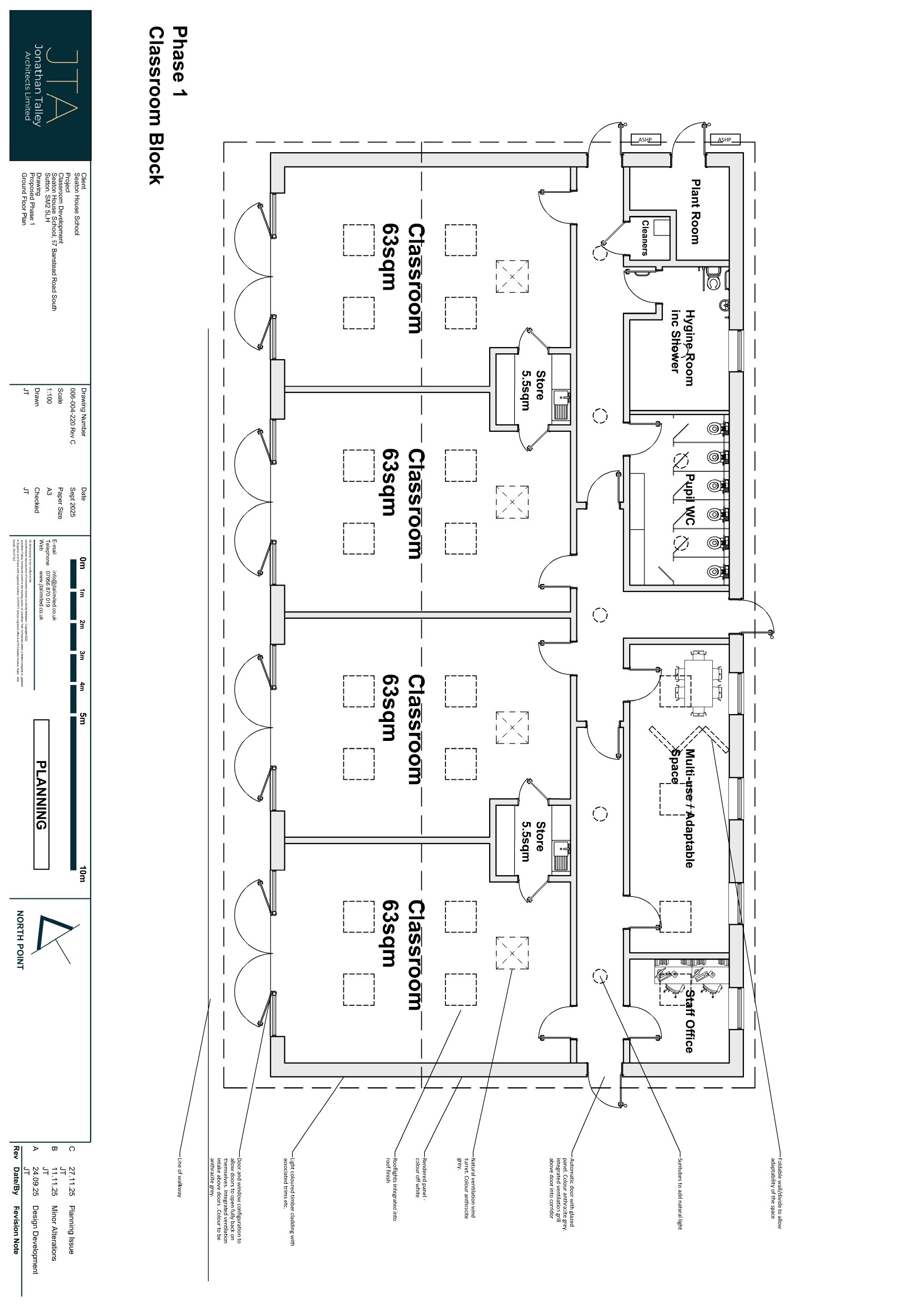
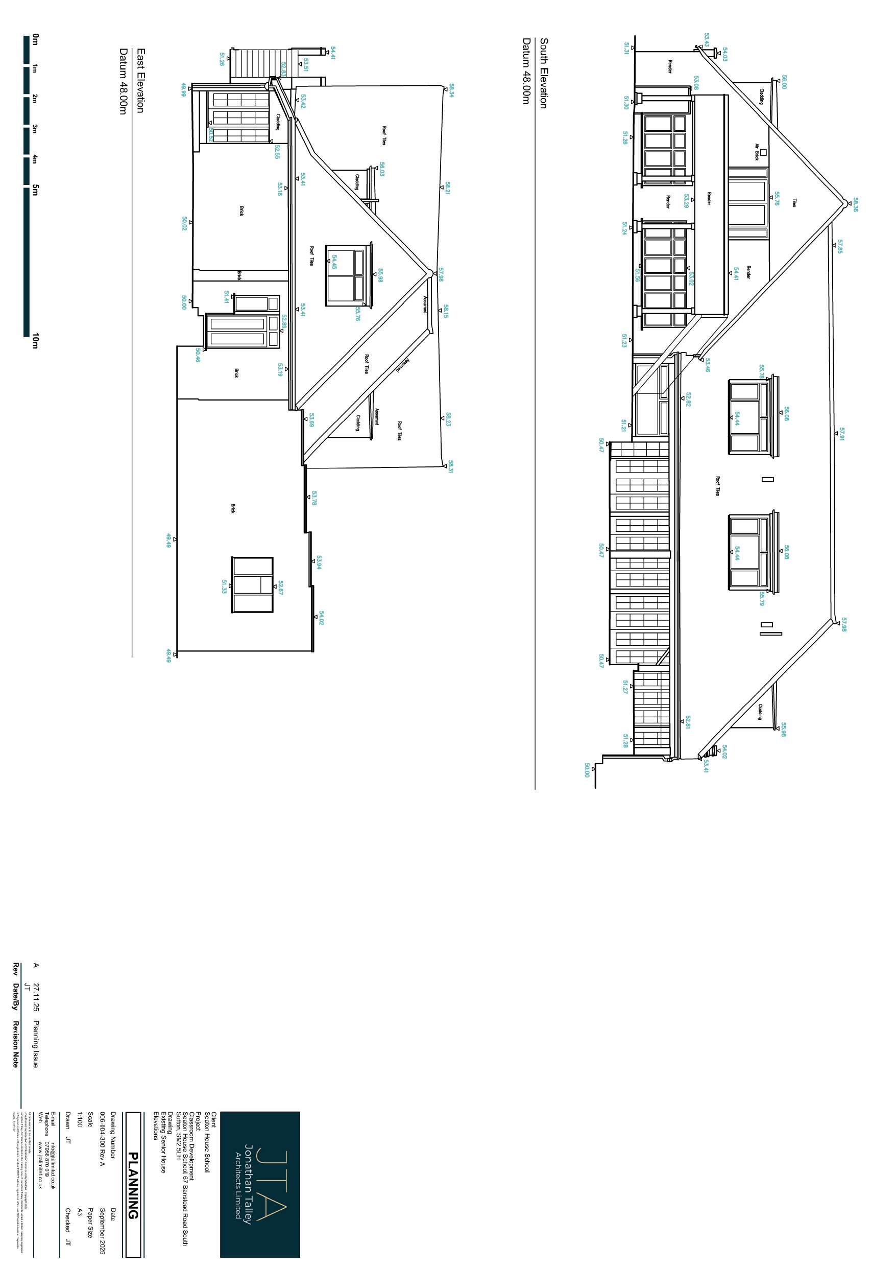
Phased development involving a single storey building providing classrooms (Phase 1), demolition of existing building and erection of a two storey building (Phase 2) and provision of MUGA and associated landscaping (Phase 3).

Documents

Drawing
Archived · Original link
Supporting Document
Archived · Original link
Supporting Document
Archived · Original link
Drawing
Archived · Original link
Drawing
Archived · Original link
Drawing
Archived · Original link
Drawing
Archived · Original link
Drawing
Archived · Original link
Drawing
Archived · Original link

Have your say

Your comment matters. Councils must consider every representation that raises material planning considerations.

Write a comment