← Sutton

Status

Pending Consideration Change of use
Received
22 Dec 2025
New homes
0

Full proposal

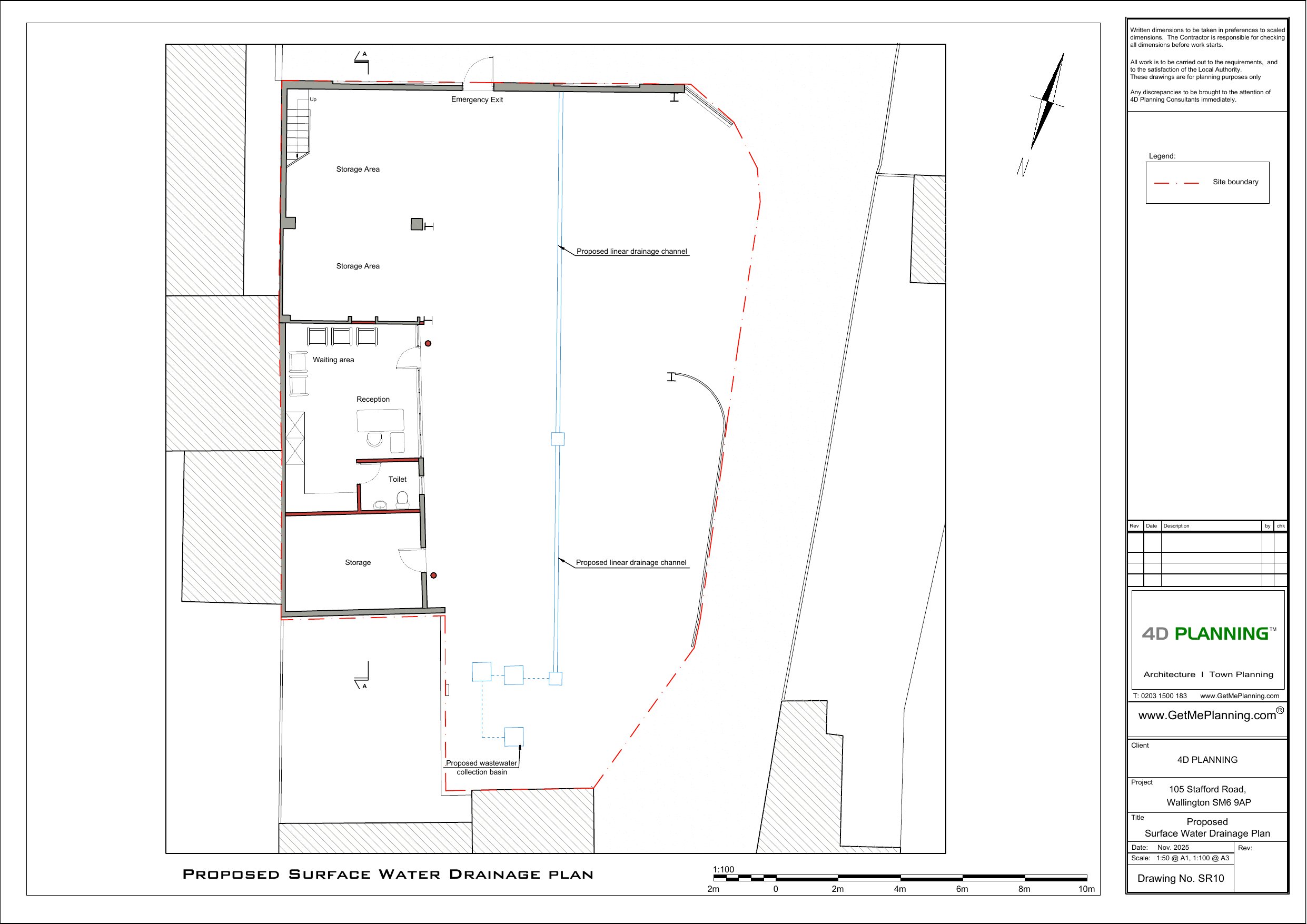
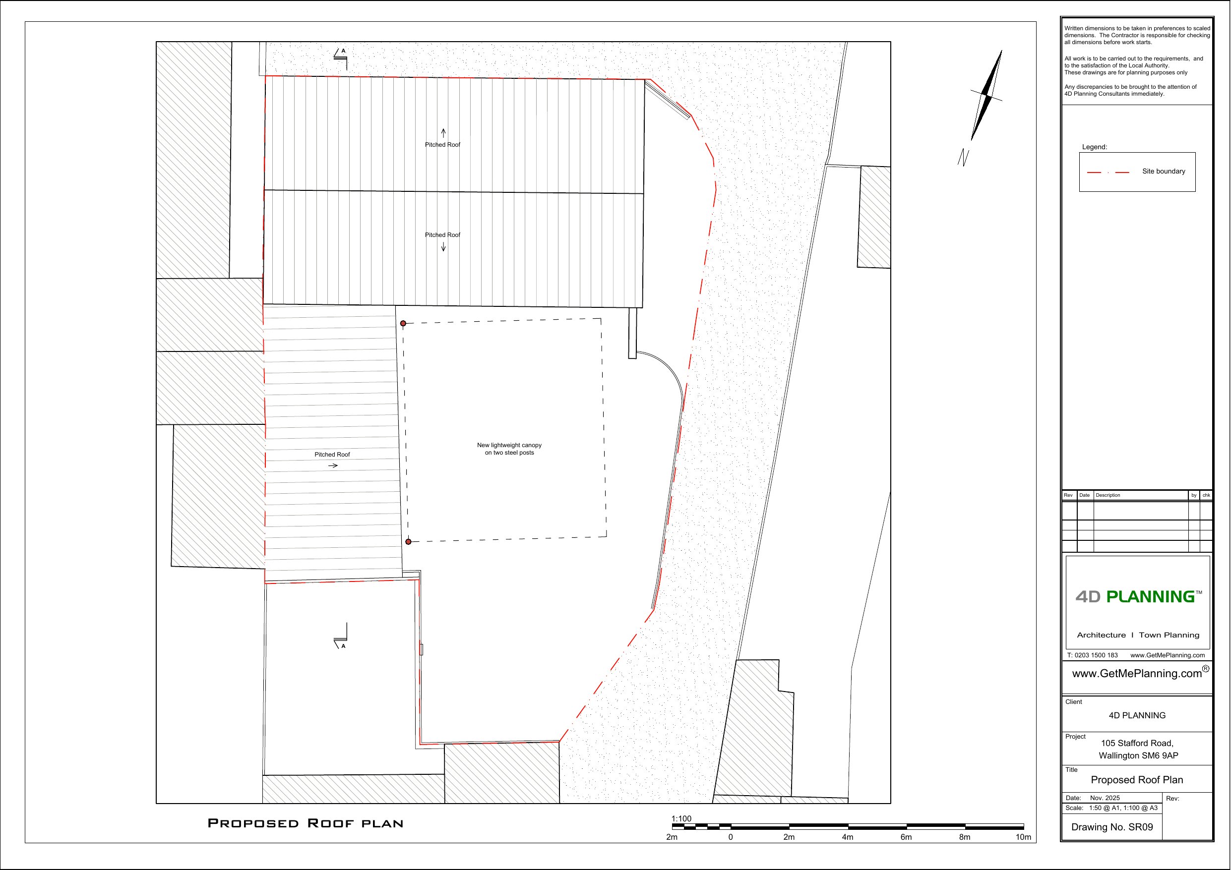
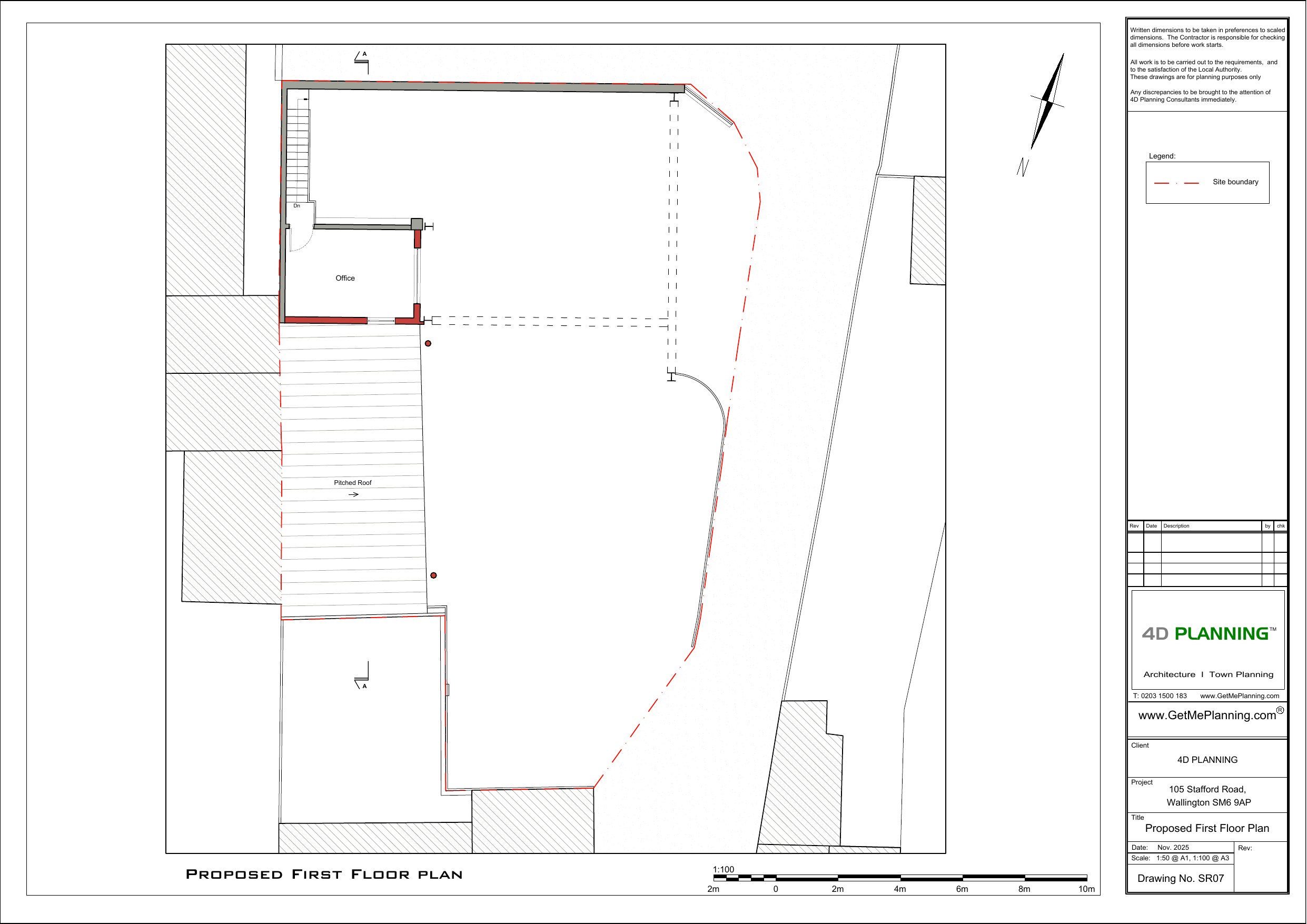
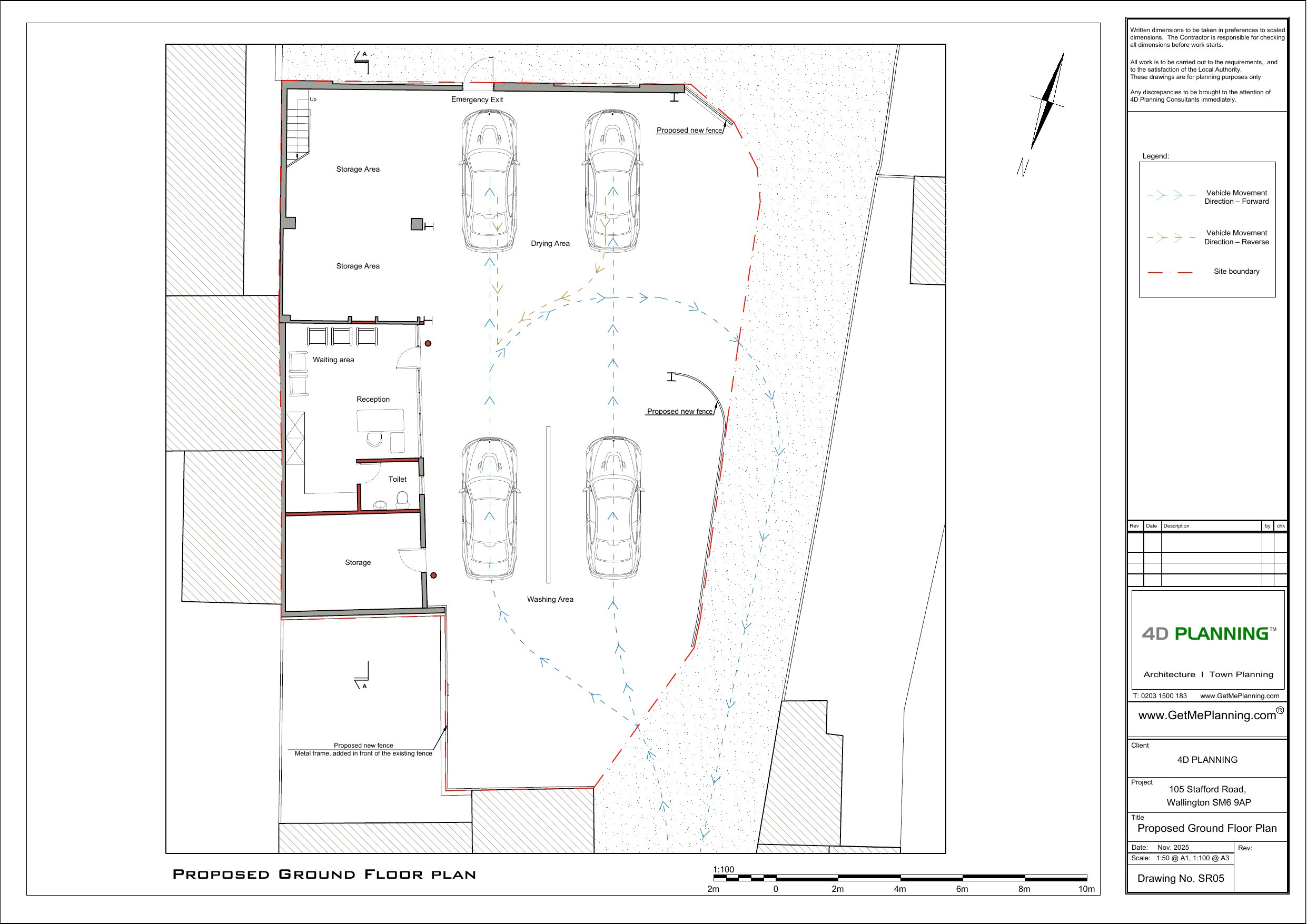
Completion and retention of change of use from Class E (Industrial) to Sui Generis (Car Wash) involving erection a canopy, installation of external staircase, alterations to fenestrations and new boundary treatment.

Have your say

Your comment matters. Councils must consider every representation that raises material planning considerations.

Write a comment