← Sutton

Status

Pending Consideration House extension
Received
15 Jan 2026
New homes
0

Full proposal

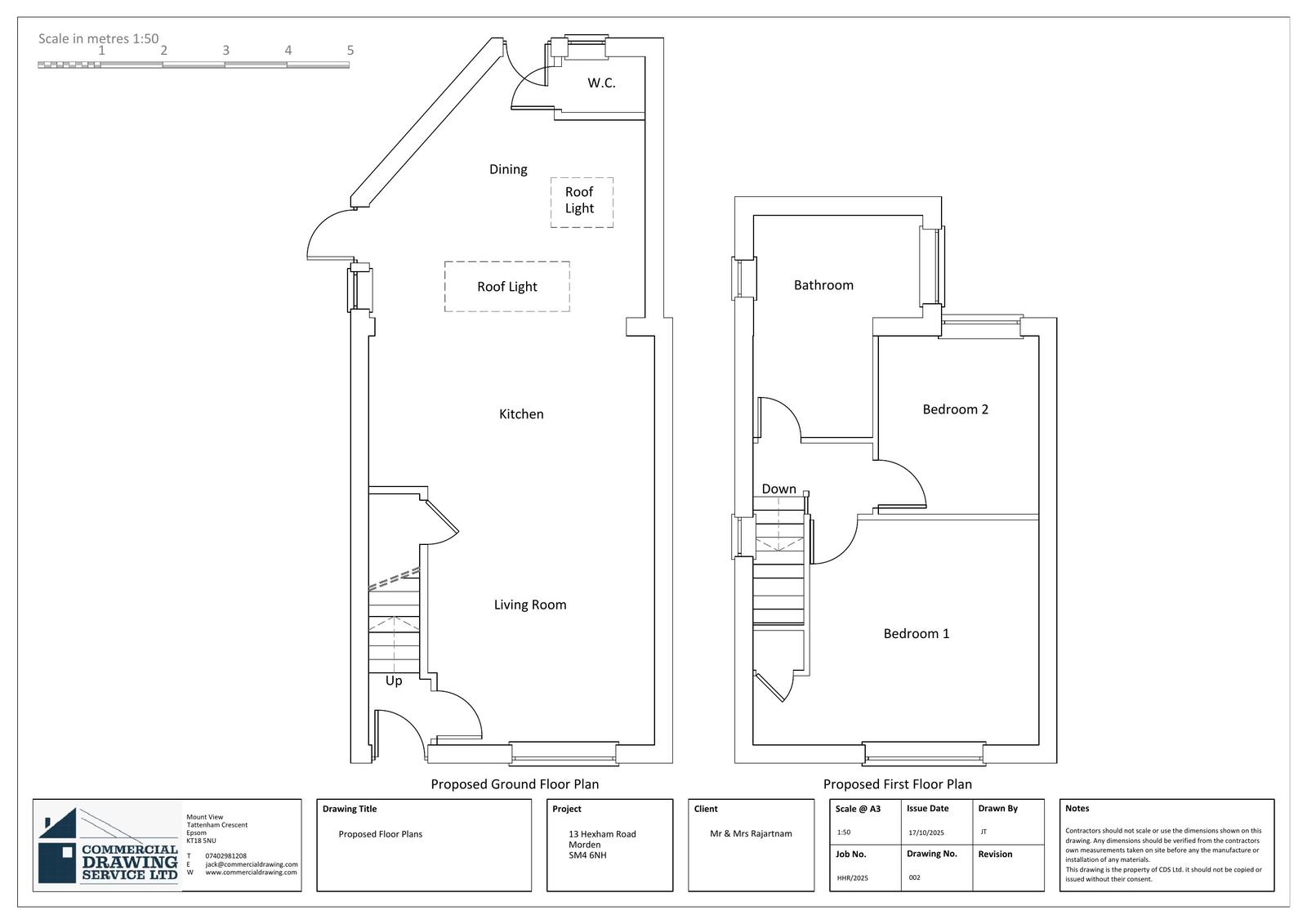
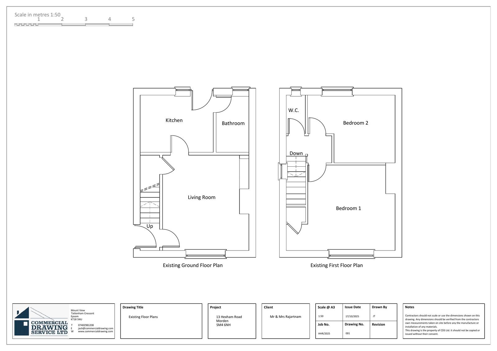
Erection of a part one, part two storey rear extension.

Documents

Revised Drawing
Archived · Original link
Revised Drawing
Archived · Original link
Revised Drawing
Archived · Original link
Revised Drawing
Archived · Original link
Revised Drawing
Archived · Original link

Have your say

Your comment matters. Councils must consider every representation that raises material planning considerations.

Write a comment