← Sutton

Status

Pending Consideration House extension
Received
Last month
New homes
0

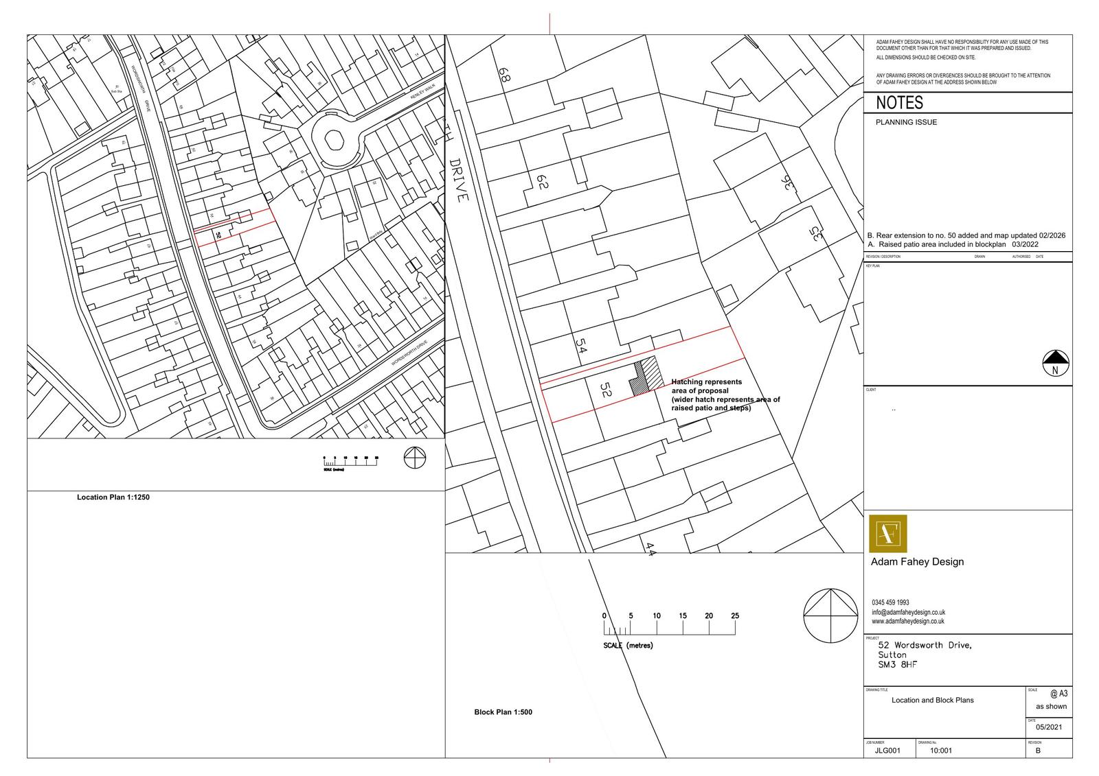
Full proposal

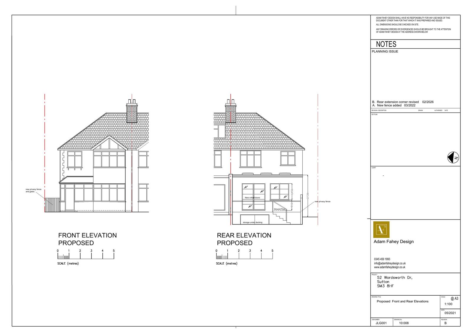
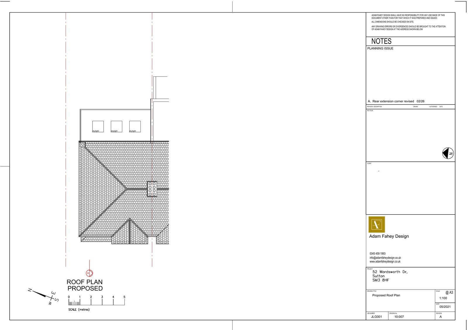
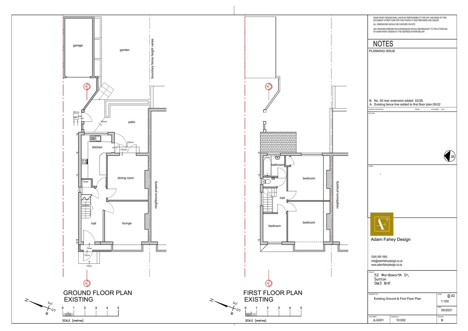
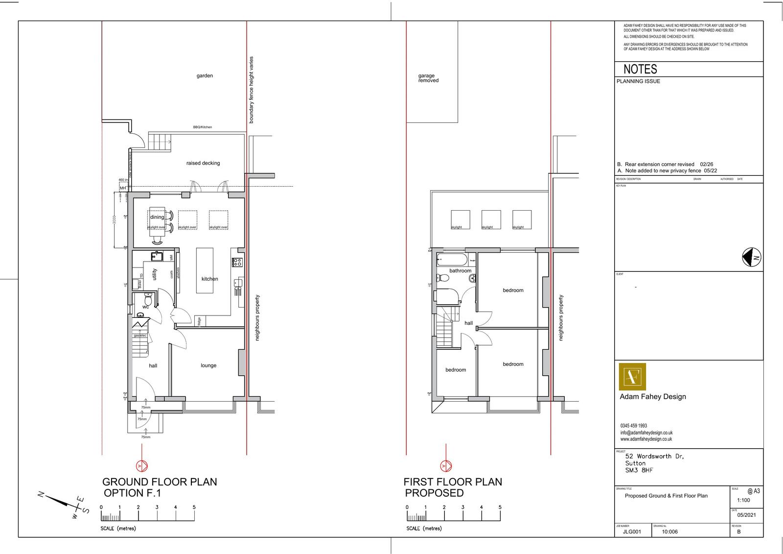
Erection of a single storey rear extension with provision of rear raised decking and a privacy fence.

Have your say

Your comment matters. Councils must consider every representation that raises material planning considerations.

Write a comment