← Sutton

Status

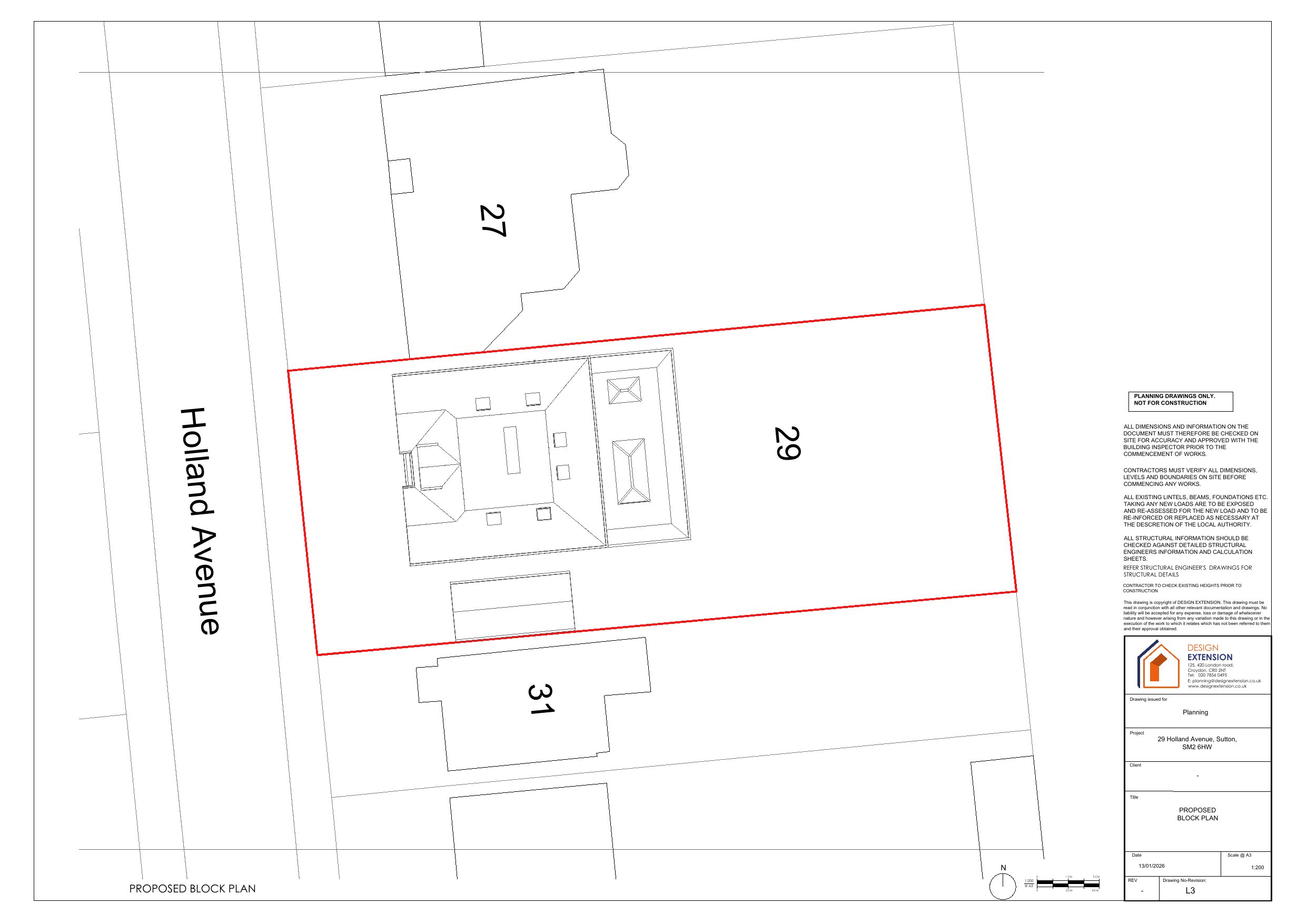
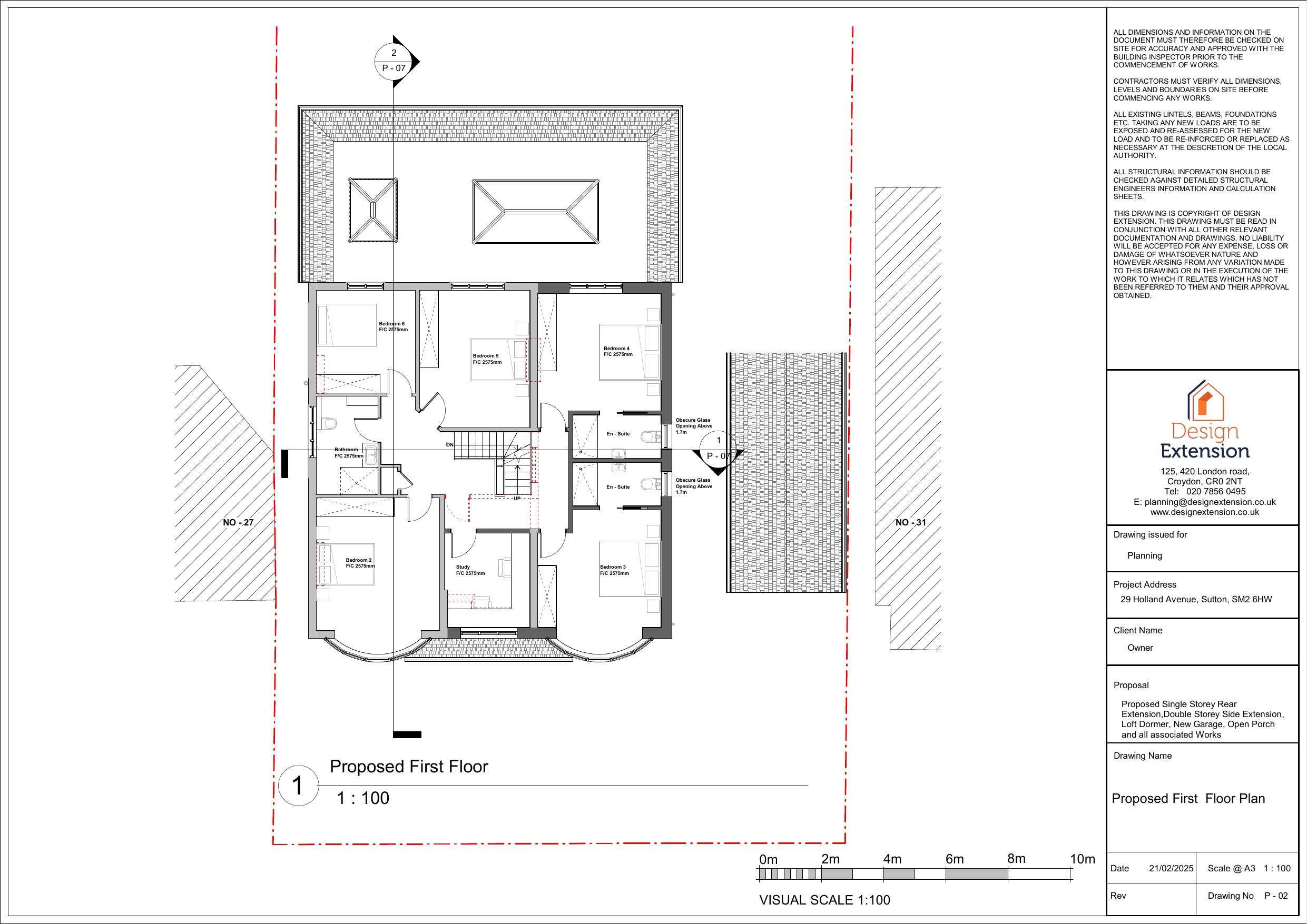
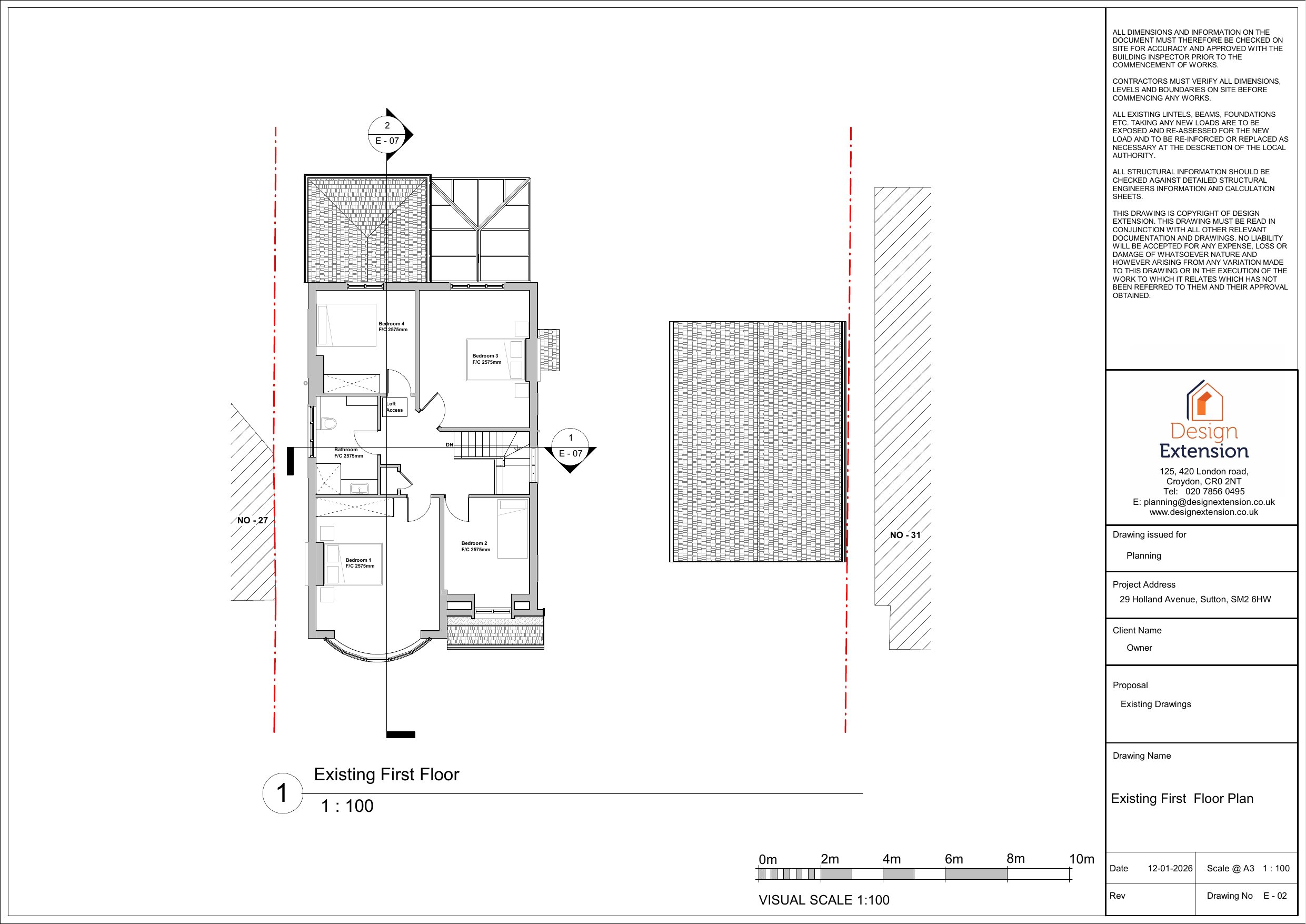
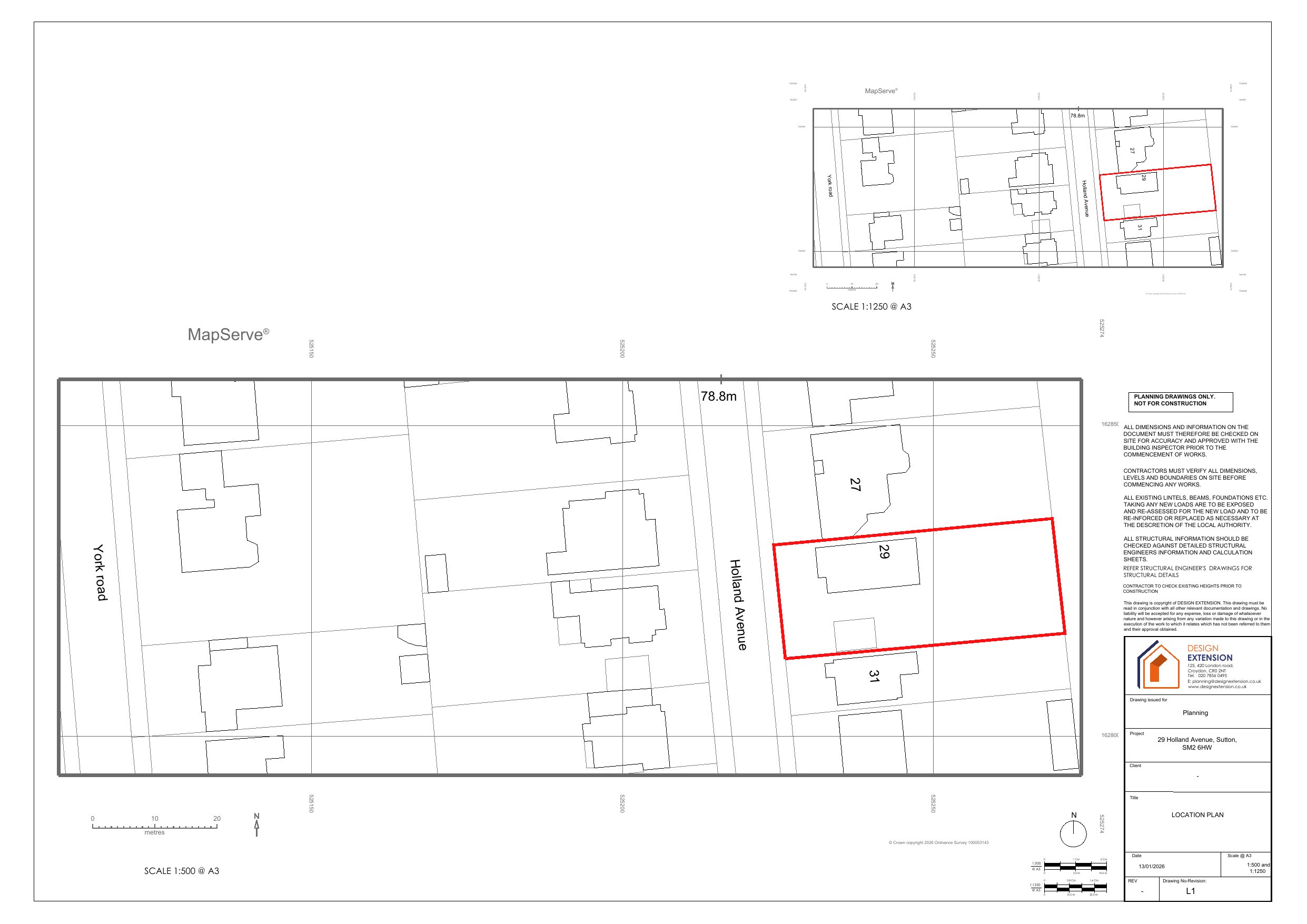
Pending Consideration House extension
Received
14 Jan 2026
New homes
0

Full proposal

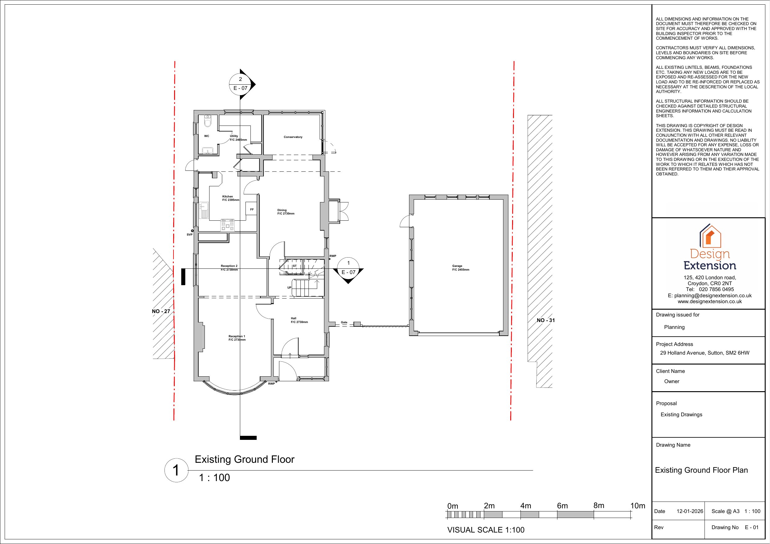
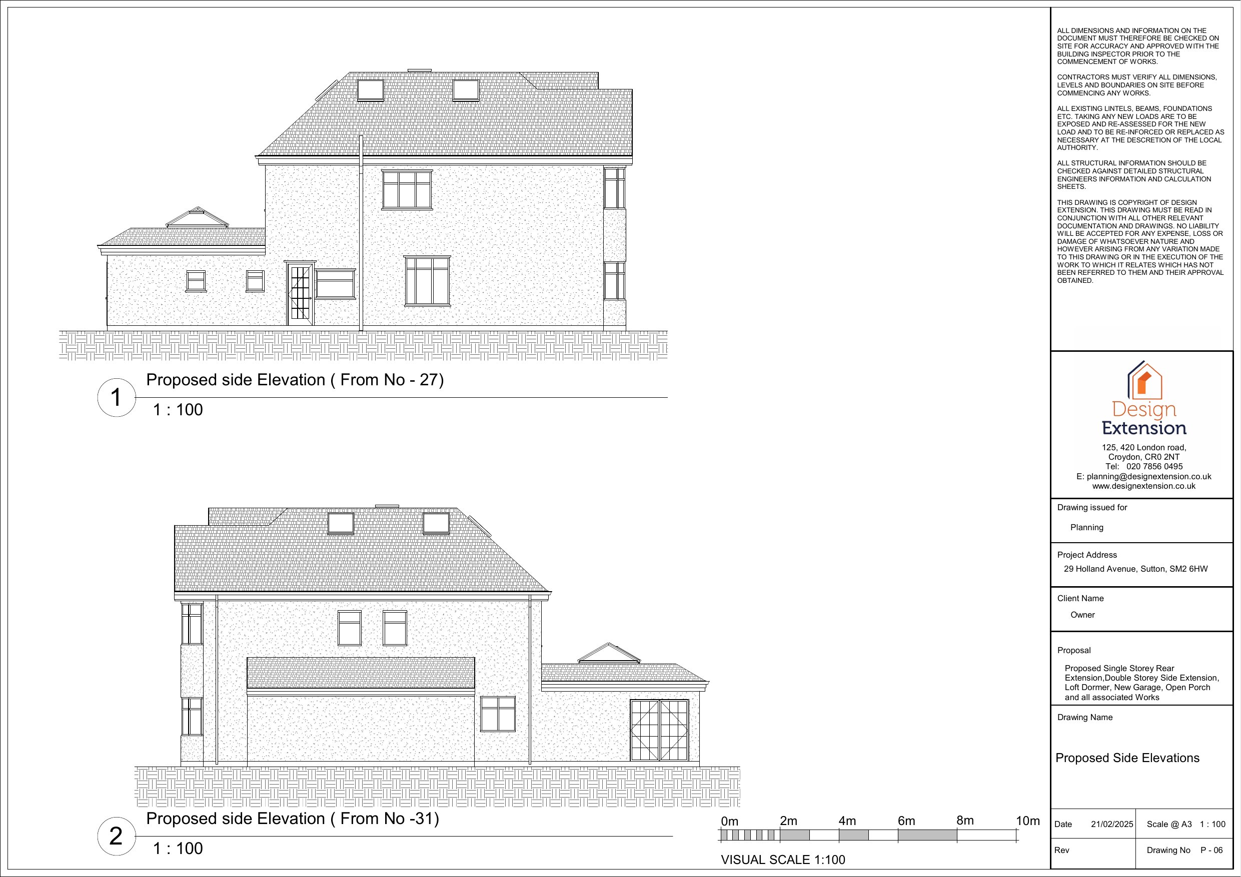
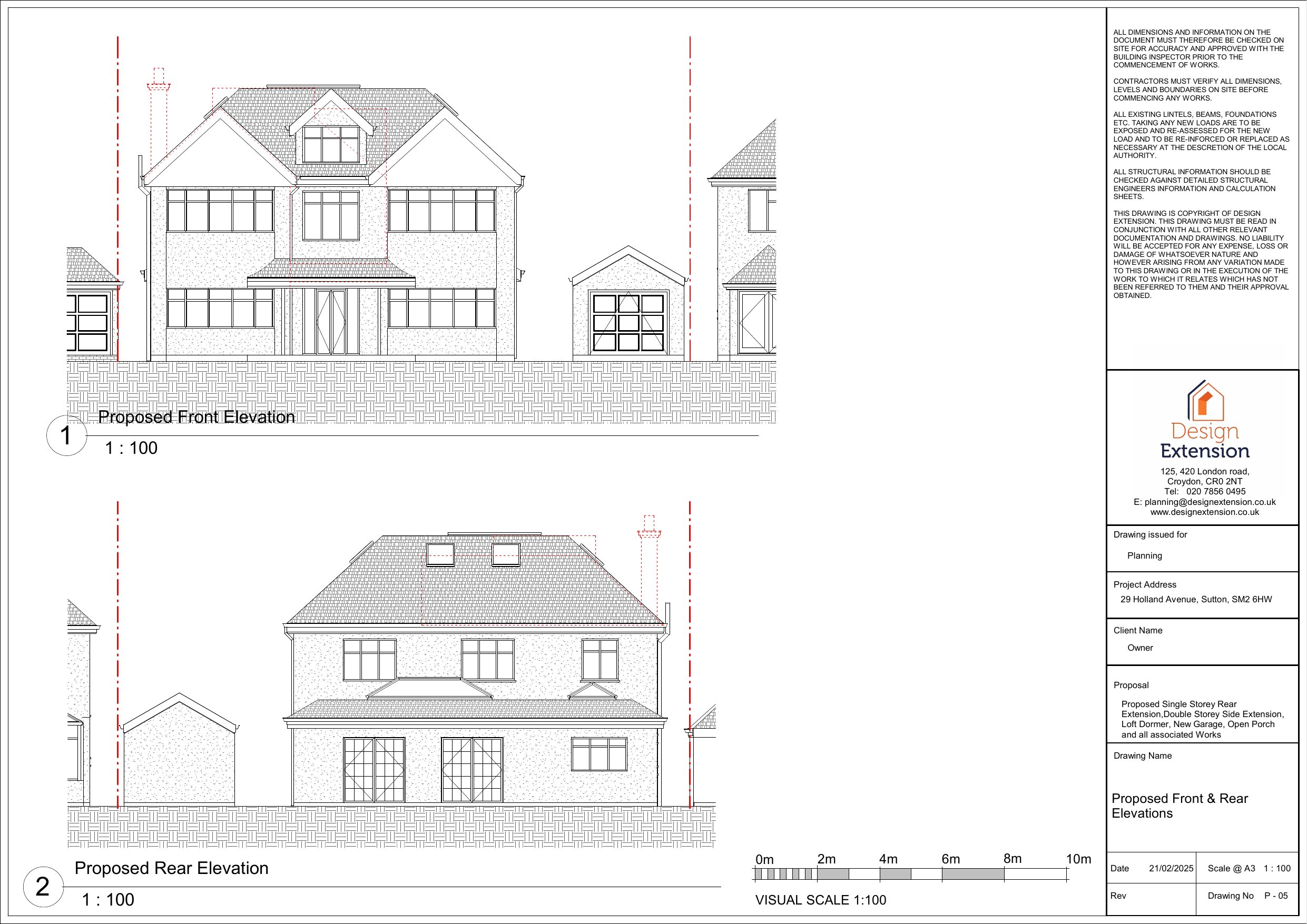
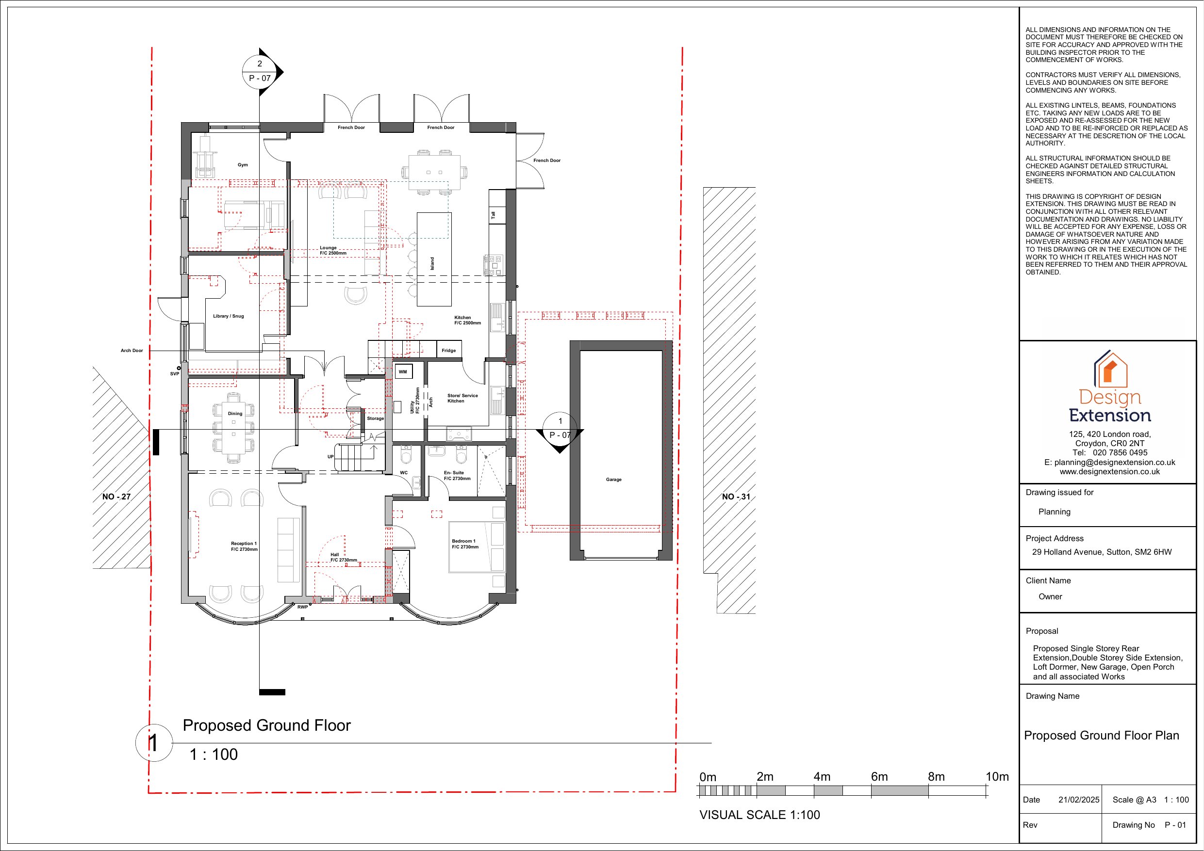
Erection of a part one, part two storey side and rear extension with alterations to the fenestrations and erection of a new garage. Conversion of loft space involving alterations to existing roofline, removal of three chimney stacks,a dormer window to the front, a window to flank and rear roofslopes.

Have your say

Your comment matters. Councils must consider every representation that raises material planning considerations.

Write a comment