DM2026/00053
Sutton
Status
Pending Consideration
House extension
Received
19 Jan 2026
New homes
0
Full proposal
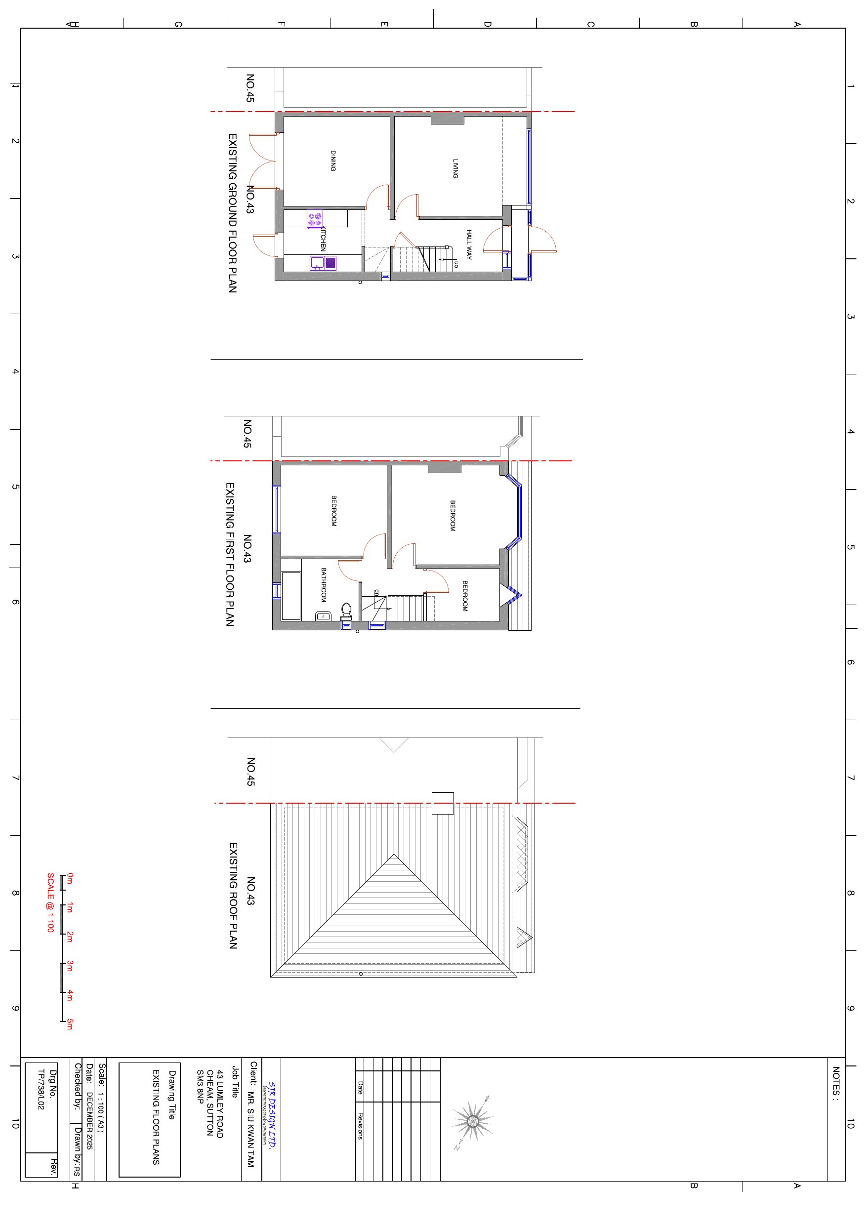
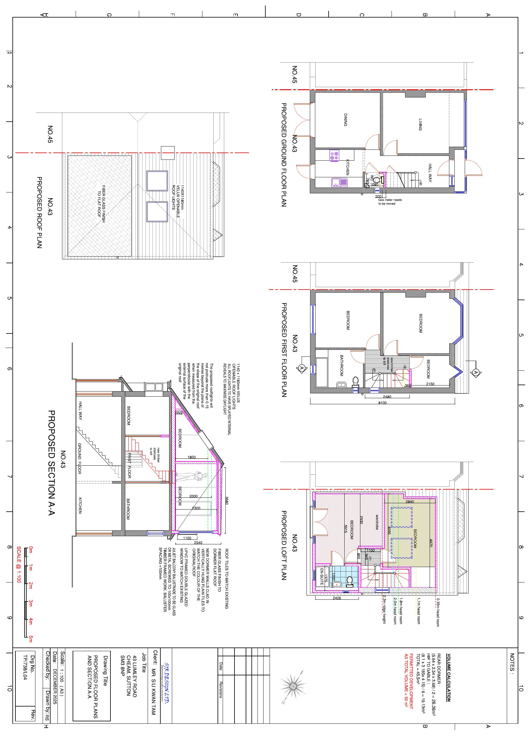
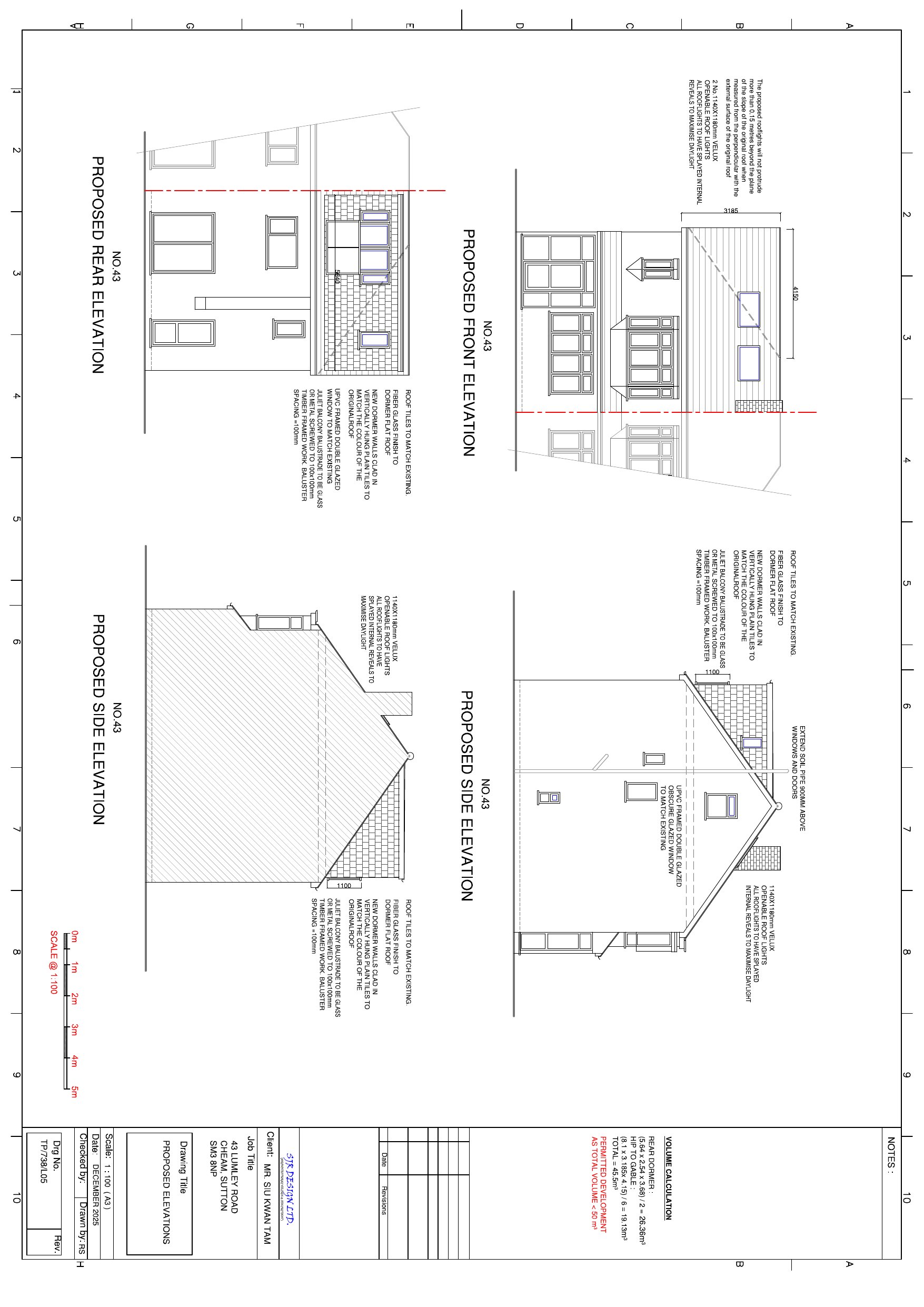
Conversion of loft space involving alterations to existing roofline, a dormer extension at rear, a window to flank roofslope and rooflights to front roofslope.
Documents
Have your say
Your comment matters. Councils must consider every representation that raises material planning considerations.