← Sutton

Status

Pending Consideration House extension
Received
19 Jan 2026
New homes
0

Full proposal

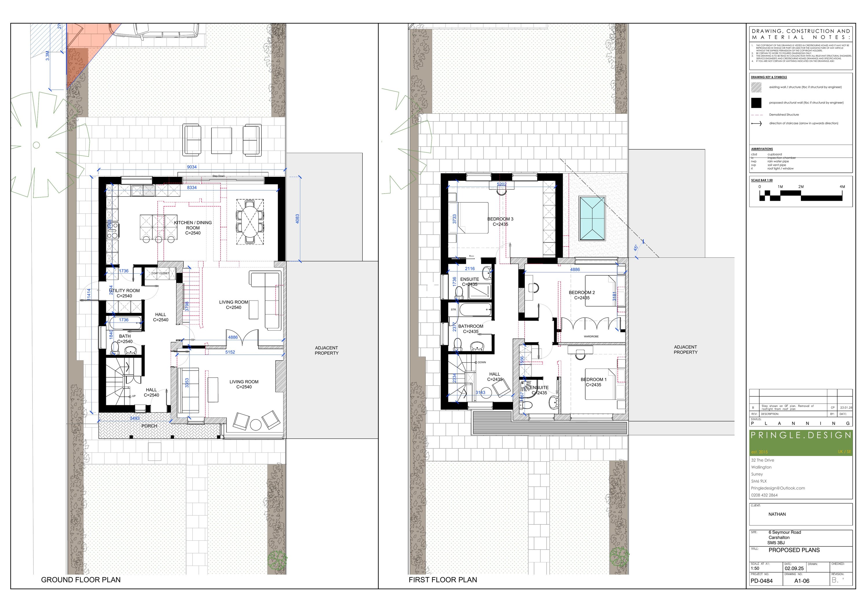
Erection of a part one, part two side and rear extension involving the formation of a front porch and relocation of the front door. Alterations to the fenestrations. Formation of of a dropped kerb for new vehicular access and hardstanding including a replacement fence and new gates to provide a parking space to the rear.

Documents

Revised Drawing
Archived · Original link
Revised Drawing
Archived · Original link
Revised Drawing
Archived · Original link
Revised Drawing
Archived · Original link
Revised Drawing
Archived · Original link
Revised Drawing
Archived · Original link
Revised Drawing
Archived · Original link
Revised Drawing
Archived · Original link
Revised Drawing
Archived · Original link
Revised Drawing
Archived · Original link

Have your say

Your comment matters. Councils must consider every representation that raises material planning considerations.

Write a comment