← Sutton

Status

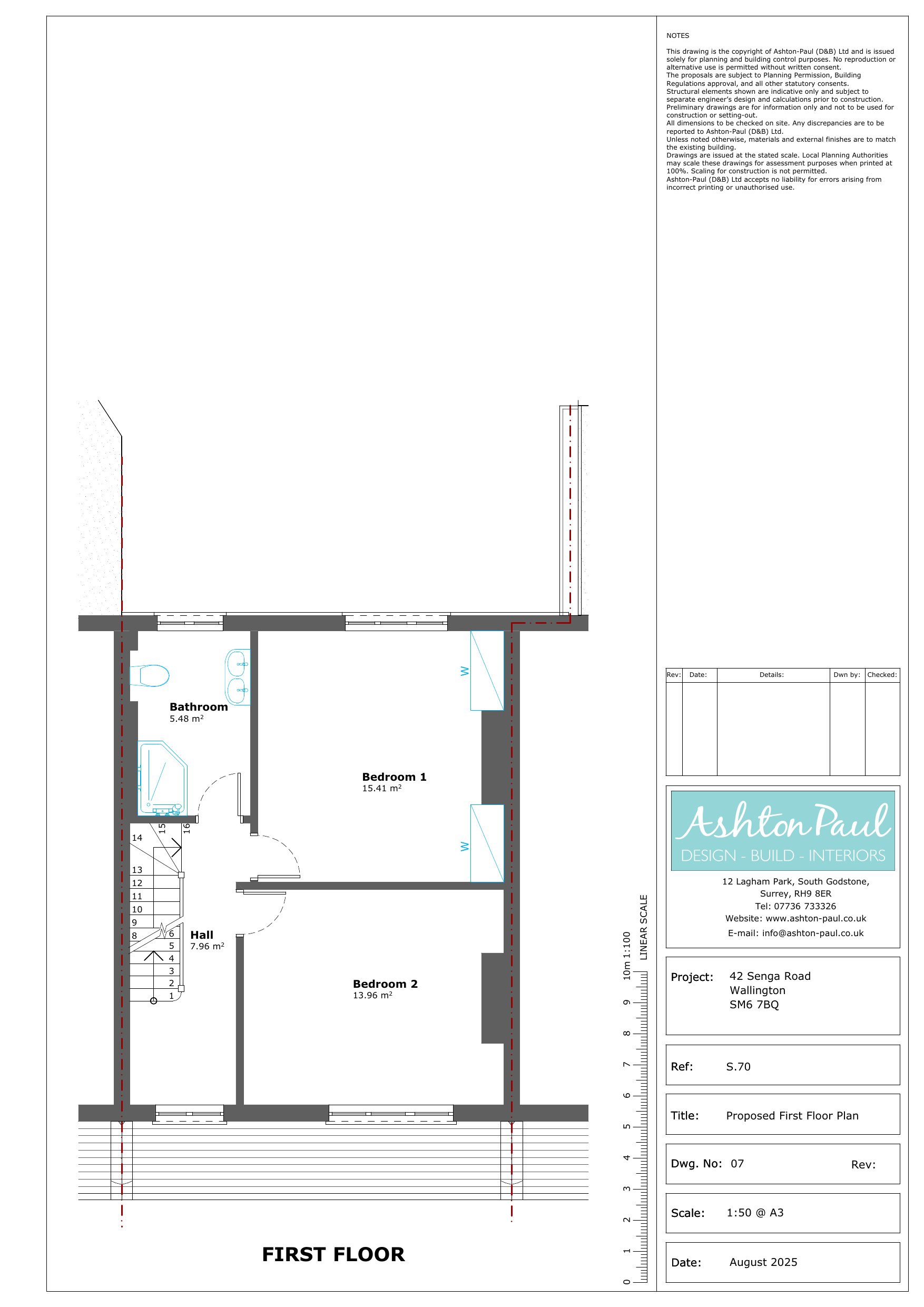
Pending Consideration House extension
Received
20 Jan 2026
New homes
0

Full proposal

Conversion of loft space involving alterations to existing roofline, a dormer extension at rear and rooflights to front roofslope.

Have your say

Your comment matters. Councils must consider every representation that raises material planning considerations.

Write a comment