← Sutton

Status

Pending Consideration House extension
Received
21 Jan 2026
New homes
0

Full proposal

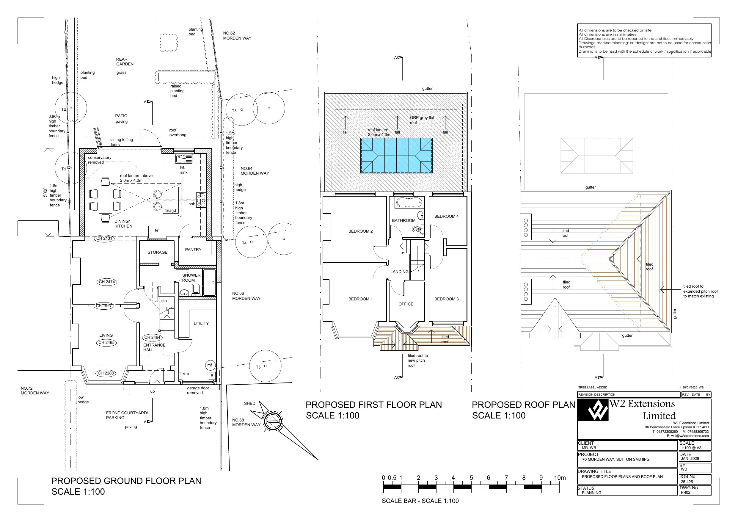
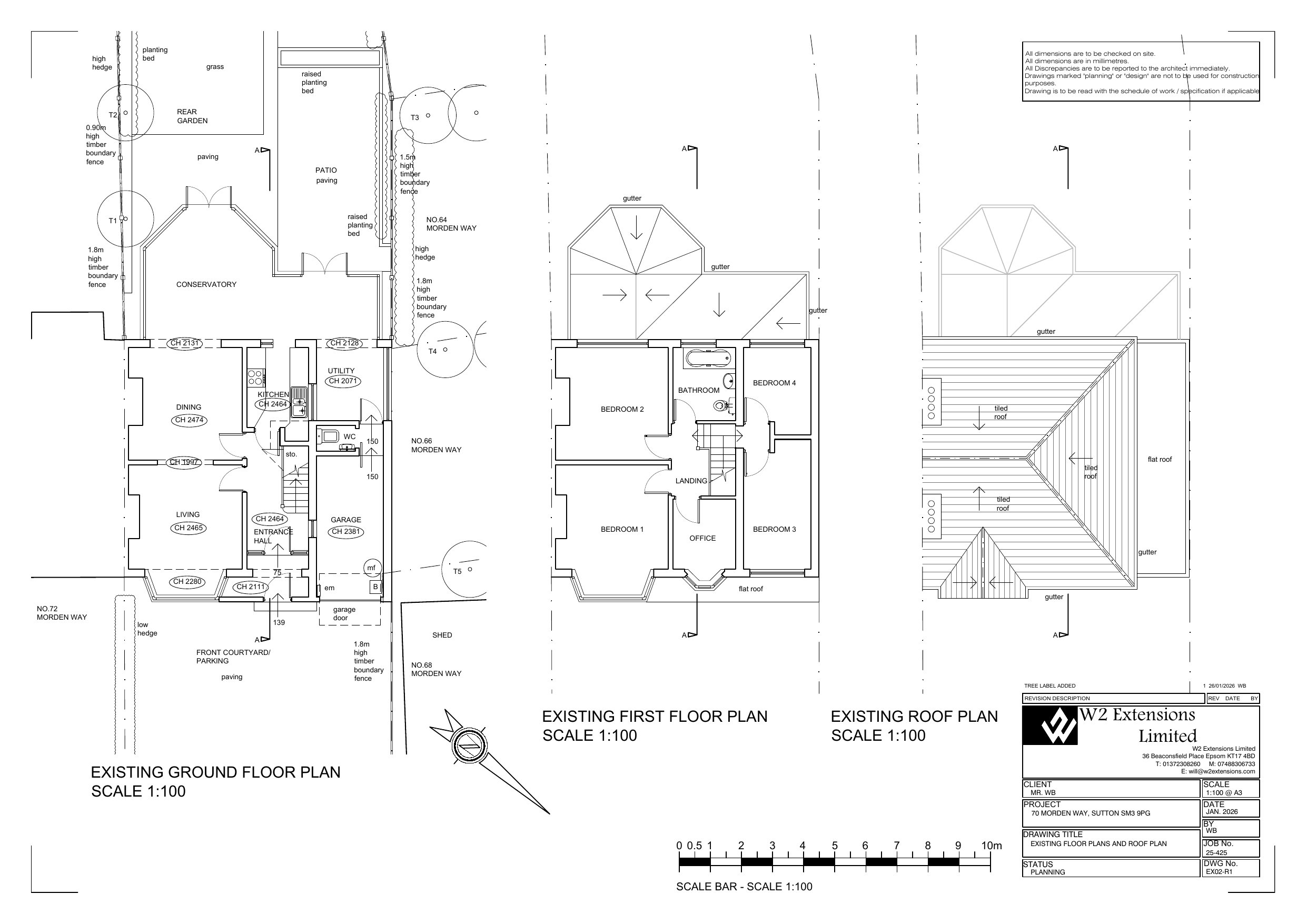
Erection of a single storey rear extension with alterations to the side fenestration, formation of a new front entrance involving alterations to the existing porch roof and conversion of garage into habitable room with associated external work.

Documents

Drawing
Archived · Original link
Drawing
Archived · Original link
Drawing
Archived · Original link
Drawing
Archived · Original link
Drawing
Archived · Original link
Revised Drawing
Archived · Original link
Revised Drawing
Archived · Original link
Revised Drawing
Archived · Original link

Have your say

Your comment matters. Councils must consider every representation that raises material planning considerations.

Write a comment