DM2026/00095
Sutton
Status
Pending Consideration
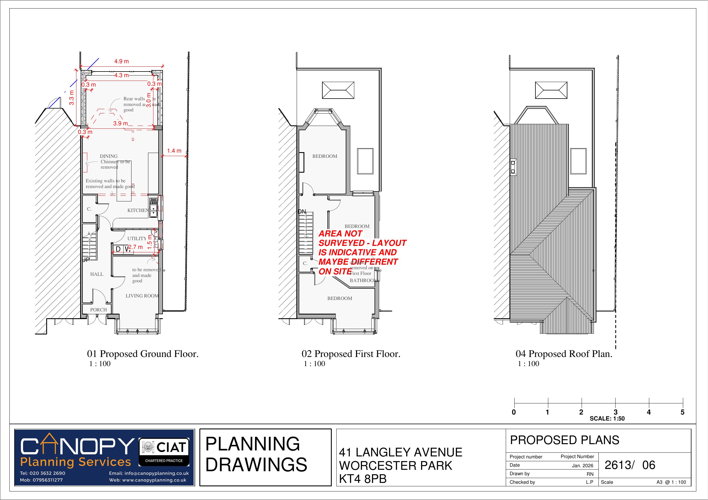
House extension
Received
29 Jan 2026
New homes
0
Full proposal
Erection of a single storey rear extension.
Documents
Have your say
Your comment matters. Councils must consider every representation that raises material planning considerations.