← Sutton

Status

Pending Consideration New housing
Received
30 Jan 2026
New homes
1

Full proposal

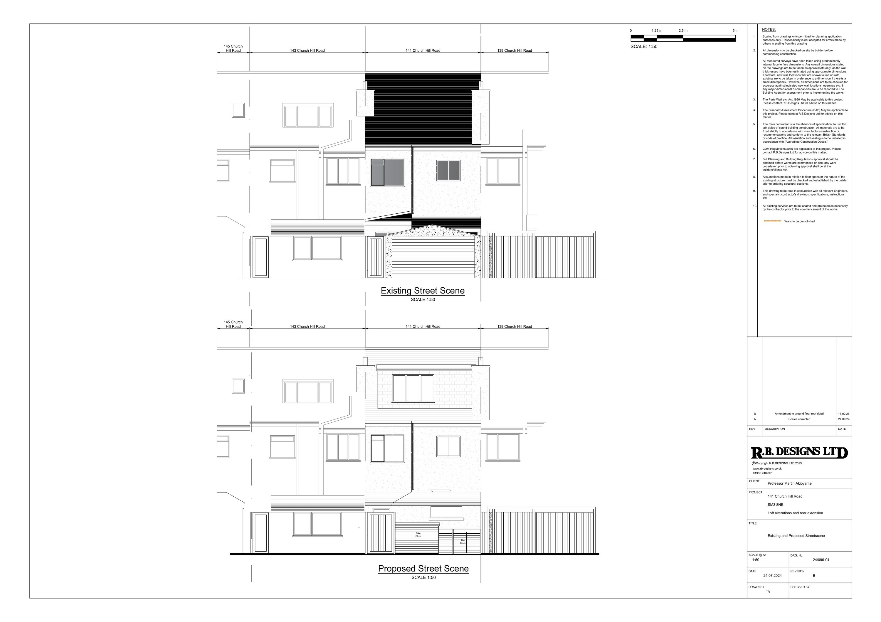
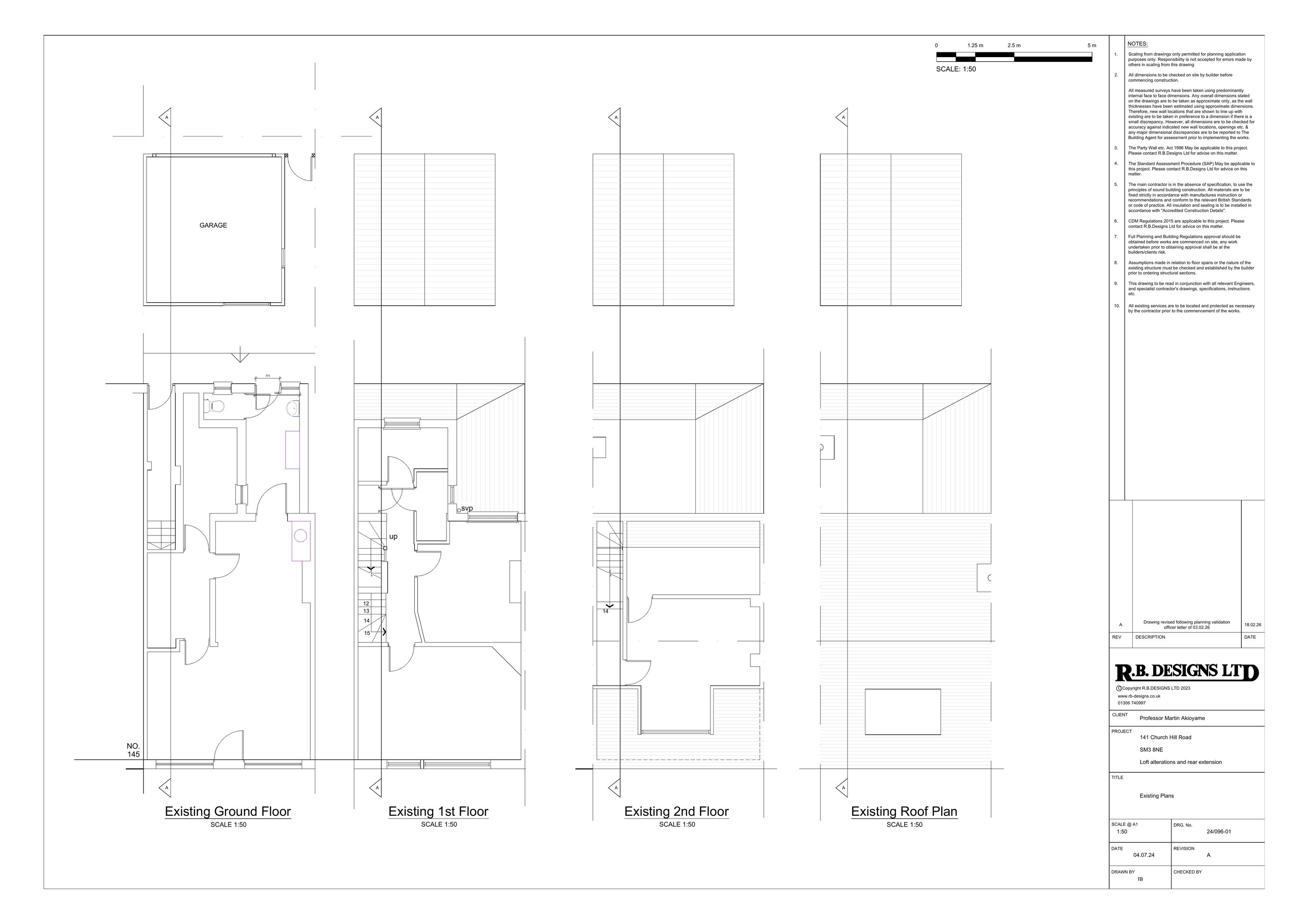
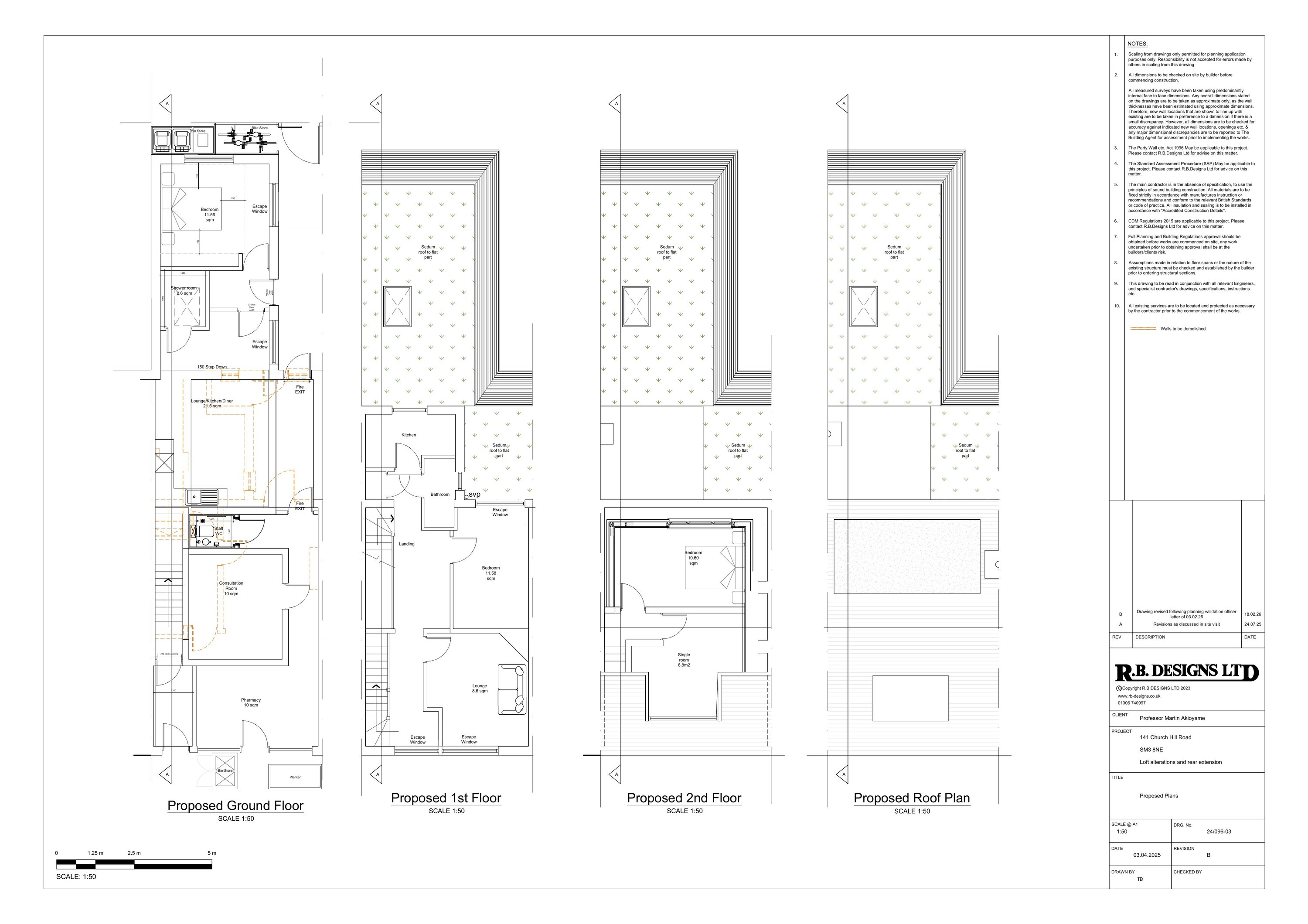
Demolition of the existing garage and erection of a single storey rear extension to provide a new self contained residential unit, conversion of loft space involving a dormer extension at rear to provide more space for the existing residential unit, alteration to ground floor front fenestration to provide a new front entrance door, provision of cycle and refuse stores to rear and a raised planter and refuse store to the front of the property.

Have your say

Your comment matters. Councils must consider every representation that raises material planning considerations.

Write a comment