← Sutton

Status

Pending Consideration House extension
Received
Last month
New homes
0

Full proposal

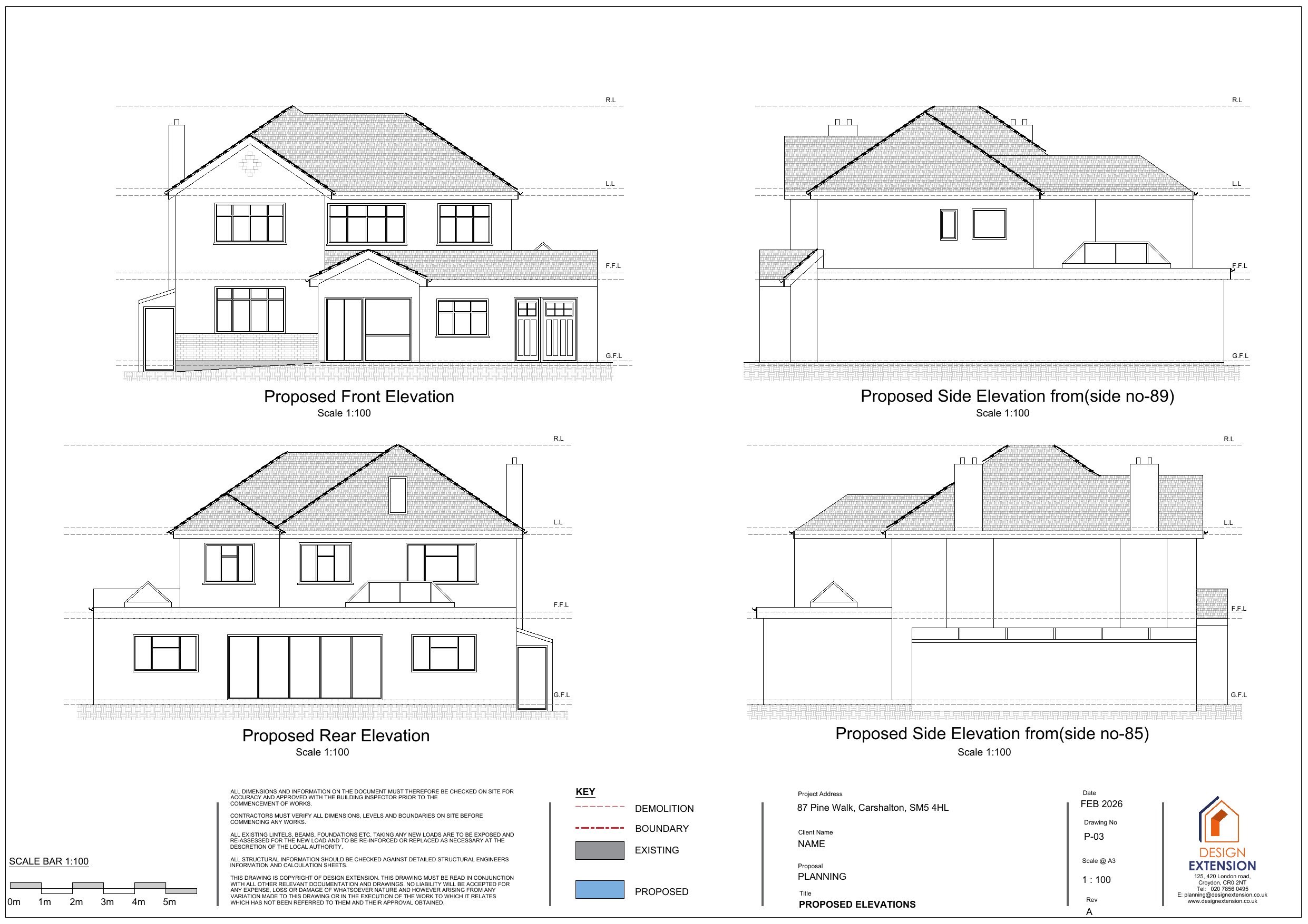
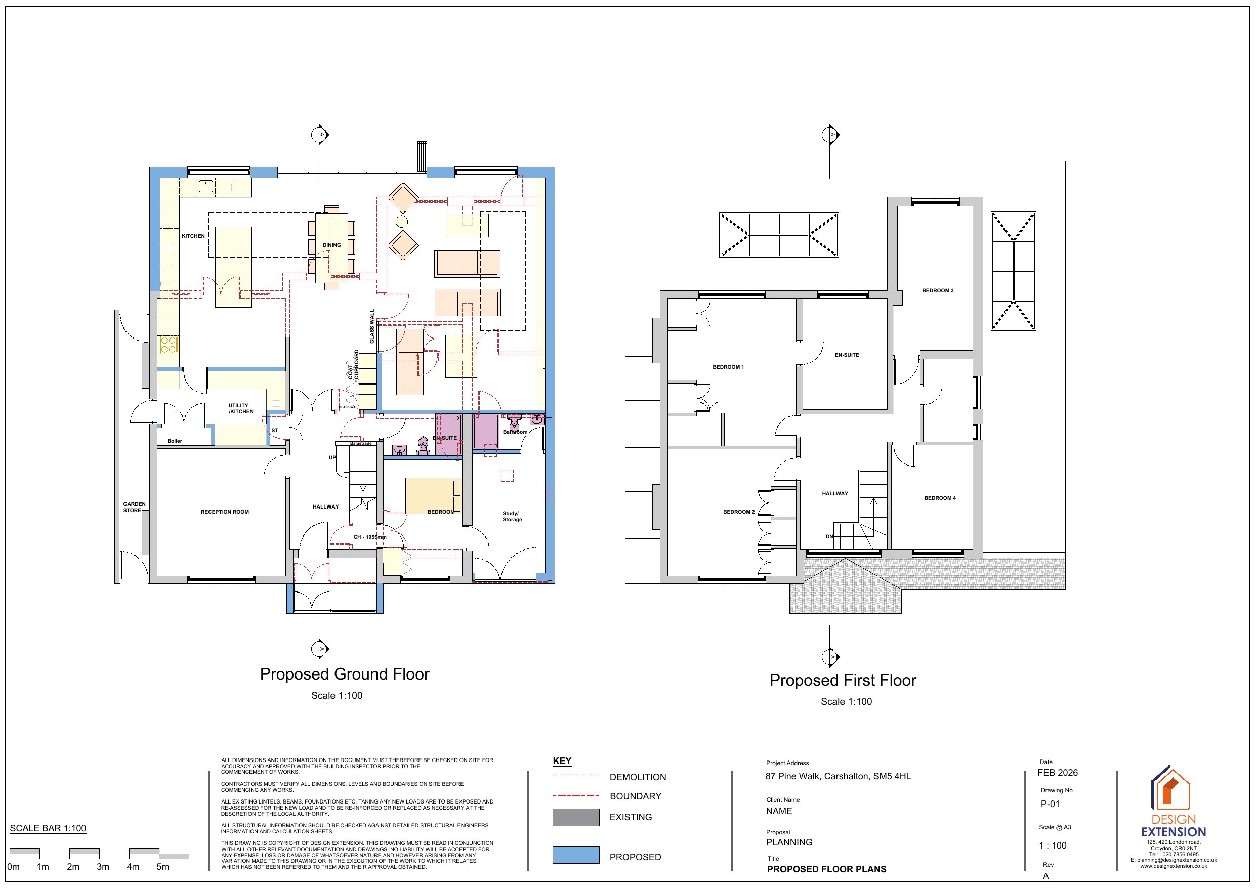
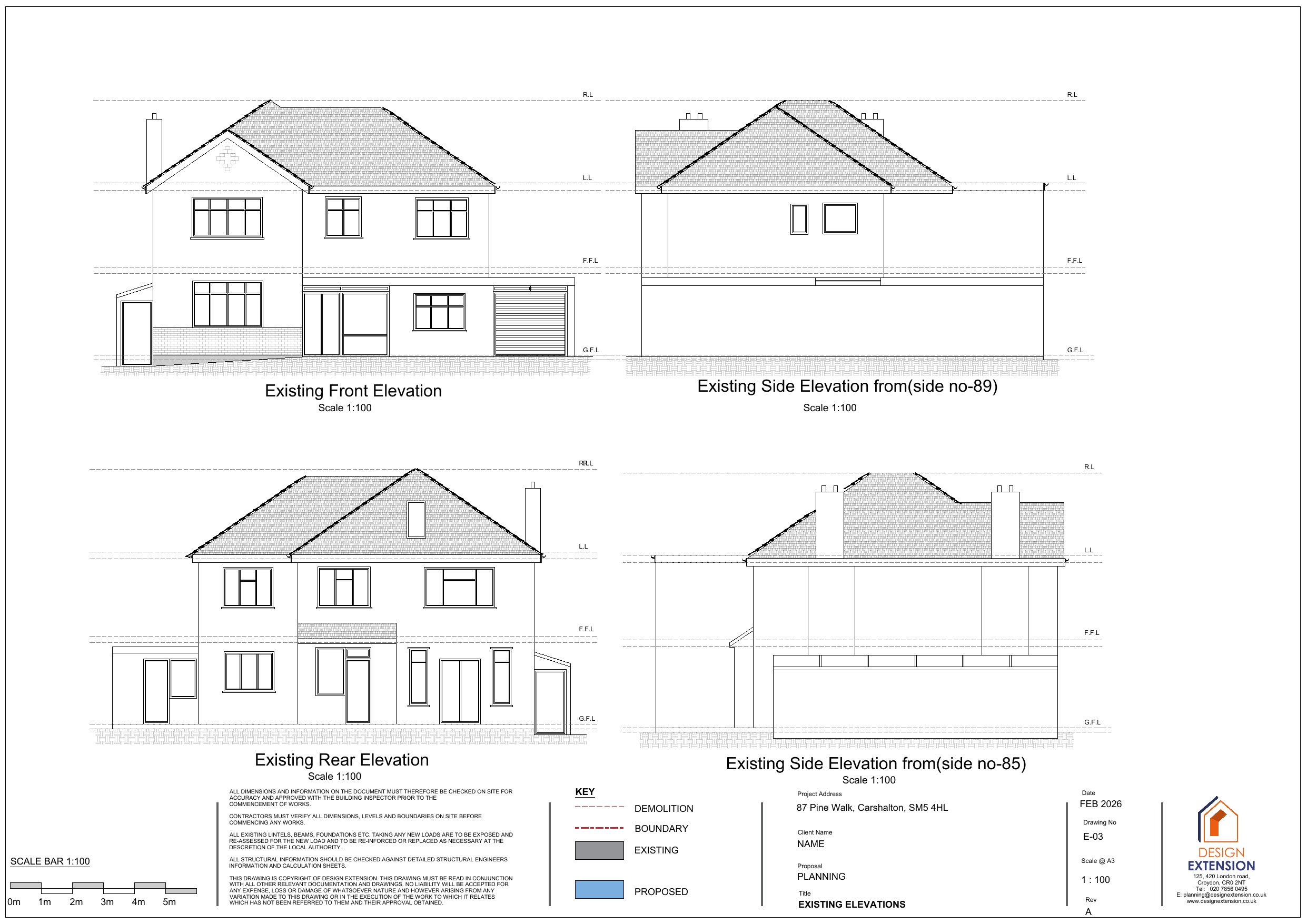
Formation of a font entrance porch, erection of a single storey rear extension, conversion of the integrated flank garage into habitable rooms, alterations to the ground floor front and flank roof detail/presentation including the installation of a flank/rear roof lantern, alteration to the first floor rear flat roof to a pitched roof, alterations to ground and first floor front fenestration and internal floor space layout alterations.

Have your say

Your comment matters. Councils must consider every representation that raises material planning considerations.

Write a comment