← Sutton

Status

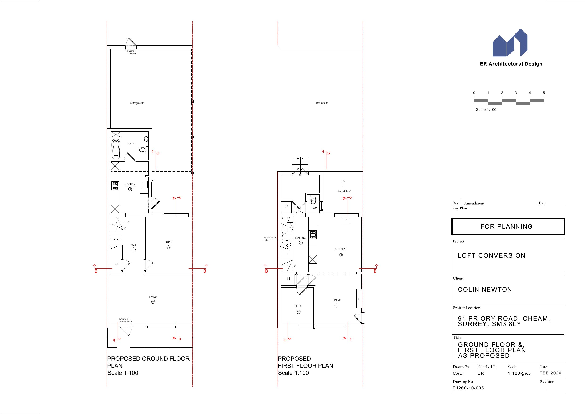
Pending Consideration House extension
Received
Last month
New homes
0

Full proposal

Conversion of loft space involving a dormer extension at side and rooflights to rear roofslope.

Have your say

Your comment matters. Councils must consider every representation that raises material planning considerations.

Write a comment