← Sutton

Status

Pending Consideration House extension
Received
Last month
New homes
0

Full proposal

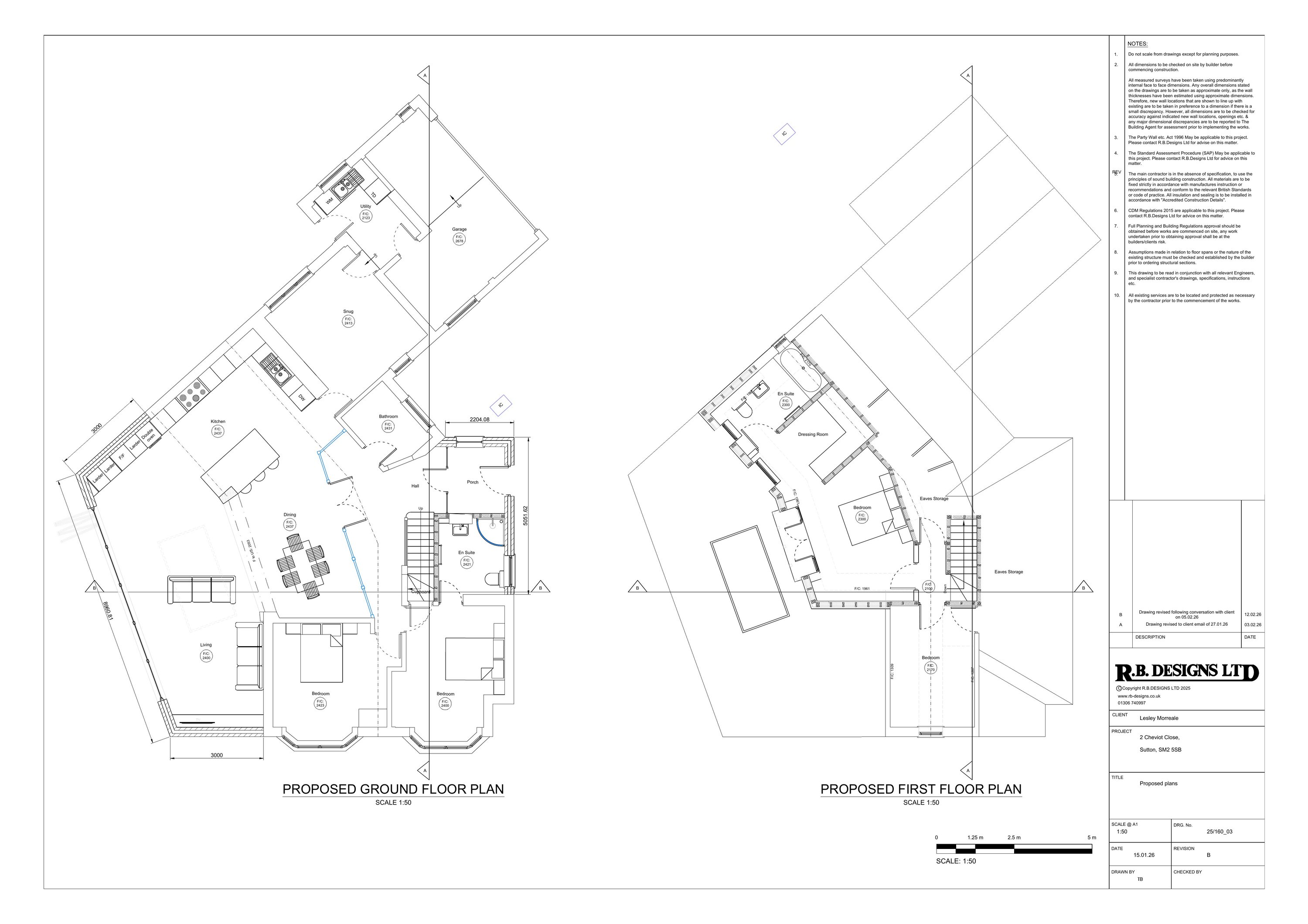
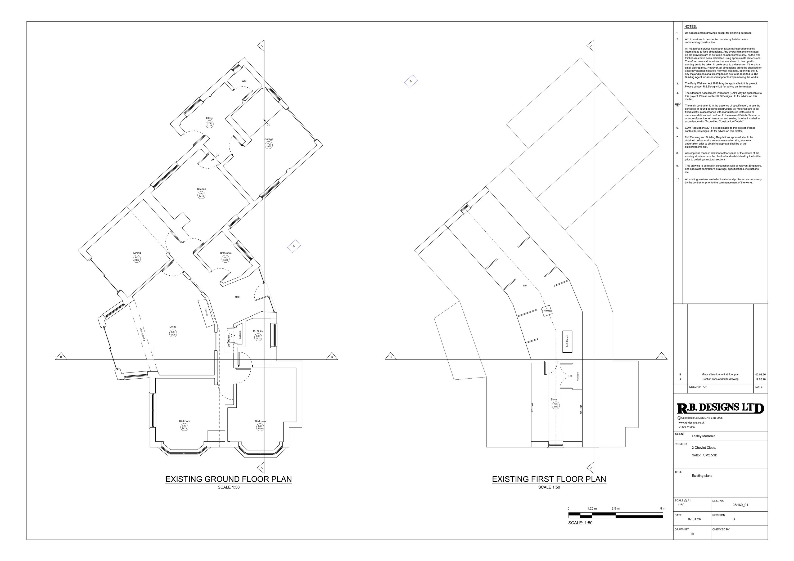
Erection of a single storey rear extension and a single storey front extension. Alteration to garage door opening. Loft conversion with a mansard roof. Alterations to the fenestration's.

Documents

Site Plan
Archived · Original link
Drawing
Archived · Original link
Drawing
Archived · Original link
Drawing
Archived · Original link

Have your say

Your comment matters. Councils must consider every representation that raises material planning considerations.

Write a comment