← Sutton

Status

Pending Consideration House extension
Received
Last month
New homes
0

Full proposal

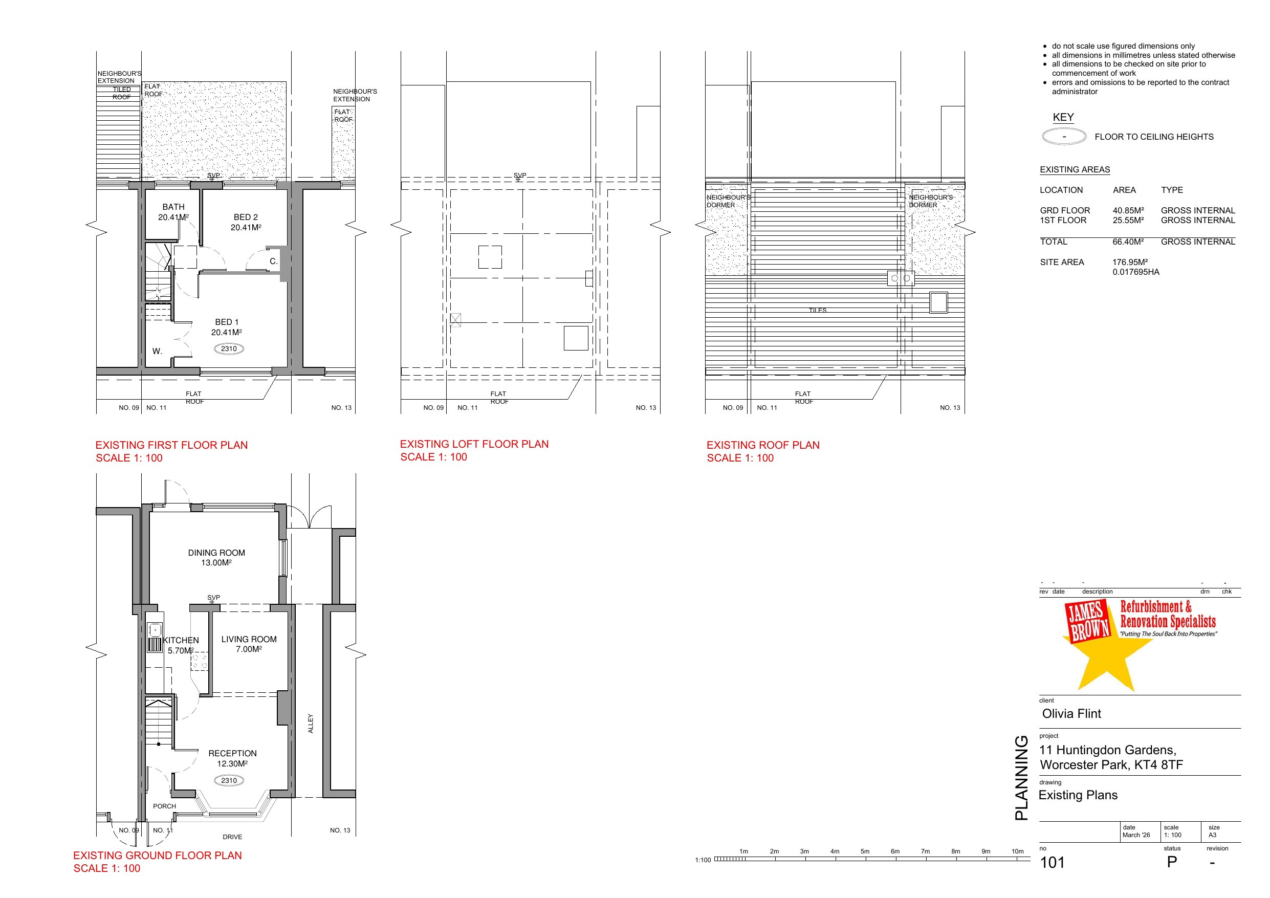
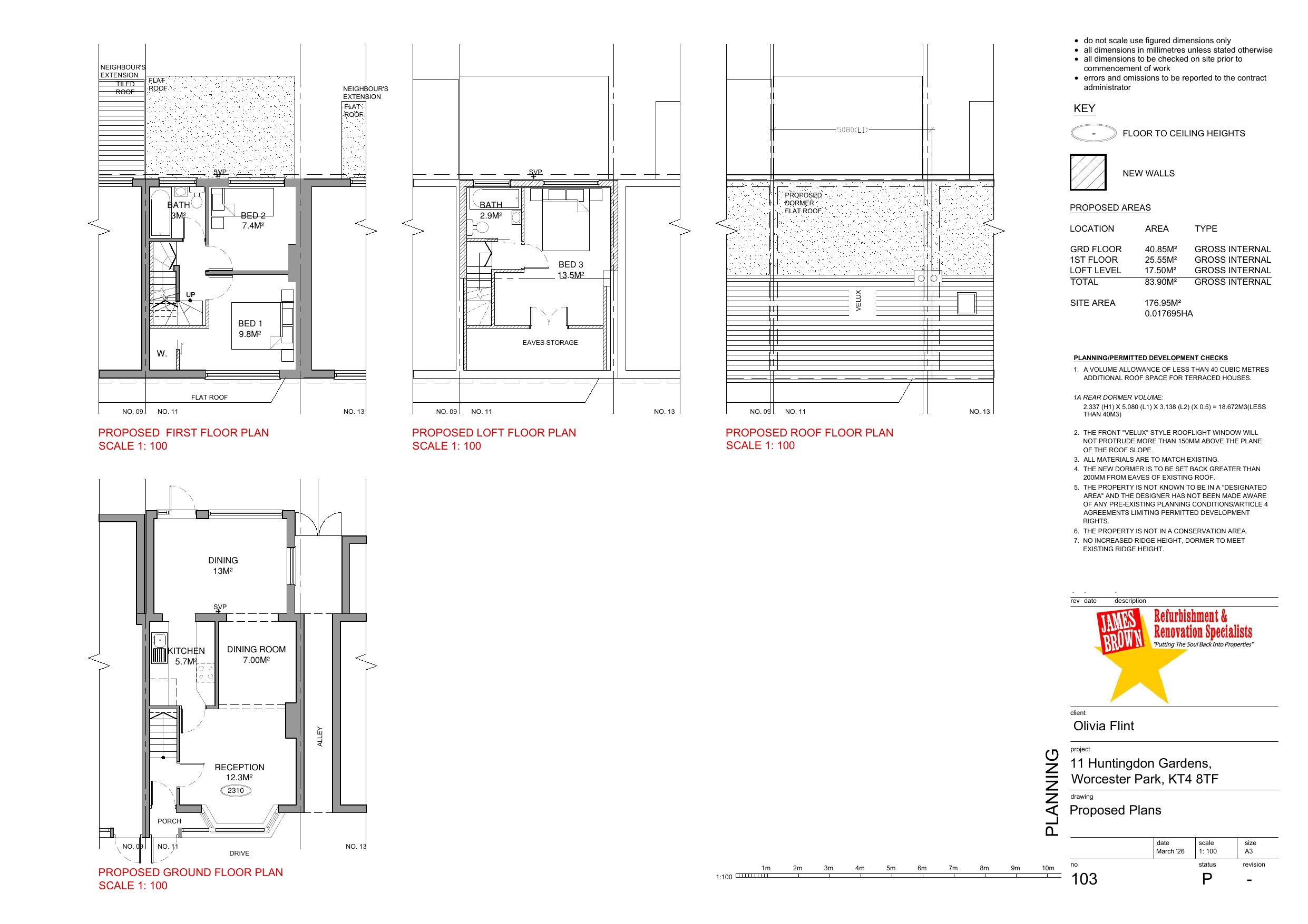
Conversion of loft space involving a dormer extension at rear and rooflight to front roofslope.

Documents

Drawing
Archived · Original link
Drawing
Archived · Original link
Drawing
Archived · Original link
Drawing
Archived · Original link
Drawing
Archived · Original link

Have your say

Your comment matters. Councils must consider every representation that raises material planning considerations.

Write a comment