← Sutton

Status

Pending Consideration House extension
Received
Last month
New homes
0

Full proposal

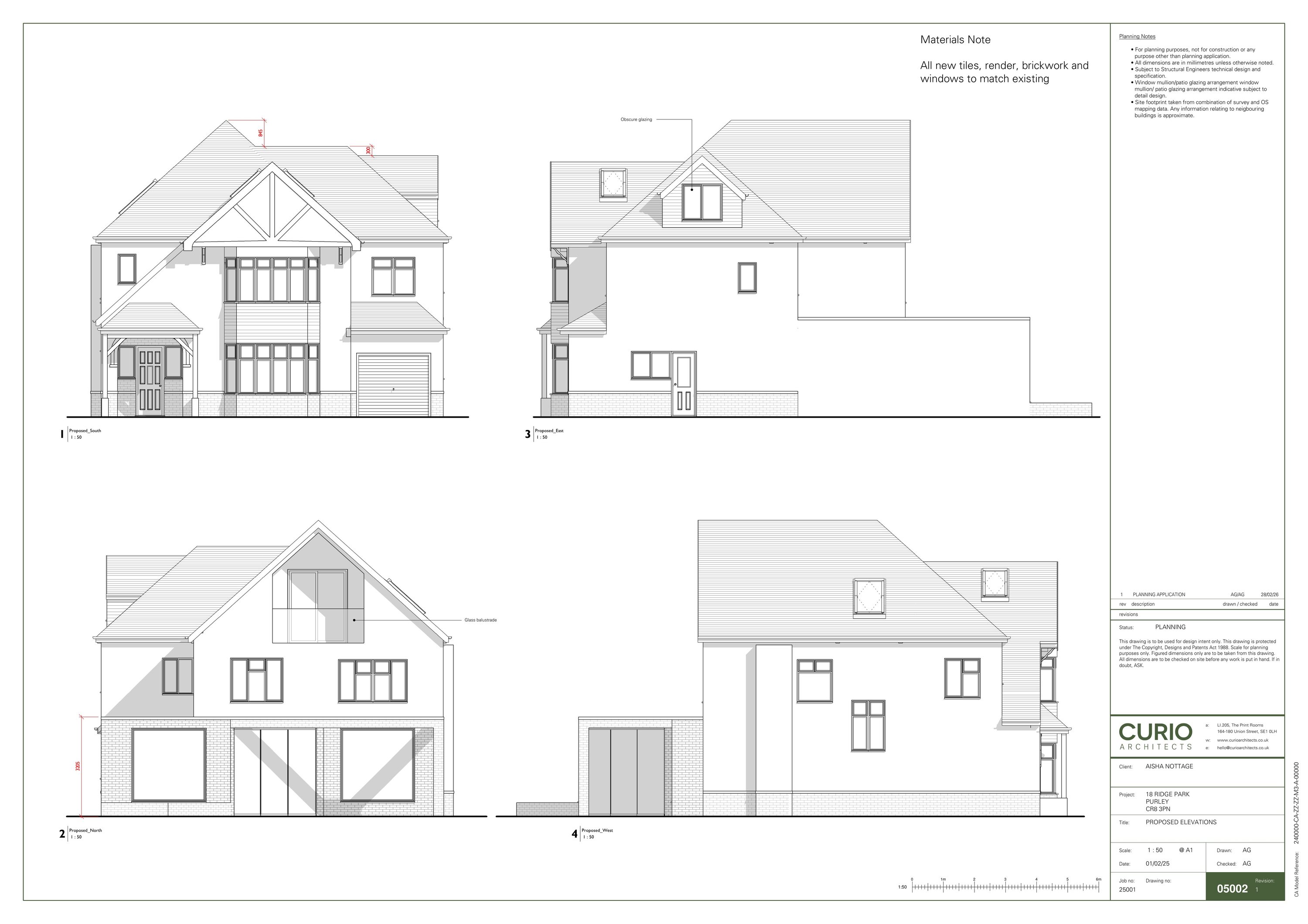
Erection of a part one, part two storey rear extension.first floor side extension. Erection of a single storey front extension and formation of a front entrance porch. Conversion of loft space involving alterations to existing roofline, a dormer extension at side and windows to flank roofslopes.

Documents

Drawing
Archived · Original link
Supporting Document
Archived · Original link
Drawing
Archived · Original link
Drawing
Archived · Original link
Revised Drawing
Archived · Original link
Revised Drawing
Archived · Original link
Drawing
Archived · Original link
Drawing
Archived · Original link

Have your say

Your comment matters. Councils must consider every representation that raises material planning considerations.

Write a comment