← Sutton

Status

Pending Consideration House extension
Received
Last month
New homes
0

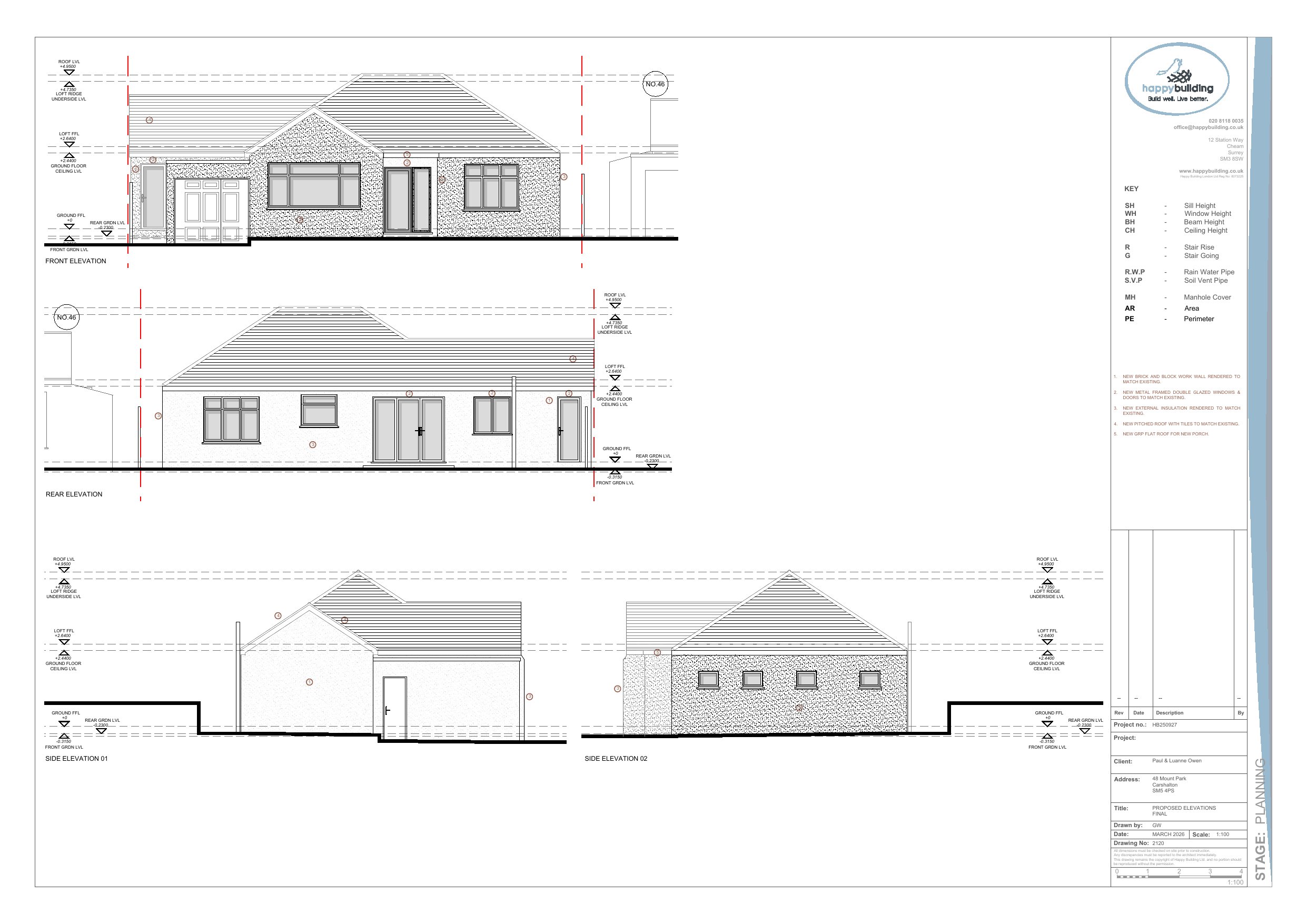
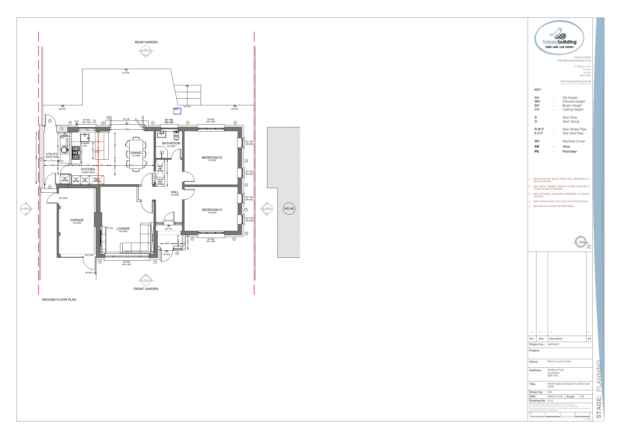
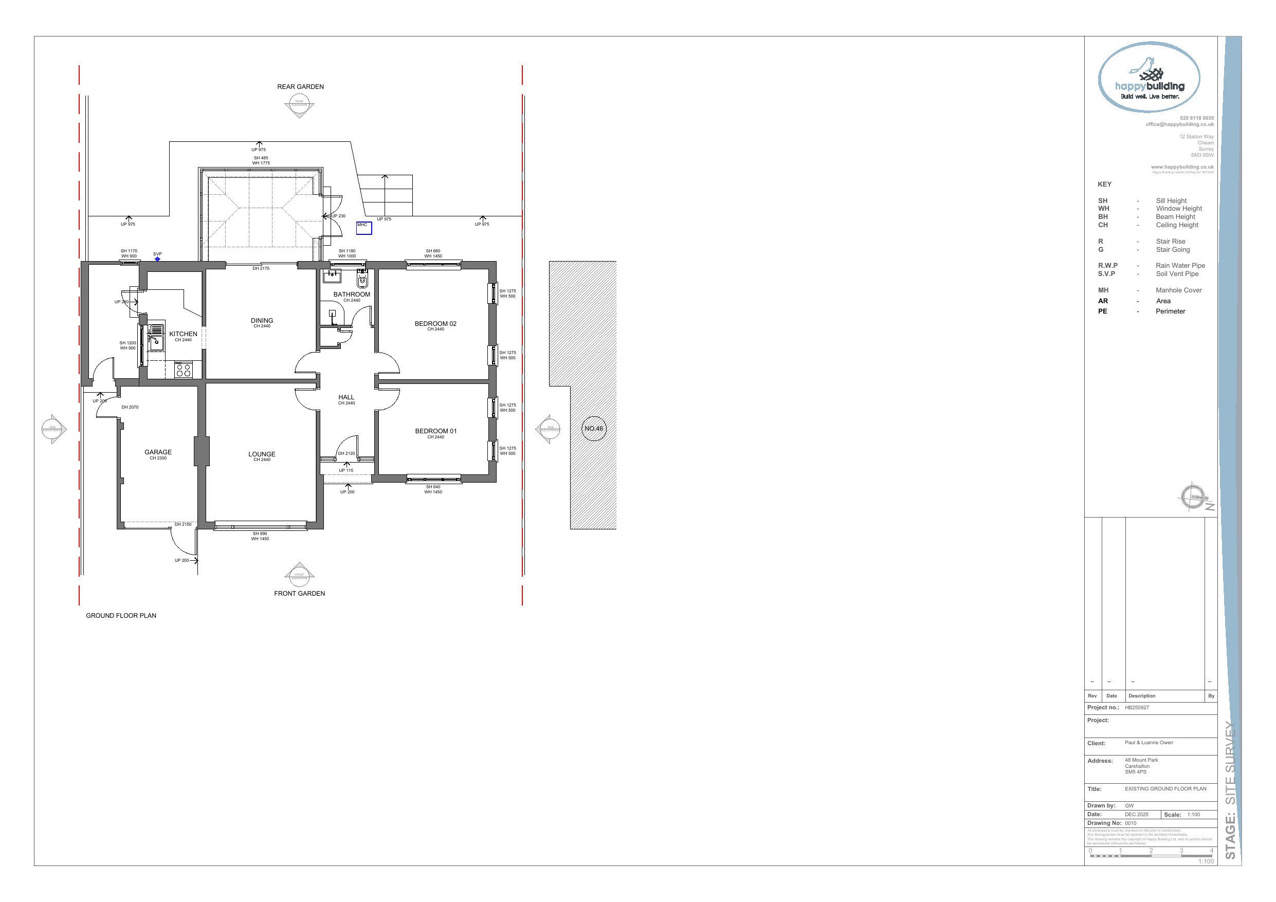
Full proposal

Erection of a single storey side extension, formation of a front entrance porch, steps to rear and alteration to fenestrations.

Have your say

Your comment matters. Councils must consider every representation that raises material planning considerations.

Write a comment