← Sutton

Status

Pending Consideration House extension
Received
Last month
New homes
0

Full proposal

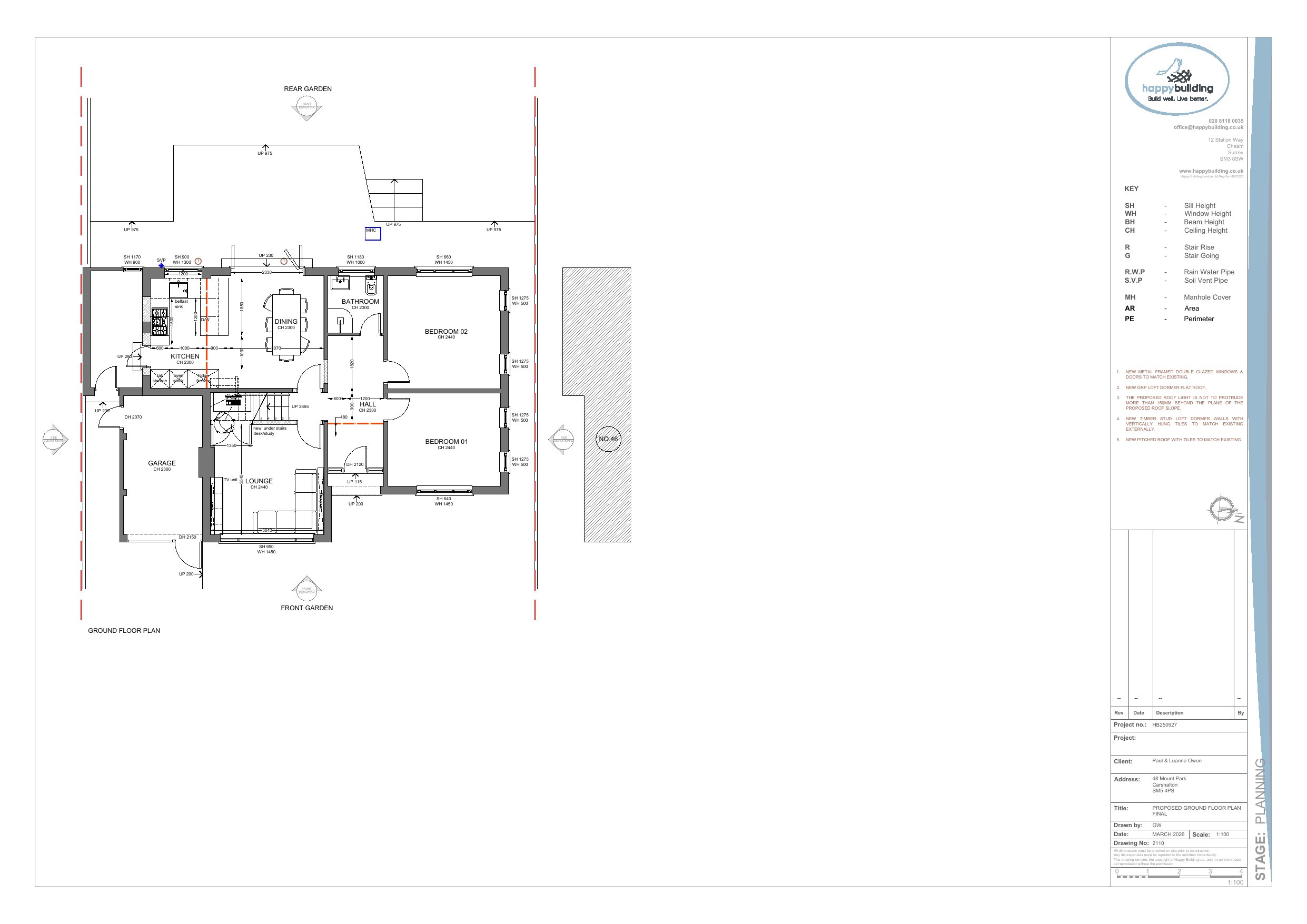
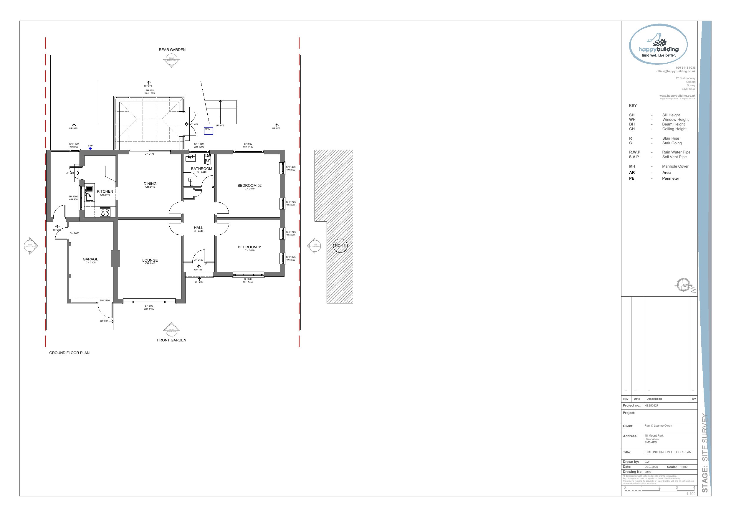
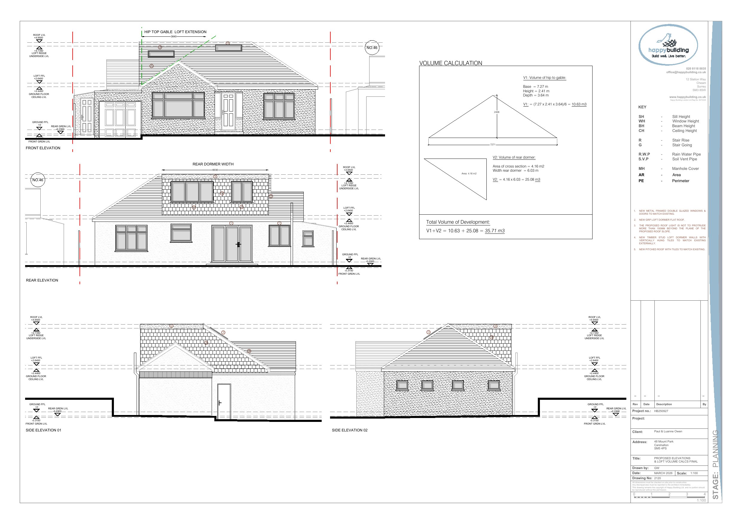
Conversion of loft space involving alterations to existing roofline, a dormer extension at rear, rooflights to front roofslope and alterations to fenestrations.

Have your say

Your comment matters. Councils must consider every representation that raises material planning considerations.

Write a comment