← Sutton

Status

Pending Consideration Change of use
Received
Last month
New homes
12

Full proposal

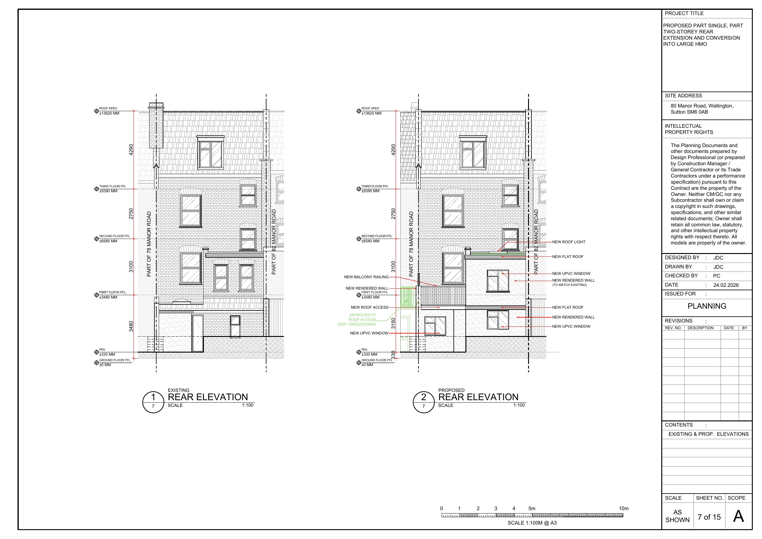
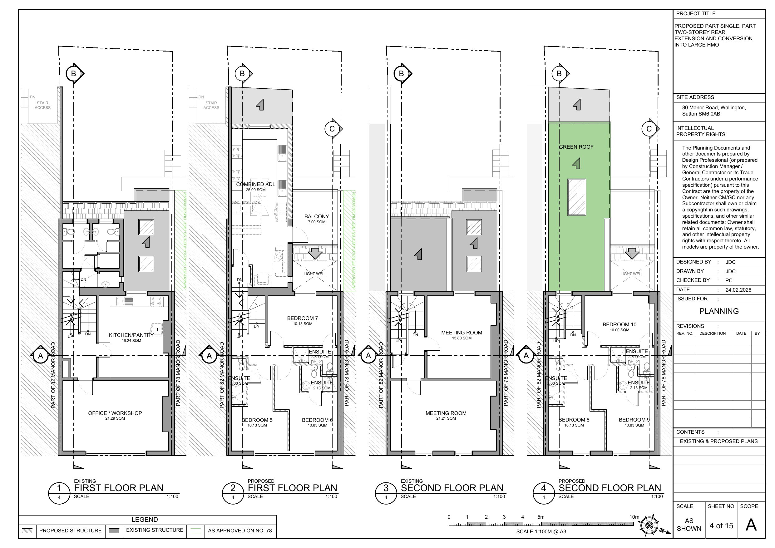
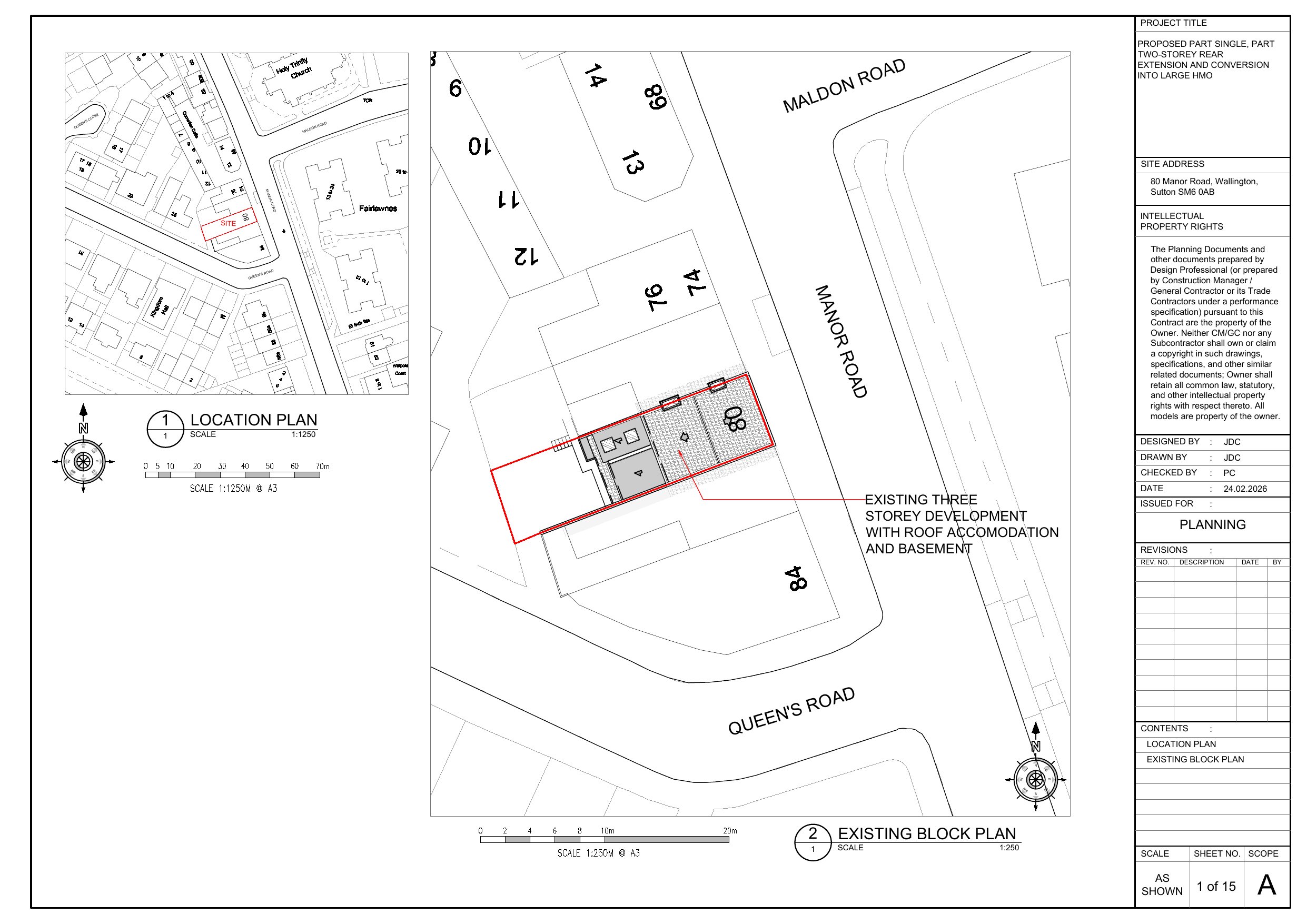
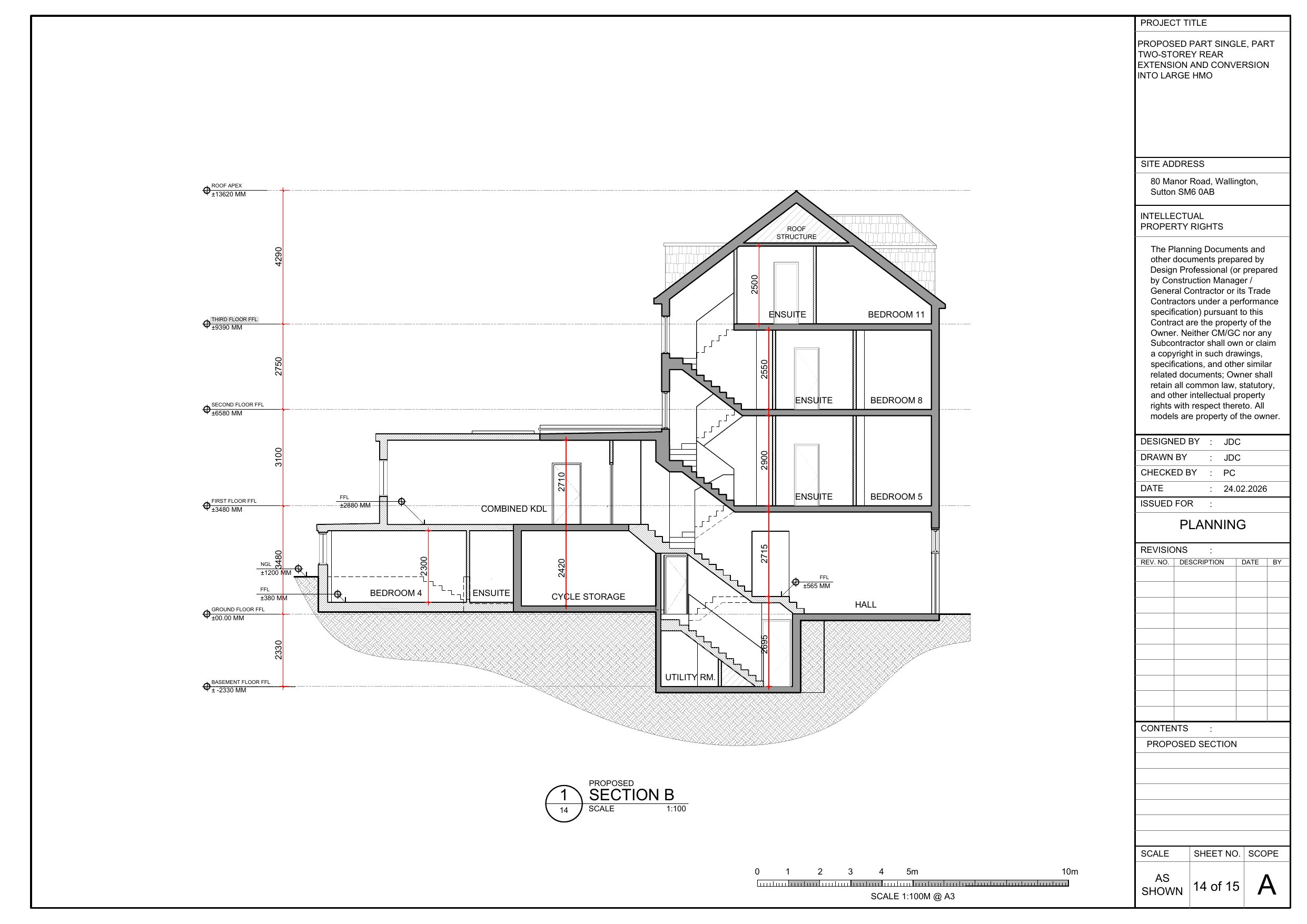
Change of use from Class E (Office) to Class Sui Generis (Large HMO) to provide 12 rooms, involving erection of a part one, part two storey rear extension, provision of light well, alterations to the fenestrations, refuse store to the rear and internal cycle store.

Have your say

Your comment matters. Councils must consider every representation that raises material planning considerations.

Write a comment