← Swansea Council

Status

Being Considered New housing
Received
05 Sep 2024
New homes
2

Full proposal

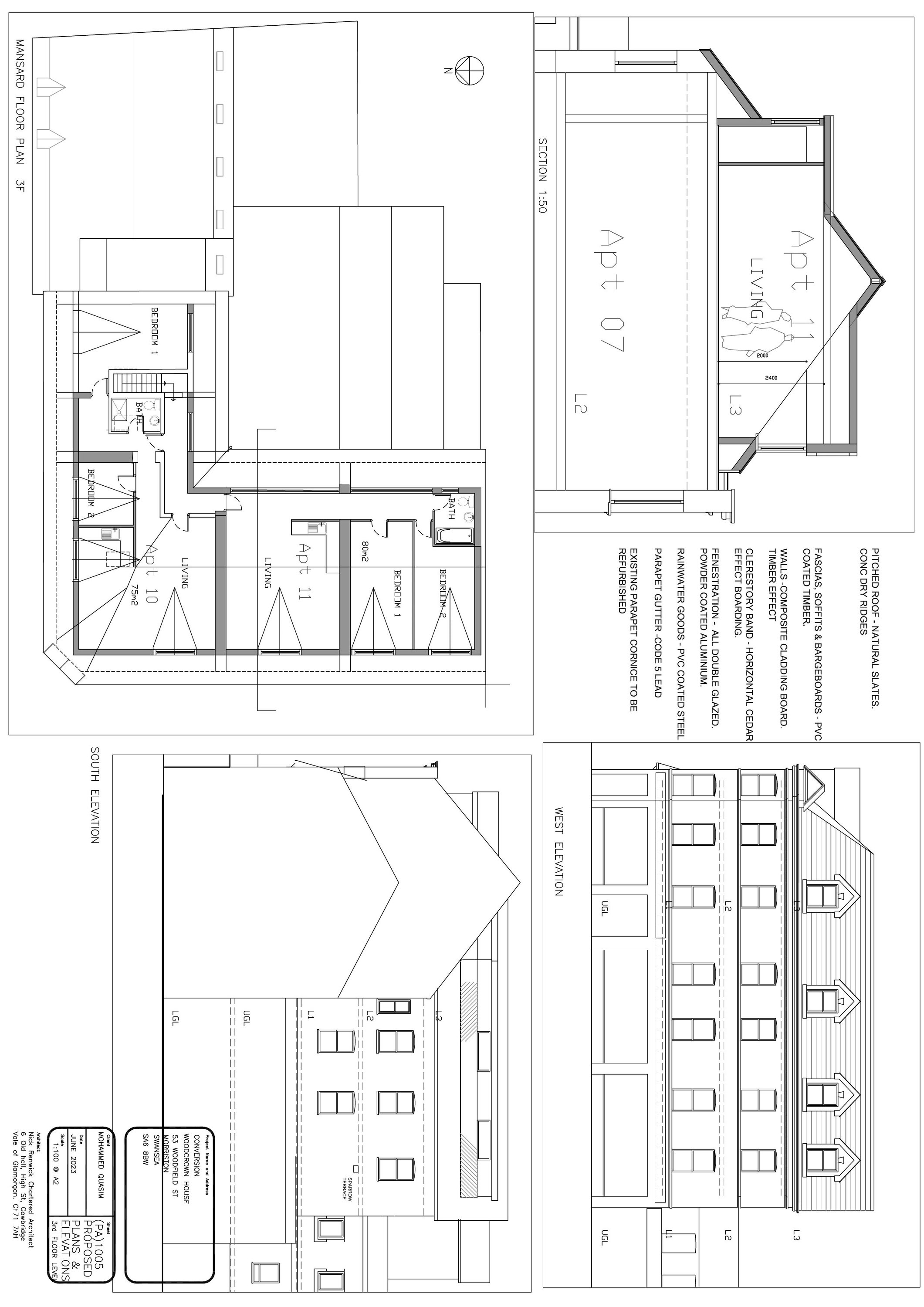
Conversion of roof space and second floor rear extension to create 2 additional flats plus fenestration alterations

Documents

APPLICATION FORM
Dogfen Gyfredol - Current Document
Not yet archived · Original link
BASEMENT LOWER GROUND FLOOR PLAN
Dogfen Gyfredol - Current Document
Not yet archived · Original link
COVERING LETTER
Dogfen Gyfredol - Current Document
Not yet archived · Original link
Datganiad i'r Wasg - Press Notice
Datganiad i'r Wasg - Press Notice
Not yet archived · Original link
DESIGN & ACCESS STATEMENT
Dogfen Gyfredol - Current Document
Not yet archived · Original link
EXISTING PLANS AND ELEVATIONS
Dogfen Gyfredol - Current Document
Not yet archived · Original link
GREEN INFRASTRUCTURE STATEMENT
Dogfen Gyfredol - Current Document
Not yet archived · Original link
Llythyr Cydnabyddiaeth -Acknowledgement Letter
Llythyr Cydnabyddiaeth -Acknowledgement Letter
Not yet archived · Original link
Dogfen Gyfredol - Current Document
Archived · Original link
Dogfen Gyfredol - Current Document
Archived · Original link
Ymgynghoriad Ymgyngoreion - Consultee Consultation
Ymgynghoriad Ymgyngoreion - Consultee Consultation
Not yet archived · Original link
Ymgynghoriad Ymgyngoreion - Consultee Consultation
Ymgynghoriad Ymgyngoreion - Consultee Consultation
Not yet archived · Original link
Ymgynghoriad Ymgyngoreion - Consultee Consultation
Ymgynghoriad Ymgyngoreion - Consultee Consultation
Not yet archived · Original link

Have your say

Your comment matters. Councils must consider every representation that raises material planning considerations.

Write a comment