← Swansea Council

Status

Being Considered Demolition
Received
04 Feb 2025
New homes
3

Full proposal

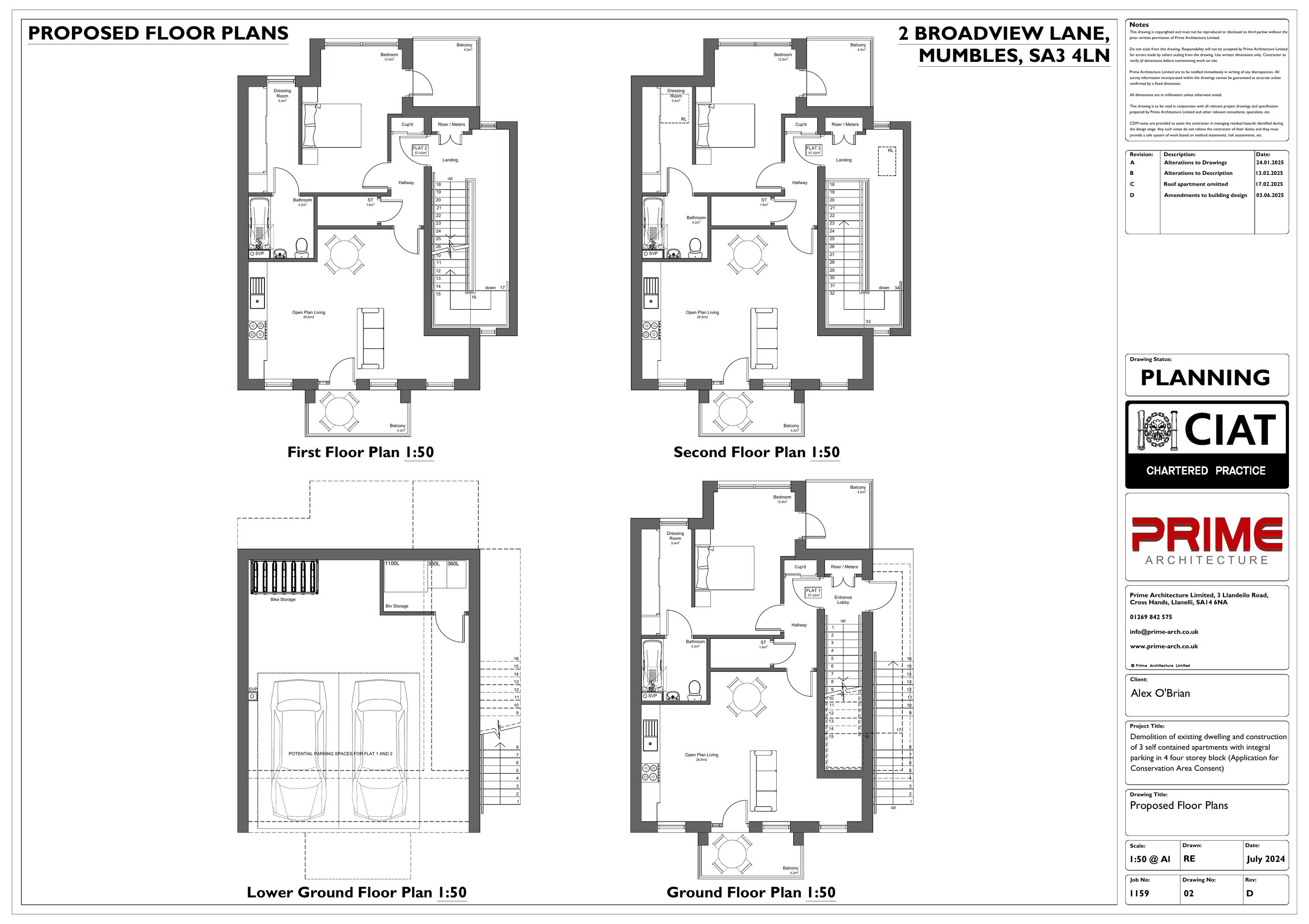
Demolition of existing dwelling and construction of 3 self contained apartments with integral parking in 4 four storey block and terracing and stairs (Application for Conservation Area Consent)

Documents

APPLICATION FORM
Dogfen Gyfredol - Current Document
Not yet archived · Original link
Datganiad i'r Wasg - Press Notice
Datganiad i'r Wasg - Press Notice
Not yet archived · Original link
EXISTING & PROPOSED ELEVATIONS
Dogfen a Ddisodlwyd - Superseded Document
Not yet archived · Original link
EXISTING AND PROPOSED ELEVATIONS
Dogfen Gyfredol - Current Document
Not yet archived · Original link
EXISTING AND PROPOSED ELEVATIONS
Dogfen a Ddisodlwyd - Superseded Document
Not yet archived · Original link
EXISTING FLOOR PLANS & ELEVATIONS
Dogfen a Ddisodlwyd - Superseded Document
Not yet archived · Original link
EXISTING FLOOR PLANS & ELEVATIONS
Dogfen a Ddisodlwyd - Superseded Document
Not yet archived · Original link
EXISTING FLOOR PLANS AND ELEVATIONS
Dogfen Gyfredol - Current Document
Not yet archived · Original link
GREEN INFRASTRUCTURE ASSESSMENT
Dogfen a Ddisodlwyd - Superseded Document
Not yet archived · Original link
GREEN INFRASTRUCTURE ASSESSMENT
Dogfen Gyfredol - Current Document
Not yet archived · Original link
HERITAGE IMPACT ASSESSMENT
Dogfen Gyfredol - Current Document
Not yet archived · Original link
HERITAGE IMPACT ASSESSMENT FOR 3 APARTMENTS
Dogfen a Ddisodlwyd - Superseded Document
Not yet archived · Original link
Llythyr Cydnabyddiaeth -Acknowledgement Letter
Llythyr Cydnabyddiaeth -Acknowledgement Letter
Not yet archived · Original link
PLANNING DESIGN STATEMENT
Dogfen a Ddisodlwyd - Superseded Document
Not yet archived · Original link
PRELIMINARY ROOST ASSESSMENT AND NESTING BIRD CHECK
Dogfen Gyfredol - Current Document
Not yet archived · Original link
PROPOSED ELEVATIONS
Dogfen a Ddisodlwyd - Superseded Document
Not yet archived · Original link
PROPOSED ELEVATIONS
Dogfen Gyfredol - Current Document
Not yet archived · Original link
PROPOSED ELEVATIONS
Dogfen a Ddisodlwyd - Superseded Document
Not yet archived · Original link
PROPOSED ELEVATIONS
Dogfen Gyfredol - Current Document
Not yet archived · Original link
PROPOSED ELEVATIONS & PREVIOUS ELEVATIONS
Dogfen a Ddisodlwyd - Superseded Document
Not yet archived · Original link
PROPOSED ELEVATIONS & PREVIOUS PROPOSAL ELEVATIONS
Dogfen a Ddisodlwyd - Superseded Document
Not yet archived · Original link
PROPOSED ELEVATIONS & PRVIOUS ELEVATIONS
Dogfen a Ddisodlwyd - Superseded Document
Not yet archived · Original link
Dogfen Gyfredol - Current Document
Archived · Original link
Dogfen a Ddisodlwyd - Superseded Document
Archived · Original link
PROPOSED REAR ELEVATION AND SECTION
Dogfen Gyfredol - Current Document
Not yet archived · Original link
PROPOSED REAR ELEVATION AND SECTION
Dogfen a Ddisodlwyd - Superseded Document
Not yet archived · Original link
PROPOSED REAR ELEVATION SECTION
Dogfen a Ddisodlwyd - Superseded Document
Not yet archived · Original link
PROPOSED SECTIONS A A B B
Dogfen a Ddisodlwyd - Superseded Document
Not yet archived · Original link
Dogfen a Ddisodlwyd - Superseded Document
Archived · Original link
Dogfen a Ddisodlwyd - Superseded Document
Archived · Original link
Dogfen Gyfredol - Current Document
Archived · Original link
Dogfen a Ddisodlwyd - Superseded Document
Archived · Original link
Dogfen Gyfredol - Current Document
Archived · Original link
Dogfen a Ddisodlwyd - Superseded Document
Archived · Original link
SITE BLOCK PLAN & LOCATION PLAN
Dogfen a Ddisodlwyd - Superseded Document
Not yet archived · Original link
SITE BLOCK PLAN & LOCATION PLAN
Dogfen Gyfredol - Current Document
Not yet archived · Original link
SITE BLOCK PLAN AND LOCATION PLAN
Dogfen Gyfredol - Current Document
Not yet archived · Original link
SITE BLOCK PLAN AND LOCATION PLAN
Dogfen a Ddisodlwyd - Superseded Document
Not yet archived · Original link
Ymgynghoriad Ymgyngoreion - Consultee Consultation
Ymgynghoriad Ymgyngoreion - Consultee Consultation
Not yet archived · Original link

Have your say

Your comment matters. Councils must consider every representation that raises material planning considerations.

Write a comment