← Swansea Council

Status

Being Considered New housing
Received
16 Apr 2025
New homes
131

Full proposal

Proposed residential development comprising circa 124 apartments and a 7 unit assisted living facility, together with commercial floorspace, central hub building and office space, with access, parking, landscaping, and associated development

Documents

2 STOREY ELEVATIONS
Dogfen Gyfredol - Current Document
Not yet archived · Original link
2 STOREY PLANS AND SECTION
Dogfen Gyfredol - Current Document
Not yet archived · Original link
2.5 STOREY DQR ELEVATIONS
Dogfen Gyfredol - Current Document
Not yet archived · Original link
2.5 STOREY DQR PLANS AND SECTION
Dogfen Gyfredol - Current Document
Not yet archived · Original link
2.5 STOREY ELEVATIONS
Dogfen Gyfredol - Current Document
Not yet archived · Original link
2.5 STOREY ELEVATIONS
Dogfen Gyfredol - Current Document
Not yet archived · Original link
2.5 STOREY ELEVATIONS
Dogfen Gyfredol - Current Document
Not yet archived · Original link
2.5 STOREY ELEVATIONS
Dogfen Gyfredol - Current Document
Not yet archived · Original link
2.5 STOREY PLANS
Dogfen Gyfredol - Current Document
Not yet archived · Original link
2.5 STOREY PLANS
Dogfen Gyfredol - Current Document
Not yet archived · Original link
2.5 STOREY PLANS AND SECTION
Dogfen Gyfredol - Current Document
Not yet archived · Original link
2.5 STOREY PLANS AND SECTION
Dogfen Gyfredol - Current Document
Not yet archived · Original link
2.5 STOREY PLANS AND SECTION
Dogfen Gyfredol - Current Document
Not yet archived · Original link
2.5 STOREY PLANS AND SECTION
Dogfen Gyfredol - Current Document
Not yet archived · Original link
3.5 STOREY ELEVATIONS
Dogfen Gyfredol - Current Document
Not yet archived · Original link
3.5 STOREY ELEVATIONS AND SECTION
Dogfen Gyfredol - Current Document
Not yet archived · Original link
3.5 STOREY PLANS
Dogfen Gyfredol - Current Document
Not yet archived · Original link
3.5 STOREY PLANS
Dogfen Gyfredol - Current Document
Not yet archived · Original link
3.5 STOREY PLANS AND SECTION
Dogfen Gyfredol - Current Document
Not yet archived · Original link
APPENDIX B - SCHEDULE 1C - HENGOED
Dogfen Gyfredol - Current Document
Not yet archived · Original link
APPENDIX C - LIST OF CONSULTEES
Dogfen Gyfredol - Current Document
Not yet archived · Original link
APPLICATION FORM
Dogfen Gyfredol - Current Document
Not yet archived · Original link
BIRDS EYE VIEW PLAN
Dogfen Gyfredol - Current Document
Not yet archived · Original link
BOREHOLE REPORT
Dogfen Gyfredol - Current Document
Not yet archived · Original link
BUILDING TYPE D - 2 STOREY ASSISTED LIVING BLOCK
Dogfen Gyfredol - Current Document
Not yet archived · Original link
CASE STUDY
Dogfen Gyfredol - Current Document
Not yet archived · Original link
CEFN HENGOED ROAD ACCESS - PROPOSED MITIGATION PLAN
Dogfen Gyfredol - Current Document
Not yet archived · Original link
CHARACTER AREAS 2
Dogfen Gyfredol - Current Document
Not yet archived · Original link
CLOSURE REPORT
Dogfen Gyfredol - Current Document
Not yet archived · Original link
CONSTRAINTS PLAN-REV-A -1000-A1.
Dogfen Gyfredol - Current Document
Not yet archived · Original link
COVER LETTER
Dogfen Gyfredol - Current Document
Not yet archived · Original link
DAS APPENDIX A - PRE-APP RESPONSE
Dogfen Gyfredol - Current Document
Not yet archived · Original link
Datganiad i'r Wasg - Press Notice
Datganiad i'r Wasg - Press Notice
Not yet archived · Original link
DESIGN AND ACCESS STATEMENT
Dogfen Gyfredol - Current Document
Not yet archived · Original link
DESIGN AND ACCESS STATEMENT
Dogfen Gyfredol - Current Document
Not yet archived · Original link
DESIGN AND ACCESS STATEMENT
Dogfen Gyfredol - Current Document
Not yet archived · Original link
DESIGN AND ACCESS STATEMENT
Dogfen Gyfredol - Current Document
Not yet archived · Original link
DESIGN AND ACCESS STATEMENT - PRE APP RESPONSES
Dogfen Gyfredol - Current Document
Not yet archived · Original link
DRAINAGE STRATEGY
Dogfen Gyfredol - Current Document
Not yet archived · Original link
ELEVATIONS ASSISTED LIVING
Dogfen Gyfredol - Current Document
Not yet archived · Original link
FRAMEWORK TRAVEL PLAN
Dogfen Gyfredol - Current Document
Not yet archived · Original link
GROUND-STABILISATION-REPORT NOV 2010
Dogfen Gyfredol - Current Document
Not yet archived · Original link
HENGOED - GREEN INFRASTRUCTURE STATEMENT
Dogfen Gyfredol - Current Document
Not yet archived · Original link
HENGOED CARE VILLAGE PLANNING STATEMENT - MARCH 2025
Dogfen Gyfredol - Current Document
Not yet archived · Original link
HOUSE TYPES VARIATIONS
Dogfen Gyfredol - Current Document
Not yet archived · Original link
HOUSING SCHEDULE-PHASE.
Dogfen Gyfredol - Current Document
Not yet archived · Original link
HUB ELEVATIONS
Dogfen Gyfredol - Current Document
Not yet archived · Original link
HUB.UPPER FLOORS AND ROOF
Dogfen Gyfredol - Current Document
Not yet archived · Original link
LANDSCAPE AND VISUAL IMPACT STATEMENT
Dogfen Gyfredol - Current Document
Not yet archived · Original link
LANDSCAPE, BIODIVERSITY & AMENITY STRATEGY
Dogfen Gyfredol - Current Document
Not yet archived · Original link
Llythyr Cydnabyddiaeth -Acknowledgement Letter
Llythyr Cydnabyddiaeth -Acknowledgement Letter
Not yet archived · Original link
LOCATION PLAN - EXISTING-20250214
Dogfen Gyfredol - Current Document
Not yet archived · Original link
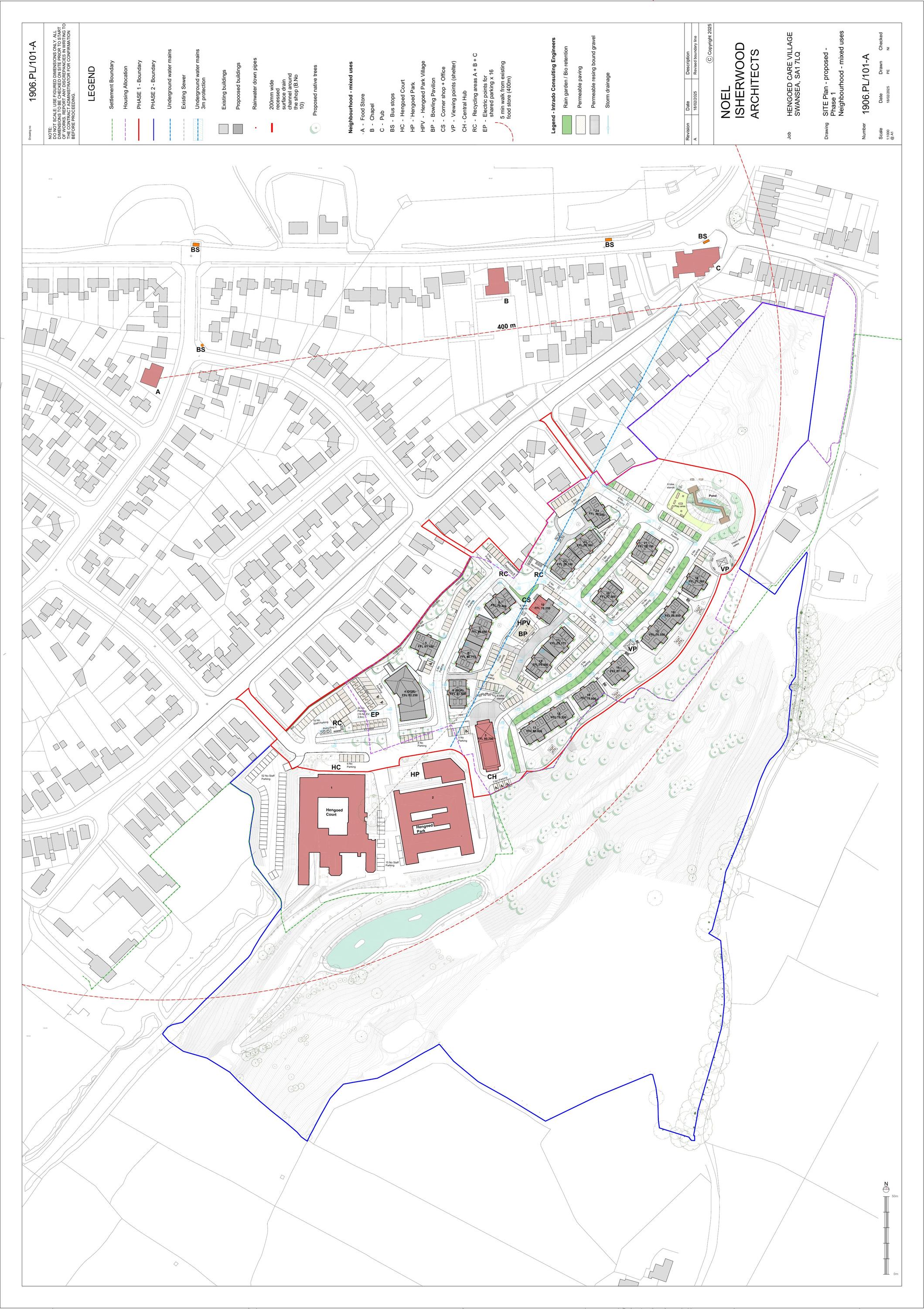
MASTER PLAN - DETAILED + BUILDING HEIGHTS - PHASE 1
Dogfen Gyfredol - Current Document
Not yet archived · Original link
MASTER PLAN - DETAILED + BUILDING HEIGHTS - PHASE 1
Dogfen Gyfredol - Current Document
Not yet archived · Original link
MASTER PLAN DETAILED AND BUILDING HEIGHTS PHASE 1 20250218
Dogfen Gyfredol - Current Document
Not yet archived · Original link
MASTER PLAN MIXED USES 20250218
Dogfen Gyfredol - Current Document
Not yet archived · Original link
MINING RISK ASSESSMENT
Dogfen Gyfredol - Current Document
Not yet archived · Original link
PAC REPORT - HENGOED CARE FACILITY - APRIL 2025
Dogfen Gyfredol - Current Document
Not yet archived · Original link
PEA REPORT - LAND ADJACENT TO HENGOED CARE HOME PEA REPORT REV_B (NEW)
Dogfen Gyfredol - Current Document
Not yet archived · Original link
PERSPECTIVE 2 VIEW TOWARDS CENTRAL HUB FROM THE AVENUE
Dogfen Gyfredol - Current Document
Not yet archived · Original link
PLANS ASSISTED LIVING
Dogfen Gyfredol - Current Document
Not yet archived · Original link
PRELIMINARY ECOLOGICAL APPRAISAL
Dogfen Gyfredol - Current Document
Not yet archived · Original link
PROPOSED SITE ADOPTED HIGHWAY PLAN
Dogfen Gyfredol - Current Document
Not yet archived · Original link
SE SITE SECTION ELEVATIONS COMPRESSED
Dogfen Gyfredol - Current Document
Not yet archived · Original link
SHOP B.10 ELEVATIONS 20250130
Dogfen Gyfredol - Current Document
Not yet archived · Original link
SHOP B.10 PLANS 20250130
Dogfen Gyfredol - Current Document
Not yet archived · Original link
Dogfen Gyfredol - Current Document
Archived · Original link
Dogfen Gyfredol - Current Document
Archived · Original link
SITE SECTIONS: CROSS SECTION ELEVATION B-B
Dogfen Gyfredol - Current Document
Not yet archived · Original link
SITE SECTIONS: CROSS SECTION ELEVATION C-C
Dogfen Gyfredol - Current Document
Not yet archived · Original link
SITE SECTIONS: CROSS SECTION ELEVATION D-D
Dogfen Gyfredol - Current Document
Not yet archived · Original link
SITE SECTIONS: LONGITUDINAL SITE SECTION ELEVATION A-A
Dogfen Gyfredol - Current Document
Not yet archived · Original link
TECHNICAL NOTE ? ENERGY APPROACH
Dogfen Gyfredol - Current Document
Not yet archived · Original link
TRANSPORT ASSESSMENT
Dogfen Gyfredol - Current Document
Not yet archived · Original link
TRANSPORT NOTE
Dogfen Gyfredol - Current Document
Not yet archived · Original link
VIEW FROM CENTRAL HUB TO SHOP
Dogfen Gyfredol - Current Document
Not yet archived · Original link
VIEW OF THE NEW ROAD FROM CEFN HENGOED ROAD
Dogfen Gyfredol - Current Document
Not yet archived · Original link
VIEW TO CENTRAL HUB FROM ASSITED LIVING
Dogfen Gyfredol - Current Document
Not yet archived · Original link
VIEW TO SHOP FROM CEFN HENGOED ROAD FOOTPATH
Dogfen Gyfredol - Current Document
Not yet archived · Original link
VILLAGE CLUBHOUSE AND OFFICES FLOOR PLANS
Dogfen Gyfredol - Current Document
Not yet archived · Original link
Ymgynghoriad Ymgyngoreion - Consultee Consultation
Ymgynghoriad Ymgyngoreion - Consultee Consultation
Not yet archived · Original link
Ymgynghoriad Ymgyngoreion - Consultee Consultation
Ymgynghoriad Ymgyngoreion - Consultee Consultation
Not yet archived · Original link
Ymgynghoriad Ymgyngoreion - Consultee Consultation
Ymgynghoriad Ymgyngoreion - Consultee Consultation
Not yet archived · Original link
Ymgynghoriad Ymgyngoreion - Consultee Consultation
Ymgynghoriad Ymgyngoreion - Consultee Consultation
Not yet archived · Original link
Ymgynghoriad Ymgyngoreion - Consultee Consultation
Ymgynghoriad Ymgyngoreion - Consultee Consultation
Not yet archived · Original link
Ymgynghoriad Ymgyngoreion - Consultee Consultation
Ymgynghoriad Ymgyngoreion - Consultee Consultation
Not yet archived · Original link
Ymgynghoriad Ymgyngoreion - Consultee Consultation
Ymgynghoriad Ymgyngoreion - Consultee Consultation
Not yet archived · Original link
Ymgynghoriad Ymgyngoreion - Consultee Consultation
Ymgynghoriad Ymgyngoreion - Consultee Consultation
Not yet archived · Original link
Ymgynghoriad Ymgyngoreion - Consultee Consultation
Ymgynghoriad Ymgyngoreion - Consultee Consultation
Not yet archived · Original link
Ymgynghoriad Ymgyngoreion - Consultee Consultation
Ymgynghoriad Ymgyngoreion - Consultee Consultation
Not yet archived · Original link
Ymgynghoriad Ymgyngoreion - Consultee Consultation
Ymgynghoriad Ymgyngoreion - Consultee Consultation
Not yet archived · Original link
Ymgynghoriad Ymgyngoreion - Consultee Consultation
Ymgynghoriad Ymgyngoreion - Consultee Consultation
Not yet archived · Original link
Ymgynghoriad Ymgyngoreion - Consultee Consultation
Ymgynghoriad Ymgyngoreion - Consultee Consultation
Not yet archived · Original link
Ymgynghoriad Ymgyngoreion - Consultee Consultation
Ymgynghoriad Ymgyngoreion - Consultee Consultation
Not yet archived · Original link

Have your say

Your comment matters. Councils must consider every representation that raises material planning considerations.

Write a comment