← Swansea Council

Status

Being Considered Change of use
Received
22 Apr 2025
New homes
1

Full proposal

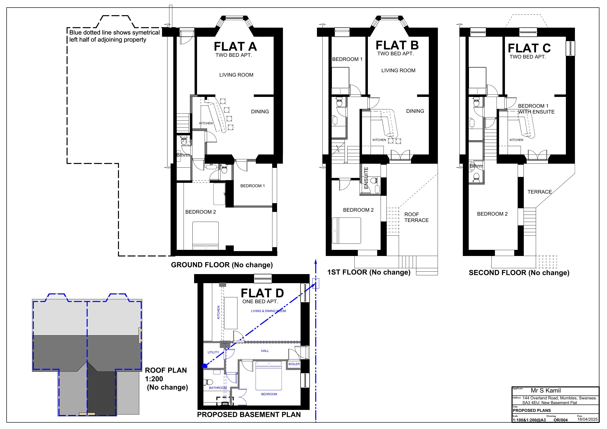
Consent for the conversion of flat A (ground floor flat) to two flats- a lower ground floor (basement) flat and a ground floor flat (Amended Description reccieved)

Documents

APPLICATIONFORMREDACTED
Dogfen Gyfredol - Current Document
Not yet archived · Original link
COVER LETTER
Dogfen Gyfredol - Current Document
Not yet archived · Original link
Datganiad i'r Wasg - Press Notice
Datganiad i'r Wasg - Press Notice
Not yet archived · Original link
DESIGN STATEMENT
Dogfen Gyfredol - Current Document
Not yet archived · Original link
DESIGN STATEMENT
Dogfen a Ddisodlwyd - Superseded Document
Not yet archived · Original link
DESIGN STATEMENT
Dogfen Gyfredol - Current Document
Not yet archived · Original link
ELEVATIONS
Dogfen Gyfredol - Current Document
Not yet archived · Original link
EXISTING ELEVATIONS
Dogfen a Ddisodlwyd - Superseded Document
Not yet archived · Original link
EXISTING PLANS
Dogfen a Ddisodlwyd - Superseded Document
Not yet archived · Original link
EXISTING PLANS
Dogfen Gyfredol - Current Document
Not yet archived · Original link
GREEN INFRASTRUCTURE STATEMENT
Dogfen a Ddisodlwyd - Superseded Document
Not yet archived · Original link
GREEN INFRASTRUCTURE STATEMENT
Dogfen Gyfredol - Current Document
Not yet archived · Original link
HERITAGE IMPACT ASSESSMENT STATEMENT
Dogfen Gyfredol - Current Document
Not yet archived · Original link
HERITAGE IMPACT STATEMENT
Dogfen a Ddisodlwyd - Superseded Document
Not yet archived · Original link
Llythyr Cydnabyddiaeth -Acknowledgement Letter
Llythyr Cydnabyddiaeth -Acknowledgement Letter
Not yet archived · Original link
LOCATION PLAN
Dogfen Gyfredol - Current Document
Not yet archived · Original link
PROPOSED & EXISTING BASEMENT PLANS
Dogfen a Ddisodlwyd - Superseded Document
Not yet archived · Original link
PROPOSED AND EXISTING BASEMENT PLANS
Dogfen Gyfredol - Current Document
Not yet archived · Original link
Dogfen a Ddisodlwyd - Superseded Document
Archived · Original link
Dogfen Gyfredol - Current Document
Archived · Original link
SITE & BLOCK PLANS
Dogfen a Ddisodlwyd - Superseded Document
Not yet archived · Original link
SITE AND BLOCK PLANS
Dogfen Gyfredol - Current Document
Not yet archived · Original link
Ymgynghoriad Ymgyngoreion - Consultee Consultation
Ymgynghoriad Ymgyngoreion - Consultee Consultation
Not yet archived · Original link
Ymgynghoriad Ymgyngoreion - Consultee Consultation
Ymgynghoriad Ymgyngoreion - Consultee Consultation
Not yet archived · Original link

Have your say

Your comment matters. Councils must consider every representation that raises material planning considerations.

Write a comment