← Swansea Council

Status

Being Considered Change of use
Received
27 Aug 2025
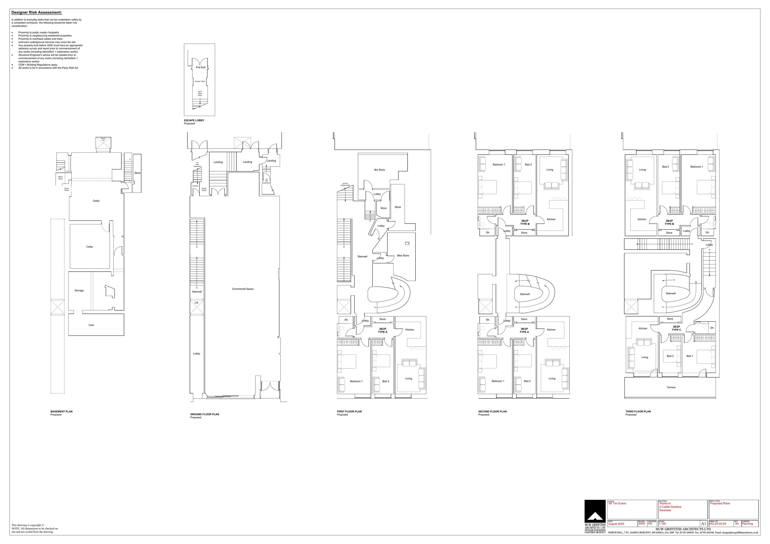
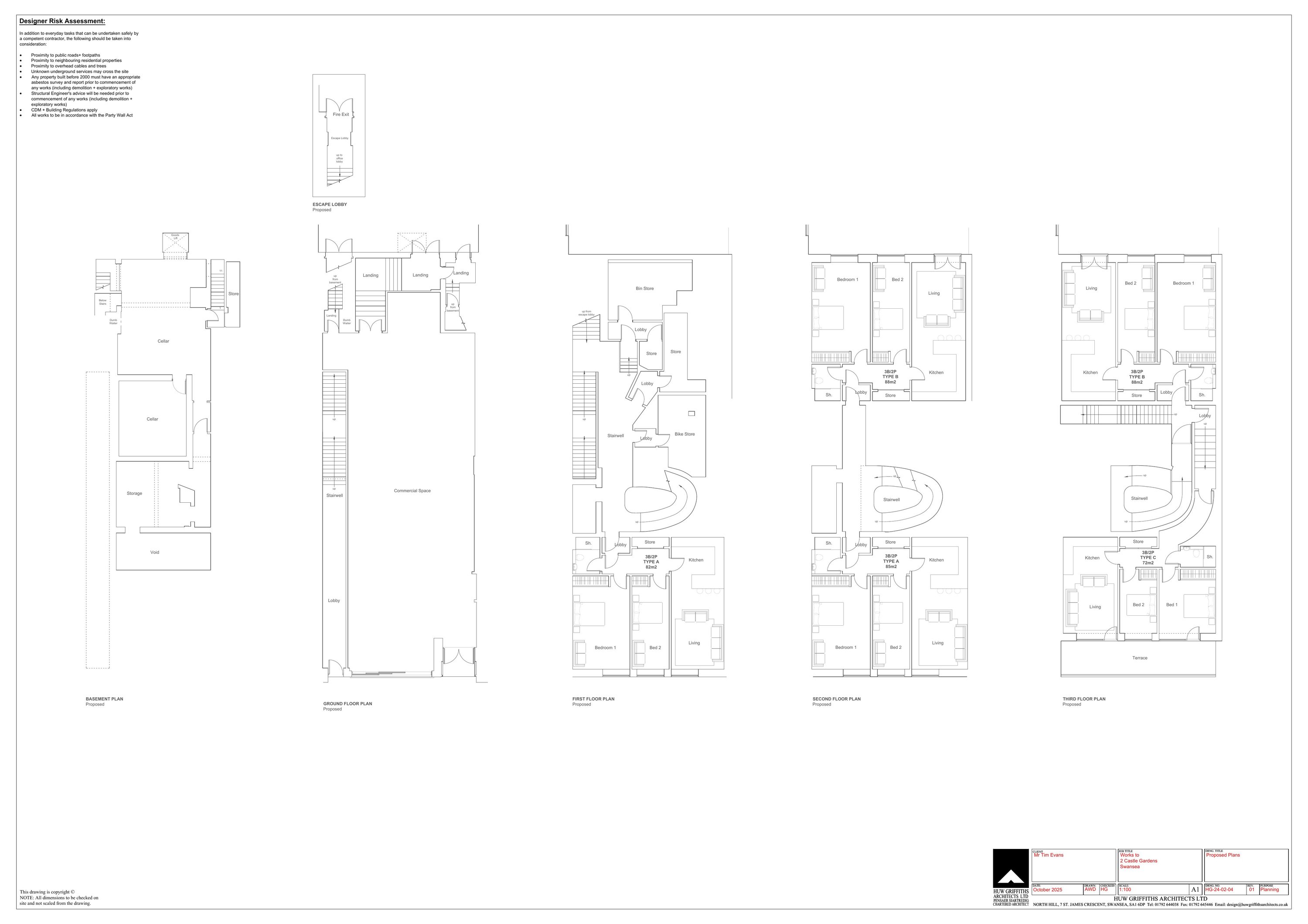
New homes
9

Full proposal

Conversion of upper three commercial floors to residential and two additional floors to provide in total 9 No. 2bed/3 person flats.

Documents

APPLICATION FORM
Dogfen Gyfredol - Current Document
Not yet archived · Original link
BAT SURVEY REPORT
Dogfen Gyfredol - Current Document
Not yet archived · Original link
EXISTING ELEVATIONS
Dogfen Gyfredol - Current Document
Not yet archived · Original link
EXISTING PLANS
Dogfen Gyfredol - Current Document
Not yet archived · Original link
GREEN INFRASTRUCTURE STATEMENT
Dogfen Gyfredol - Current Document
Not yet archived · Original link
Llythyr Cydnabyddiaeth -Acknowledgement Letter
Llythyr Cydnabyddiaeth -Acknowledgement Letter
Not yet archived · Original link
PROPOSED BLOCK & LOCATION PLANS
Dogfen Gyfredol - Current Document
Not yet archived · Original link
PROPOSED ELEVATIONS
Dogfen Gyfredol - Current Document
Not yet archived · Original link
PROPOSED ELEVATIONS
Dogfen Gyfredol - Current Document
Not yet archived · Original link
Dogfen Gyfredol - Current Document
Archived · Original link
Dogfen Gyfredol - Current Document
Archived · Original link
Dogfen Gyfredol - Current Document
Archived · Original link
Dogfen Gyfredol - Current Document
Archived · Original link
Ymgynghoriad Ymgyngoreion - Consultee Consultation
Ymgynghoriad Ymgyngoreion - Consultee Consultation
Not yet archived · Original link
Ymgynghoriad Ymgyngoreion - Consultee Consultation
Ymgynghoriad Ymgyngoreion - Consultee Consultation
Not yet archived · Original link
Ymgynghoriad Ymgyngoreion - Consultee Consultation
Ymgynghoriad Ymgyngoreion - Consultee Consultation
Not yet archived · Original link

Have your say

Your comment matters. Councils must consider every representation that raises material planning considerations.

Write a comment