← Swansea Council

Status

Being Considered Change of use
Received
19 Dec 2025
New homes
0

Full proposal

Redevelopment and conversion of a former church (D1) and vicarage (C3) to a Community Cwtch (D1) with a link extension

Documents

APPLICATIONFORMREDACTED
Dogfen Gyfredol - Current Document
Not yet archived · Original link
BAT SURVEY REPORT
Dogfen Gyfredol - Current Document
Not yet archived · Original link
CHURCH - EXISTING GROUND FLOOR PLAN AND ROOF PLAN
Dogfen Gyfredol - Current Document
Not yet archived · Original link
COMBINED ARBORICULTURAL IMPACT ASSESSMENT/ METHOD STATEMENT
Dogfen Gyfredol - Current Document
Not yet archived · Original link
EXISTING ELEVATIONS - COMBINED
Dogfen Gyfredol - Current Document
Not yet archived · Original link
Dogfen Gyfredol - Current Document
Archived · Original link
EXISTING VICARAGE FLOOR AND ROOF PLANS
Dogfen Gyfredol - Current Document
Not yet archived · Original link
GREEN INFRASTRUCTURE STATEMENT
Dogfen Gyfredol - Current Document
Not yet archived · Original link
Llythyr Cydnabyddiaeth -Acknowledgement Letter
Llythyr Cydnabyddiaeth -Acknowledgement Letter
Not yet archived · Original link
PLANNING STATEMENT
Dogfen Gyfredol - Current Document
Not yet archived · Original link
PROPOSED ELEVATIONS SHEET 1
Dogfen Gyfredol - Current Document
Not yet archived · Original link
PROPOSED ELEVATIONS SHEET 2
Dogfen Gyfredol - Current Document
Not yet archived · Original link
PROPOSED FIRST FLOOR PLAN
Dogfen Gyfredol - Current Document
Not yet archived · Original link
PROPOSED FRONT GARDEN ACCESS AREA
Dogfen Gyfredol - Current Document
Not yet archived · Original link
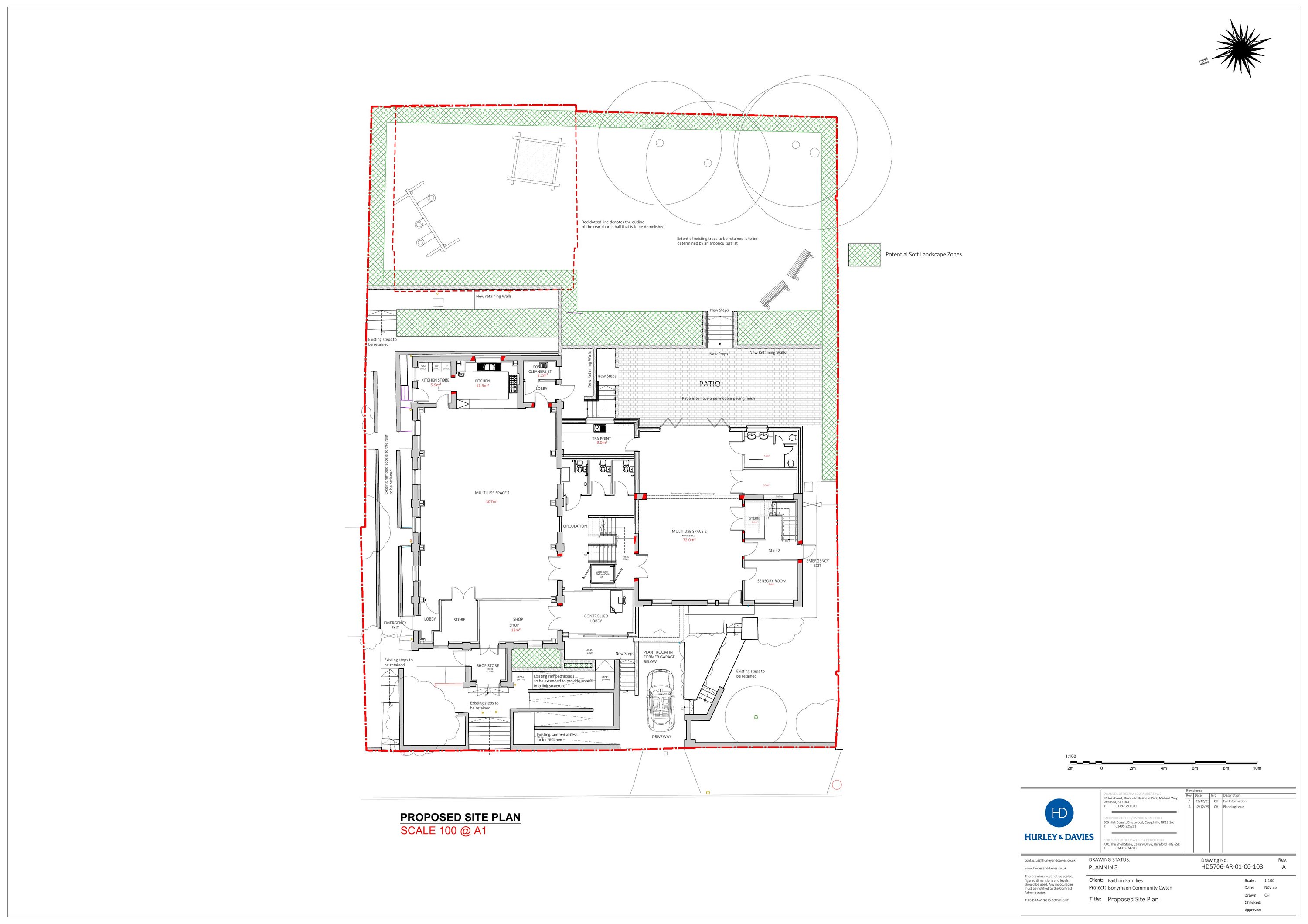
PROPOSED LOWER GROUND AND GROUND FLOOR PLAN
Dogfen Gyfredol - Current Document
Not yet archived · Original link
PROPOSED ROOF PLAN
Dogfen Gyfredol - Current Document
Not yet archived · Original link
PROPOSED SECTIONS
Dogfen Gyfredol - Current Document
Not yet archived · Original link
Dogfen Gyfredol - Current Document
Archived · Original link
Dogfen Gyfredol - Current Document
Archived · Original link
TRANSPORT STATEMENT
Dogfen Gyfredol - Current Document
Not yet archived · Original link
TREE CONSTRAINTS PLAN
Dogfen Gyfredol - Current Document
Not yet archived · Original link
TREE PROTECTION PLAN
Dogfen Gyfredol - Current Document
Not yet archived · Original link
TREE REMOVAL AND RETENTION PLAN
Dogfen Gyfredol - Current Document
Not yet archived · Original link
TREE SURVEY AND CATEGORISATION
Dogfen Gyfredol - Current Document
Not yet archived · Original link
Ymgynghoriad Ymgyngoreion - Consultee Consultation
Ymgynghoriad Ymgyngoreion - Consultee Consultation
Not yet archived · Original link
Ymgynghoriad Ymgyngoreion - Consultee Consultation
Ymgynghoriad Ymgyngoreion - Consultee Consultation
Not yet archived · Original link
Ymgynghoriad Ymgyngoreion - Consultee Consultation
Ymgynghoriad Ymgyngoreion - Consultee Consultation
Not yet archived · Original link
Ymgynghoriad Ymgyngoreion - Consultee Consultation
Ymgynghoriad Ymgyngoreion - Consultee Consultation
Not yet archived · Original link
Ymgynghoriad Ymgyngoreion - Consultee Consultation
Ymgynghoriad Ymgyngoreion - Consultee Consultation
Not yet archived · Original link

Have your say

Your comment matters. Councils must consider every representation that raises material planning considerations.

Write a comment