← Swansea Council

Status

Being Considered House extension
Received
06 Jan 2026
New homes
0

Full proposal

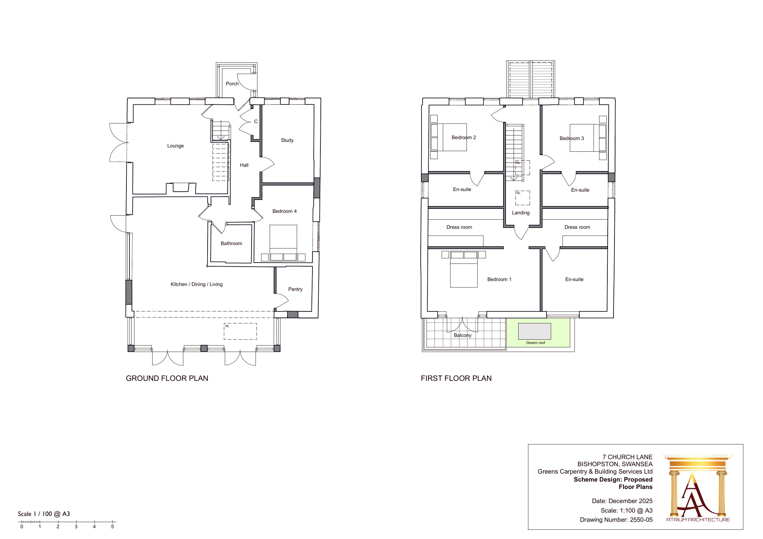
Increase in ridge height of bungalow including front and rear rooflights, first floor rear extension, single storey rear extension with balcony,front porch and fenestration alterations

Documents

APPLICATION FORM
Dogfen Gyfredol - Current Document
Not yet archived · Original link
BAT REPORT SEPT 2025
Dogfen Gyfredol - Current Document
Not yet archived · Original link
EXISTING ELEVATIONS
Dogfen Gyfredol - Current Document
Not yet archived · Original link
EXISTING FLOOR PLANS
Dogfen Gyfredol - Current Document
Not yet archived · Original link
Dogfen Gyfredol - Current Document
Archived · Original link
GREEN INFRASTRUCTURE ASSESSMENT
Dogfen Gyfredol - Current Document
Not yet archived · Original link
Llythyr Cydnabyddiaeth -Acknowledgement Letter
Llythyr Cydnabyddiaeth -Acknowledgement Letter
Not yet archived · Original link
LOCATION PLAN
Dogfen Gyfredol - Current Document
Not yet archived · Original link
PROPOSED BLOCK PLAN
Dogfen Gyfredol - Current Document
Not yet archived · Original link
PROPOSED ELEVATIONS
Dogfen Gyfredol - Current Document
Not yet archived · Original link
Dogfen Gyfredol - Current Document
Archived · Original link
Ymgynghoriad Ymgyngoreion - Consultee Consultation
Ymgynghoriad Ymgyngoreion - Consultee Consultation
Not yet archived · Original link

Have your say

Your comment matters. Councils must consider every representation that raises material planning considerations.

Write a comment