← Swansea Council

Status

Being Considered House extension
Received
Last month
New homes
0

Full proposal

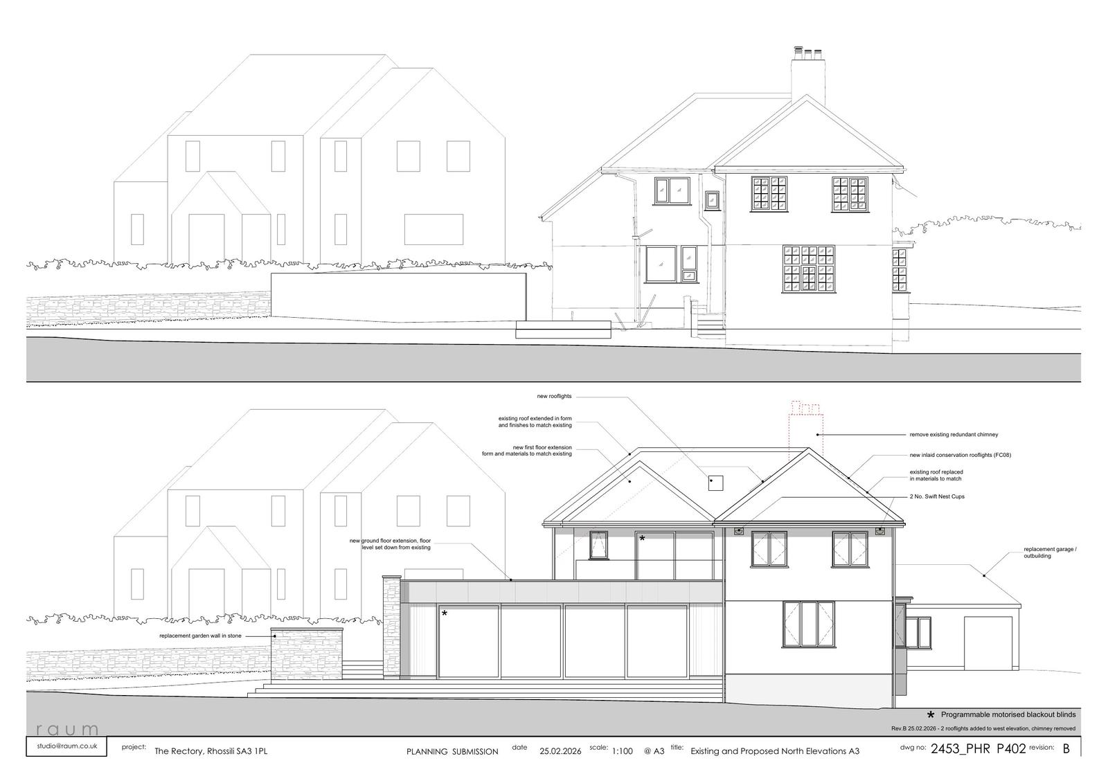
New front porch addition, rear ground floor flat roofed extension and first floor pitched roof extension with terrace, a first-floor roof extension, new roof coverings and fenestration alterations throughout, replacement garage, inlaid PV array to the side elevation roof, siting of an Air Source Heat Pump, demolition of remaining chimney and addition of a further two front roof lights

Documents

Dogfen Gyfredol - Current Document
Archived · Original link
Dogfen Gyfredol - Current Document
Archived · Original link
Dogfen Gyfredol - Current Document
Archived · Original link
Dogfen Gyfredol - Current Document
Archived · Original link
Dogfen Gyfredol - Current Document
Archived · Original link
Dogfen Gyfredol - Current Document
Archived · Original link
Dogfen Gyfredol - Current Document
Archived · Original link

Have your say

Your comment matters. Councils must consider every representation that raises material planning considerations.

Write a comment