← Swansea Council

Status

Being Considered House extension
Received
Last month
New homes
0

Full proposal

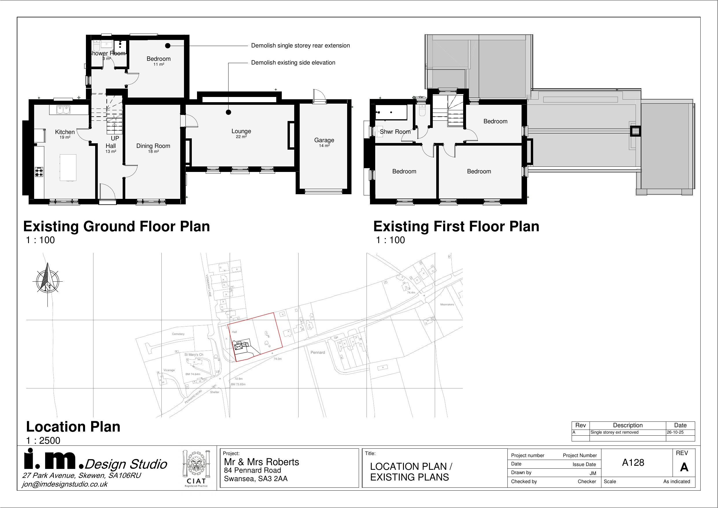
Demolition of existing ground floor single storey side,rear wing and construction of single storey side extension

Documents

Dogfen Gyfredol - Current Document
Archived · Original link
Dogfen Gyfredol - Current Document
Archived · Original link
Dogfen Gyfredol - Current Document
Archived · Original link
Dogfen Gyfredol - Current Document
Archived · Original link

Have your say

Your comment matters. Councils must consider every representation that raises material planning considerations.

Write a comment