← Swansea Council

Status

Being Considered Change of use
Received
Last month
New homes
1

Full proposal

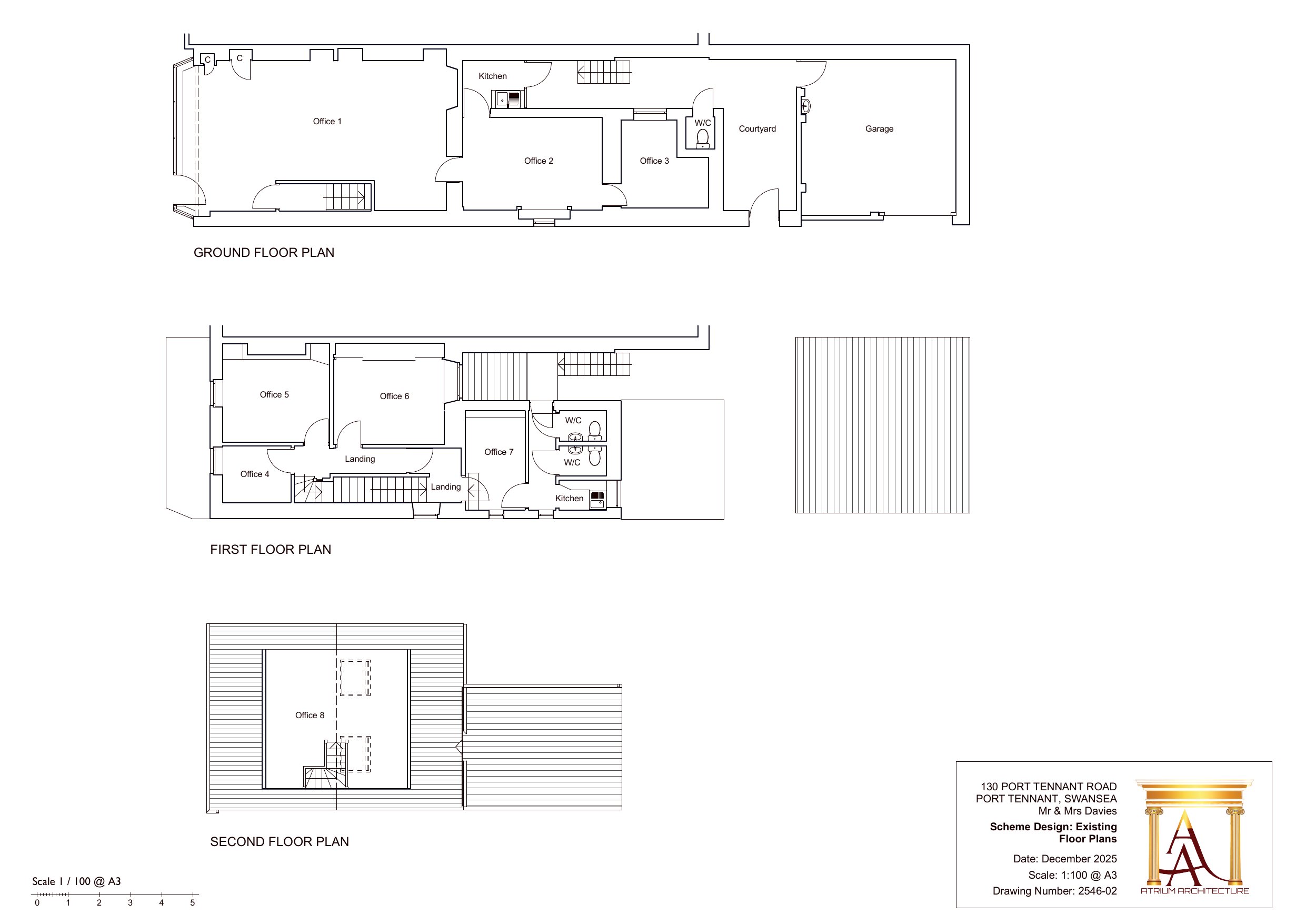
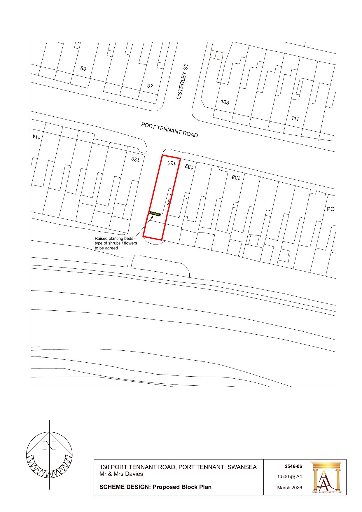
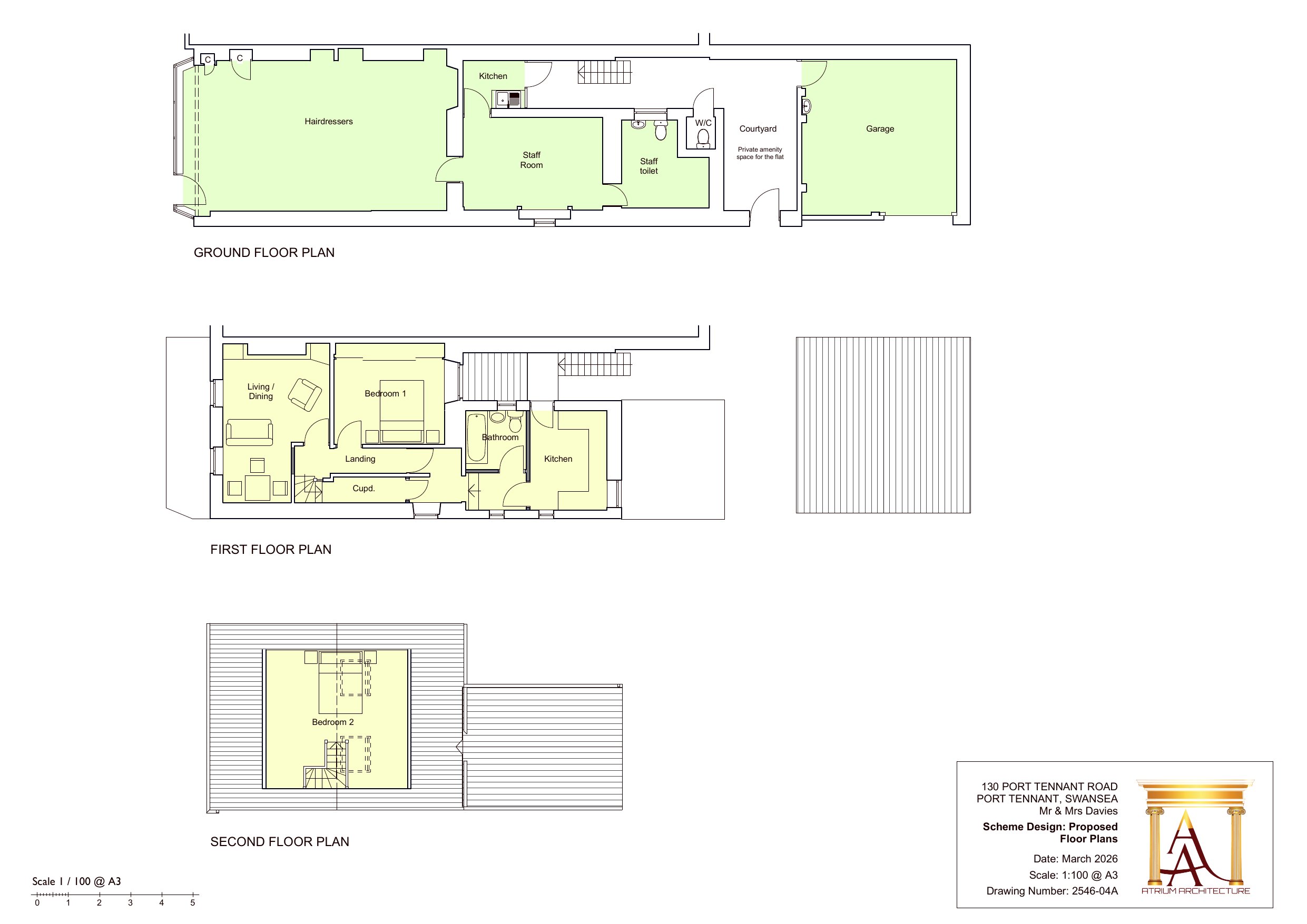
Change of use to create a ground floor hairdressers with a 2 bed flat above

Documents

Dogfen Gyfredol - Current Document
Archived · Original link
Dogfen Gyfredol - Current Document
Archived · Original link
Dogfen Gyfredol - Current Document
Archived · Original link
Dogfen Gyfredol - Current Document
Archived · Original link
Llythyr Cydnabyddiaeth -Acknowledgement Letter
Archived · Original link
Dogfen Gyfredol - Current Document
Archived · Original link
Dogfen Gyfredol - Current Document
Archived · Original link
Dogfen Gyfredol - Current Document
Archived · Original link
Dogfen Gyfredol - Current Document
Archived · Original link
Ymgynghoriad Ymgyngoreion - Consultee Consultation
Archived · Original link

Have your say

Your comment matters. Councils must consider every representation that raises material planning considerations.

Write a comment