← Swansea Council

Status

Being Considered House extension
Received
28 days ago
New homes
0

Full proposal

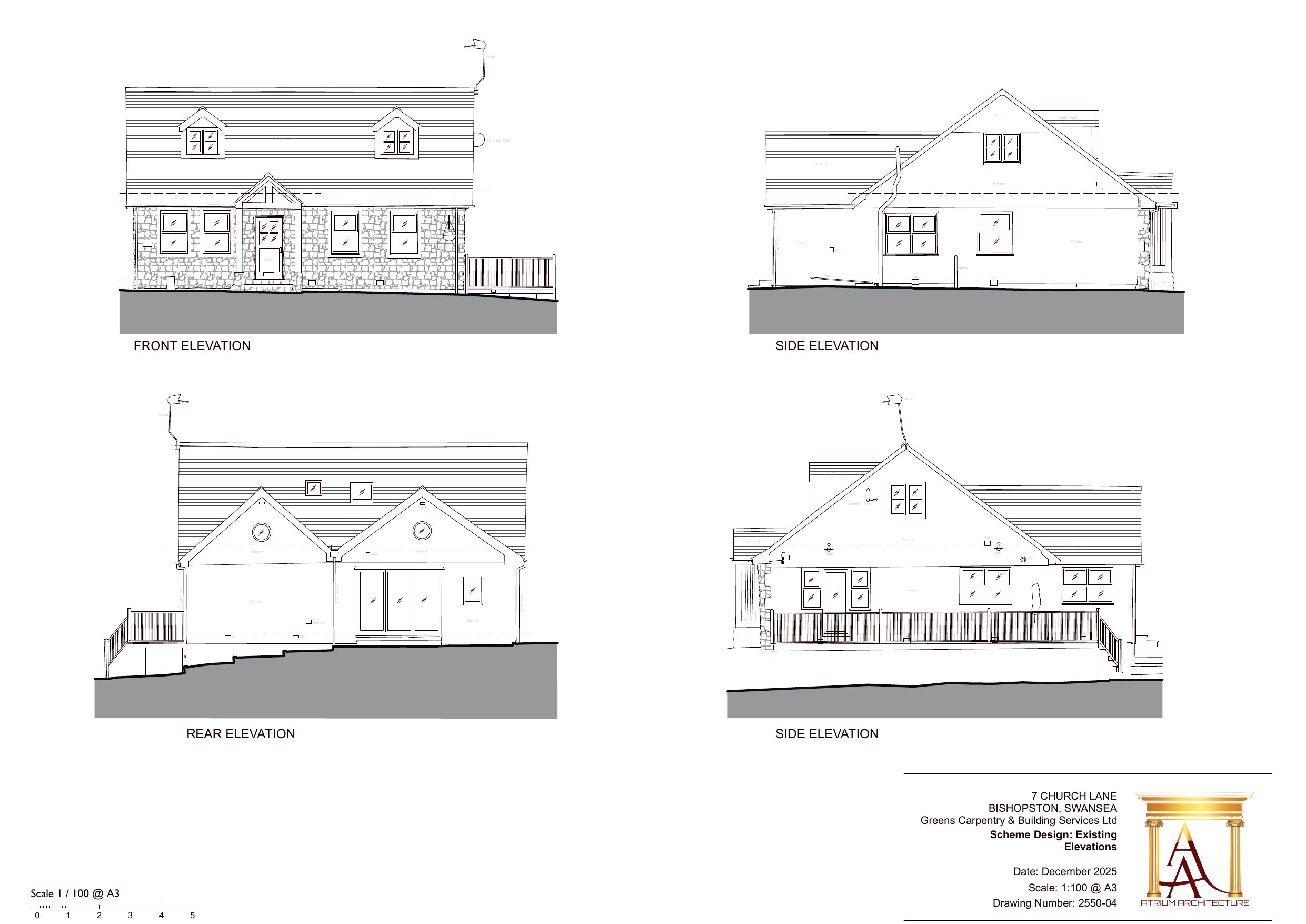
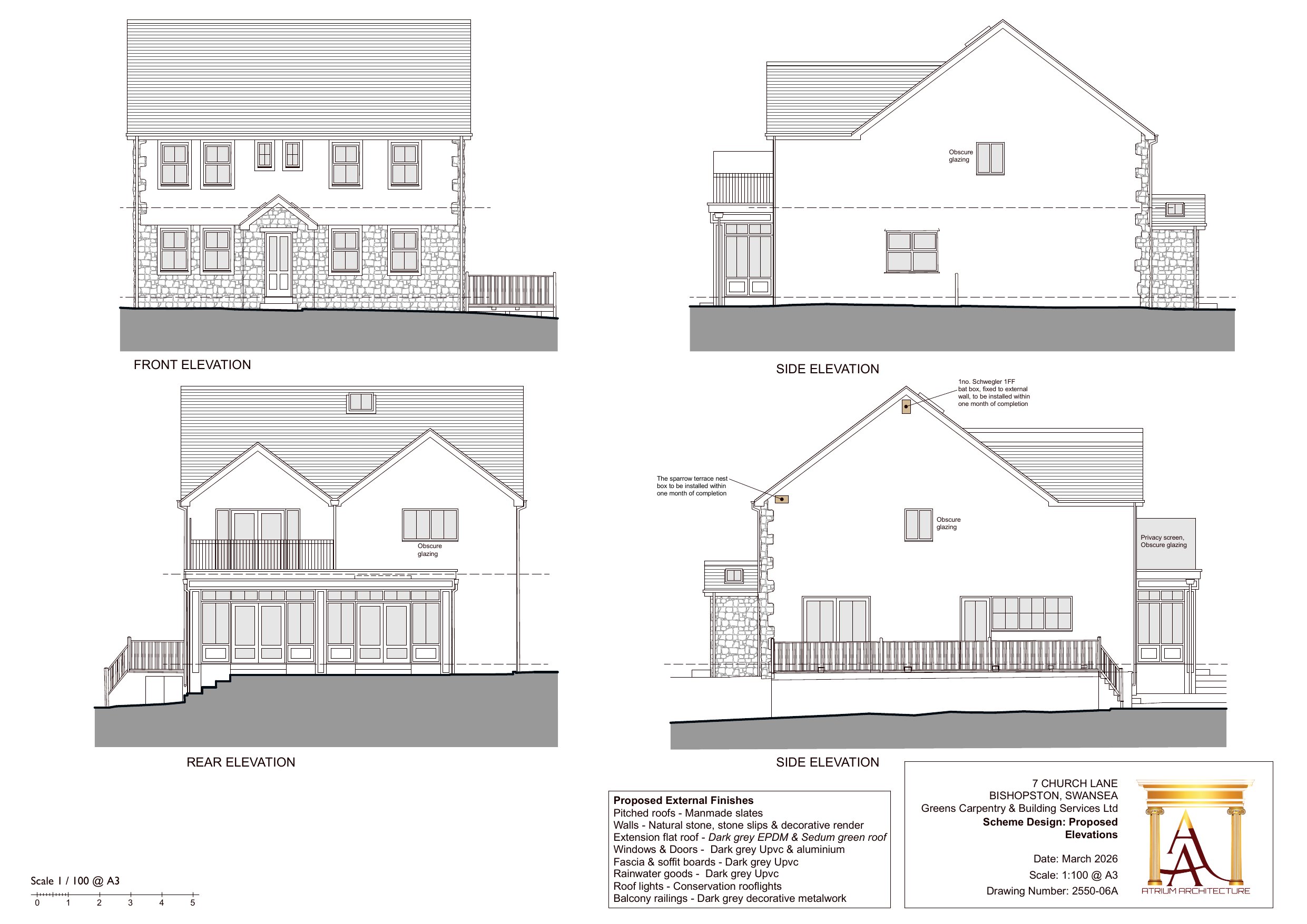
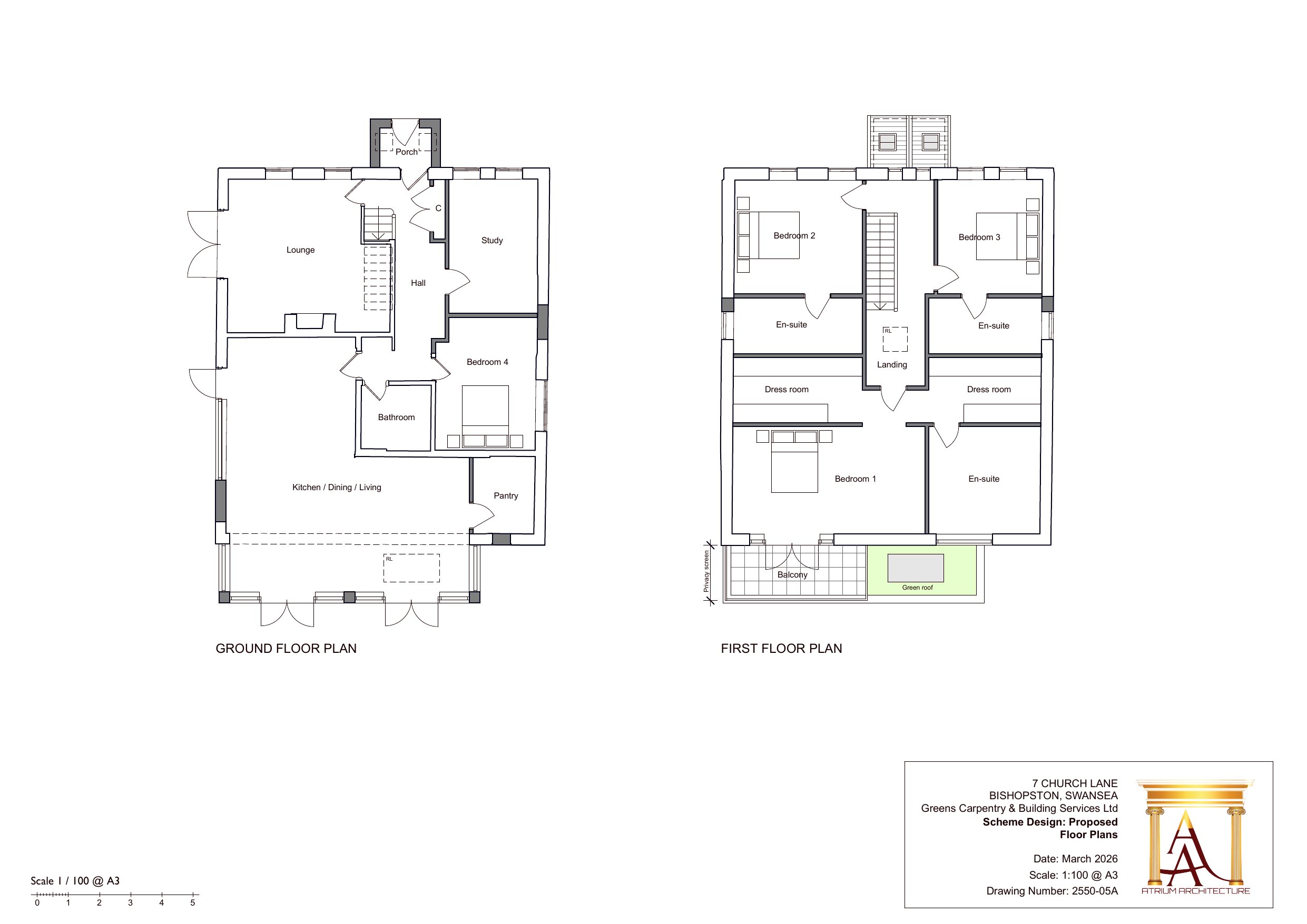
Increase in eaves and ridge height of bungalow including rear rooflights, first floor rear extension, single storey rear extension with balcony and privacy screen, front porch and fenestration alterations.

Documents

Dogfen Gyfredol - Current Document
Archived · Original link
Dogfen Gyfredol - Current Document
Archived · Original link
Dogfen Gyfredol - Current Document
Archived · Original link
Dogfen Gyfredol - Current Document
Archived · Original link
Dogfen Gyfredol - Current Document
Archived · Original link
Dogfen Gyfredol - Current Document
Archived · Original link
Dogfen Gyfredol - Current Document
Archived · Original link
Dogfen Gyfredol - Current Document
Archived · Original link
Dogfen Gyfredol - Current Document
Archived · Original link
Dogfen Gyfredol - Current Document
Archived · Original link
Dogfen Gyfredol - Current Document
Archived · Original link

Have your say

Your comment matters. Councils must consider every representation that raises material planning considerations.

Write a comment