← Swindon Borough Council

Status

Application Pending Decision New housing
Received
28 Aug 2025
New homes
1

Full proposal

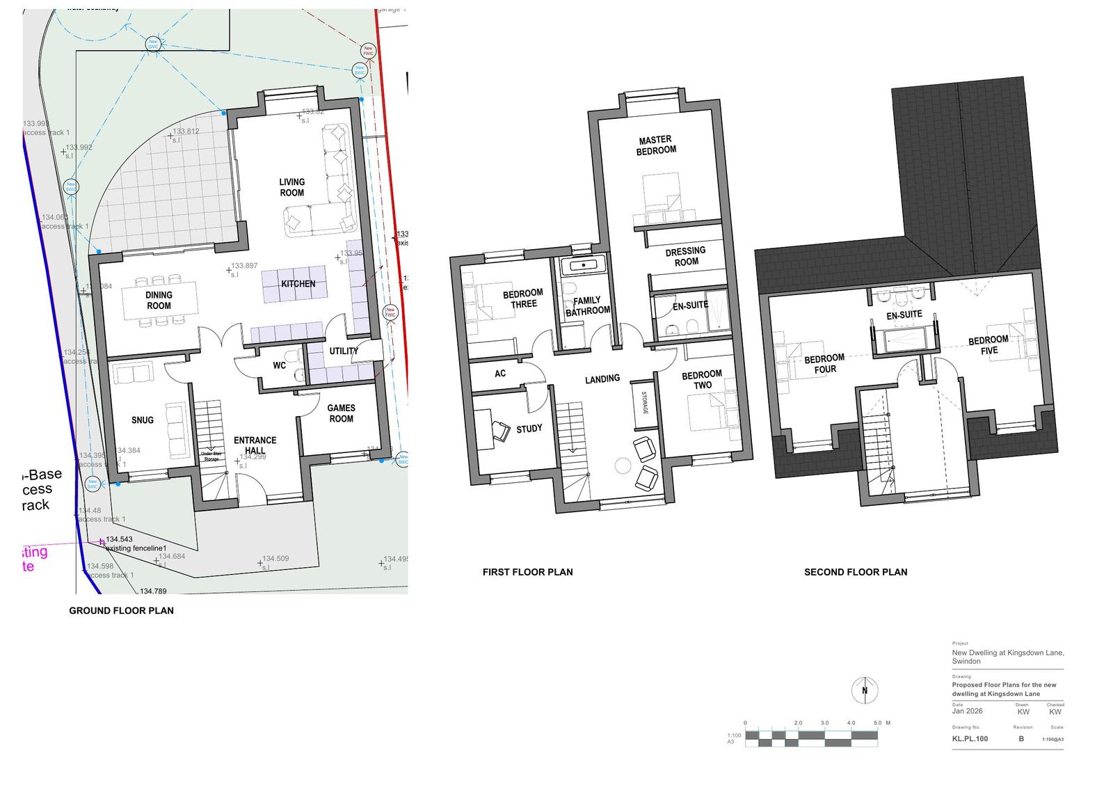
Erection of 1 no. self build dwelling with associated external works including new driveway off the existing access, erection of garage with home office accommodation.

Documents

3D IMAGES
Drawing
Not yet archived · Original link
APPLICATION FORM
Application Form
Not yet archived · Original link
ARCHAEOLOGY
Consultee Comment
Not yet archived · Original link
BLUNSDON PARISH COUNCIL
Consultee Comment
Not yet archived · Original link
BLUNSDON PARISH COUNCIL
Consultee Comment
Not yet archived · Original link
CIL FORM
Supporting Documents
Not yet archived · Original link
DESIGN AND ACCESS STATEMENT
Supporting Documents
Not yet archived · Original link
ECOLOGIST COMMENTS
Consultee Comment
Not yet archived · Original link
ECOLOGY
Consultee Comment
Not yet archived · Original link
ECOLOGY
Consultee Comment
Not yet archived · Original link
ENVIRONMENTAL HEALTH OFFICER COMMENTS
Consultee Comment
Not yet archived · Original link
HIGHWAYS COMMENTS
Consultee Comment
Not yet archived · Original link
HIGHWAYS COMMENTS
Consultee Comment
Not yet archived · Original link
PLANNING STATEMENT
Supporting Documents
Not yet archived · Original link
PRELIMINARY ECOLOGICAL APPRAISAL
Supporting Documents
Not yet archived · Original link
PROPOSED AREA FOR CIL
Drawing
Not yet archived · Original link
PROPOSED AREAS FOR CIL
Revised Drawing
Not yet archived · Original link
PROPOSED BLOCK PLAN
Revised Drawing
Not yet archived · Original link
PROPOSED ELEVATIONS
Drawing
Not yet archived · Original link
PROPOSED ELEVATIONS
Revised Drawing
Not yet archived · Original link
Revised Drawing
Archived · Original link
Drawing
Archived · Original link
PROPOSED GARAGE
Revised Drawing
Not yet archived · Original link
PROPOSED GARAGE AREAS FOR CIL
Drawing
Not yet archived · Original link
PROPOSED GARAGE AREAS OF CIL
Revised Drawing
Not yet archived · Original link
PROPOSED GARAGE PLANS
Drawing
Not yet archived · Original link
Drawing
Archived · Original link
Revised Drawing
Archived · Original link
PROPOSED SITE SECTION A
Revised Drawing
Not yet archived · Original link
PROPOSED STREET SCENE
Revised Drawing
Not yet archived · Original link
SITE LEVELS
Drawing
Not yet archived · Original link
Drawing
Archived · Original link
SITE SECTIONS B AND C
Drawing
Not yet archived · Original link
TOPOGRAPHICAL SURVEY
Drawing
Not yet archived · Original link

Have your say

Your comment matters. Councils must consider every representation that raises material planning considerations.

Write a comment