← Swindon Borough Council

Status

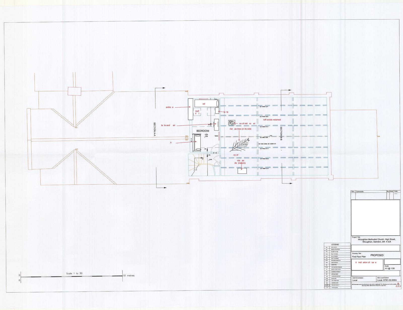
Application Pending Decision Change of use
Received
19 Dec 2025
New homes
1

Full proposal

Change of use of existing chapel from Use Class F1 (learning and non-residential institutions) to Use Class C3 (Residential) to provide 1no. dwelling and associated works.

Have your say

Your comment matters. Councils must consider every representation that raises material planning considerations.

Write a comment