← Back to Swindon Borough Council
Application
S/25/1665
Swindon Borough Council · IDOX
Status
Application Pending Decision
Received
Last month
New dwellings
n/a
What you can do
Take Action
Make your voice heard. Authorities need to hear from people who support new homes.
Summary
Erection of 16 new dwellings (10 flats and 6 houses) with associated landscaping.
Full Proposal
Erection of 16 new dwellings consisting of 10 flats and 6 houses, with associated landscaping.
Detail pages
- View live detail on council site
- No archived detail page available.
Documents
ADVER LIST 16.01.25
BackGround Papers
Not downloaded
· Council link
APPLICATION FORM
Application Form
Not downloaded
· Council link
BASELINE ONSITE HABITAT MAP/PLAN (PRE-DEVELOPMENT)
Correspondence
Not downloaded
· Council link
BIODIVERSITY CREDITS DETAILS
Supporting Documents
Not downloaded
· Council link
BIODIVERSITY GAIN PLAN
Supporting Documents
Not downloaded
· Council link
BIODIVERSITY GAIN PLAN
Supporting Documents
Not downloaded
· Council link
BIODIVERSITY METRIC CALCULATION TOOL
Supporting Documents
Not downloaded
· Council link
BIODIVERSITY METRIC CALCULATION TOOL
Supporting Documents
Not downloaded
· Council link
CIL FORM
Supporting Documents
Not downloaded
· Council link
CIL FORM - ADDITIONAL INFORMATION
Supporting Documents
Not downloaded
· Council link
CONCEPT PLAN
Supporting Documents
Not downloaded
· Council link
DESIGN AND ACCESS STATEMENT
Supporting Documents
Not downloaded
· Council link
DETAILED PLANTING PLAN
Drawing
Not downloaded
· Council link
DETAILS ABOUT MUGA FROM SBC ARCHITECTURE AND CONSTRUCTION MANAGEMENT
Correspondence
Not downloaded
· Council link
ECOLOGY
Consultee Comment
Not downloaded
· Council link
ENERGY STATEMENT
Supporting Documents
Not downloaded
· Council link
EXISTING SITE LAYOUT
Drawing
Not downloaded
· Council link
FLAT BLOCK - ELEVATIONS
Revised Drawing
Not downloaded
· Council link
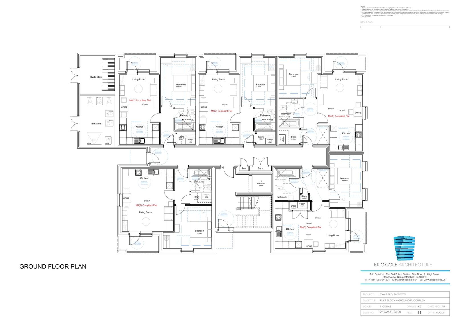
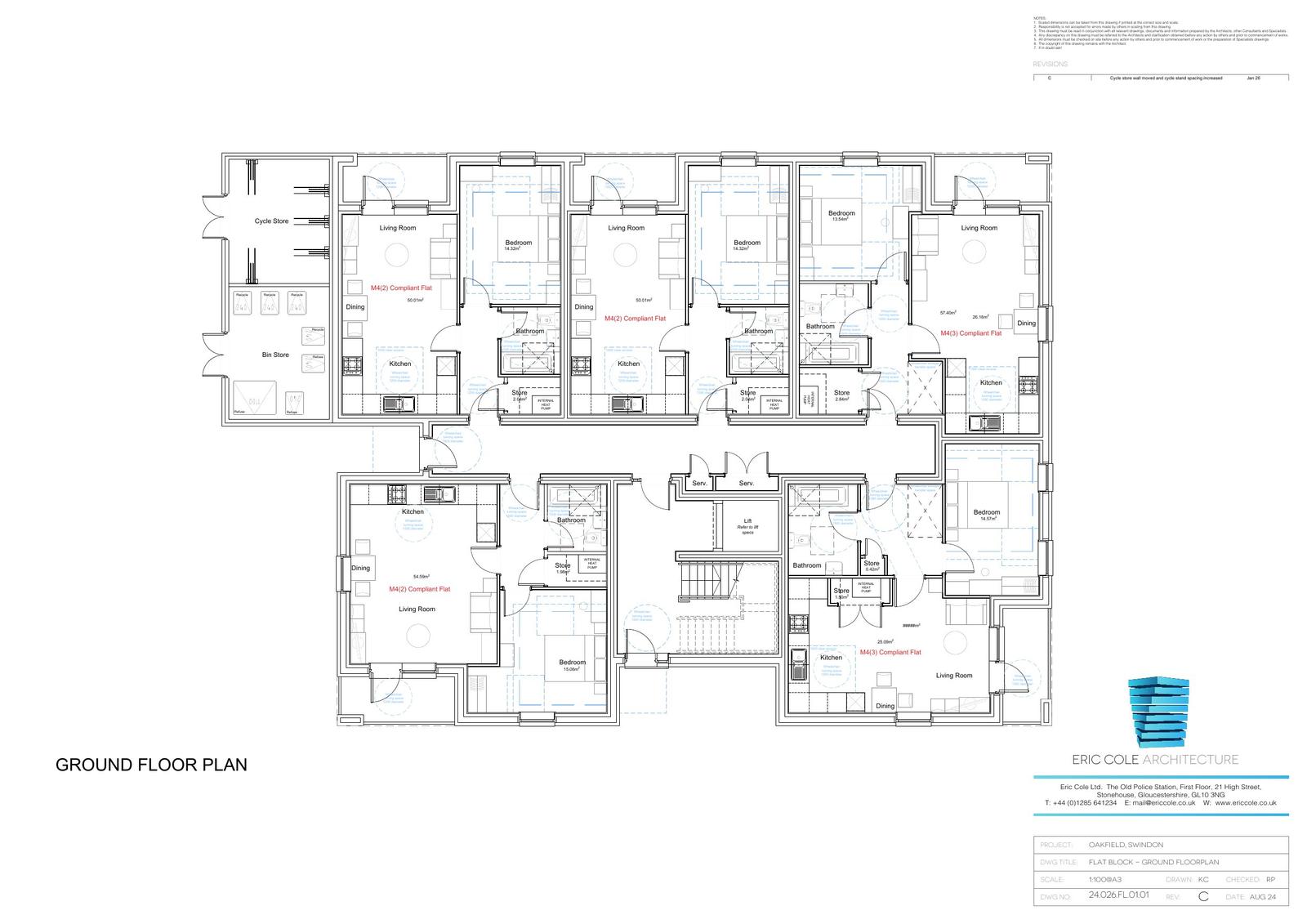
FLAT BLOCK - GROUND FLOOR PLAN
Drawing
Not downloaded
· Council link
FLOOR PLAN/ELEVATIONS
Drawing
Not downloaded
· Council link
HIGHWAYS
Consultee Comment
Not downloaded
· Council link
NORTH WILTSHIRE SWIFTS, BEAUMONT HAMEL, WYNDHAM ROAD, SALISBURY
Public Comment
Not downloaded
· Council link
PARKING SPACE COMPLIANCE LAYOUT
Revised Drawing
Not downloaded
· Council link
PREMLINARY ECOLOGICAL APPRAISAL
Supporting Documents
Not downloaded
· Council link
SBC HOUSING
Consultee Comment
Not downloaded
· Council link
SITE LAYOUT
Drawing
Not downloaded
· Council link
SITE LAYOUT - CAR CHARGING POINTS PLAN
Drawing
Not downloaded
· Council link
SITE LAYOUT - CYCLE STORAGE
Drawing
Not downloaded
· Council link
SITE LAYOUT - MATERIALS PLAN
Drawing
Not downloaded
· Council link
SITE LAYOUT - STOREY HEIGHTS
Drawing
Not downloaded
· Council link
SITE LOCATION PLAN
Drawing
Archived copy
· Council link
SPORT ENGLAND
Consultee Comment
Not downloaded
· Council link
STREET SCENE/CONTEXT PLAN - PROPOSED
Drawing
Not downloaded
· Council link
SURFACE WATER DRAINAGE STRATEGY
Supporting Documents
Not downloaded
· Council link
SWEPT PATH ANALYSIS - ESTATE CAR
Drawing
Not downloaded
· Council link
SWEPT PATH ANALYSIS - REFUSE VEHICLE
Drawing
Not downloaded
· Council link
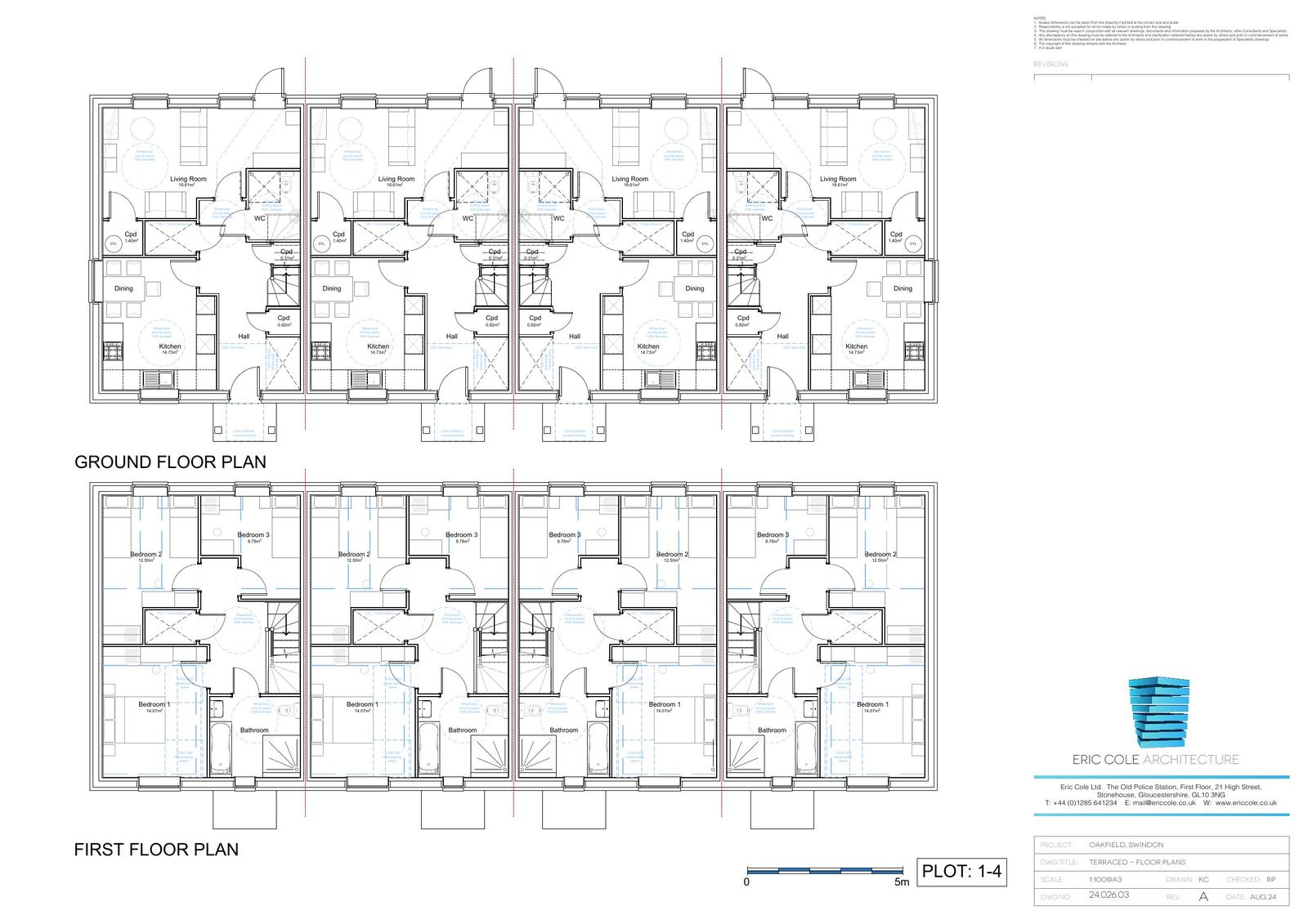
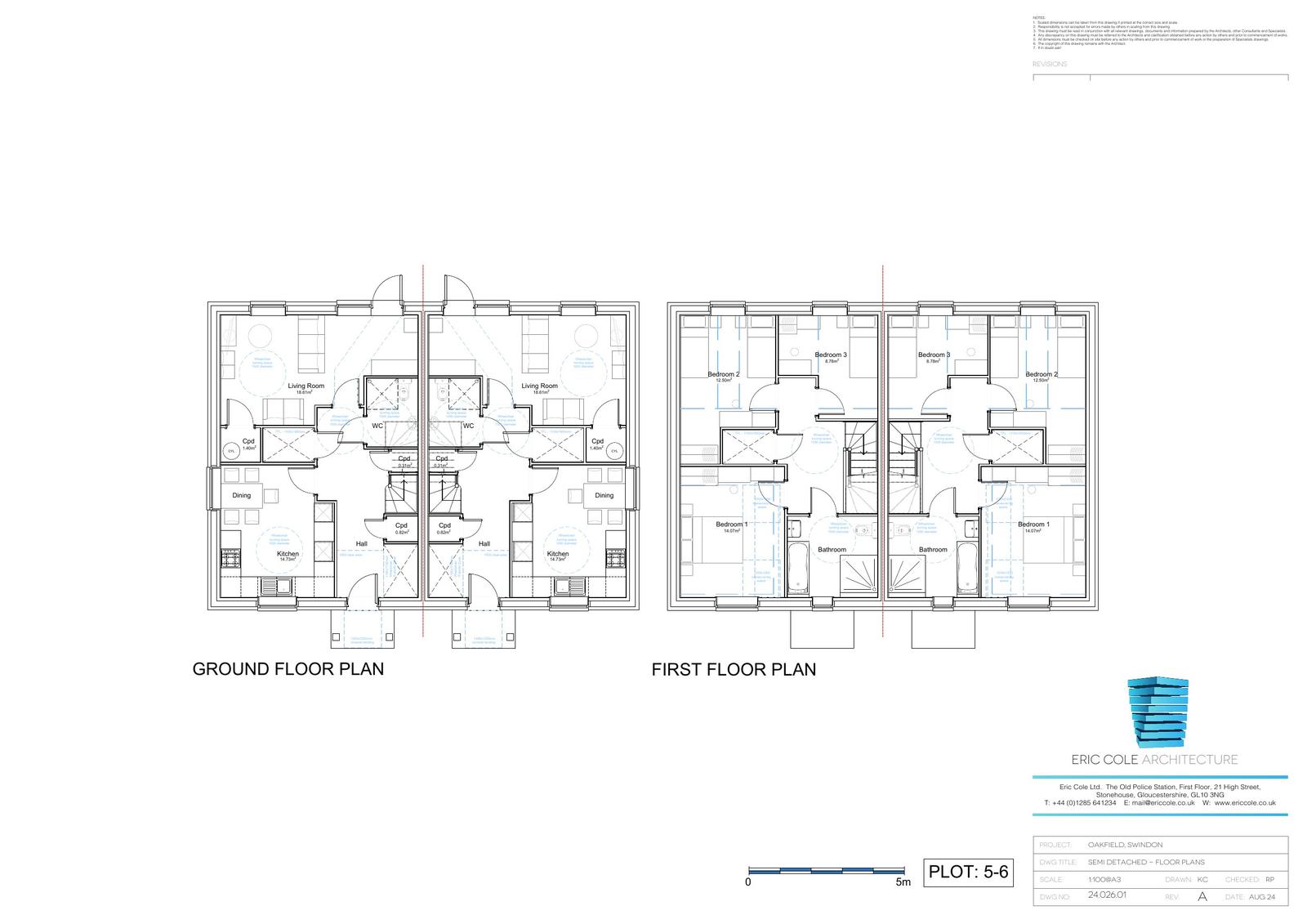
TERRACE - FLOOR PLANS AND ELEVATIONS
Drawing
Not downloaded
· Council link