← Swindon Borough Council

Status

Application Pending Decision Change of use
Received
24 Dec 2025
New homes
0

Full proposal

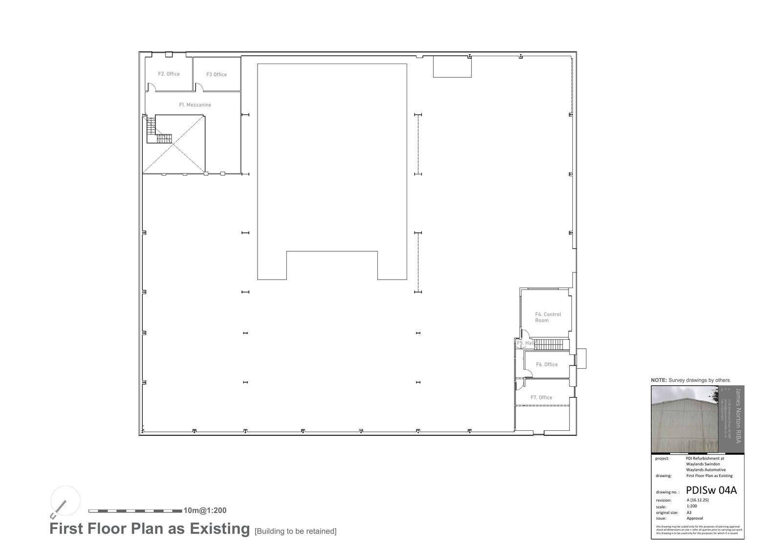
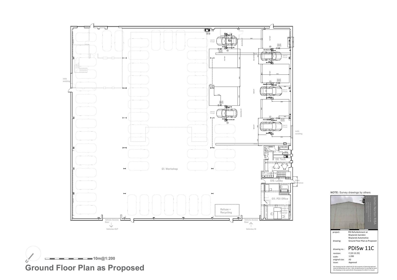
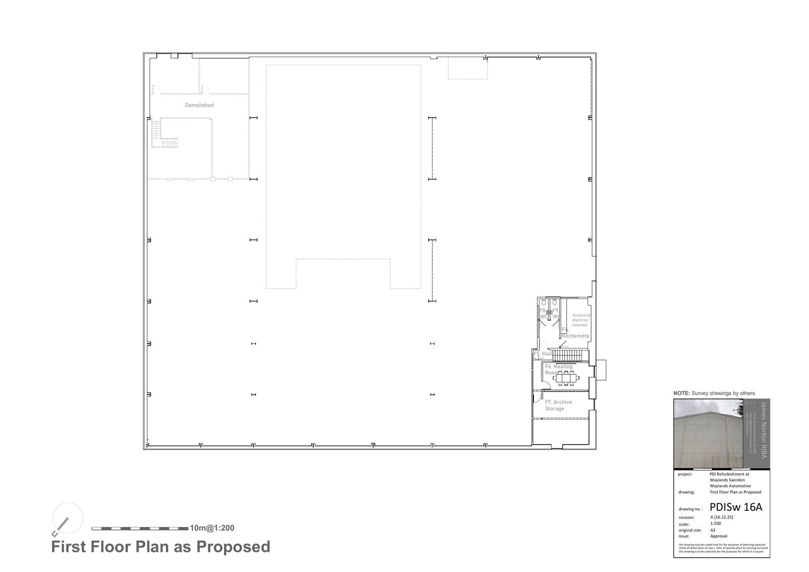
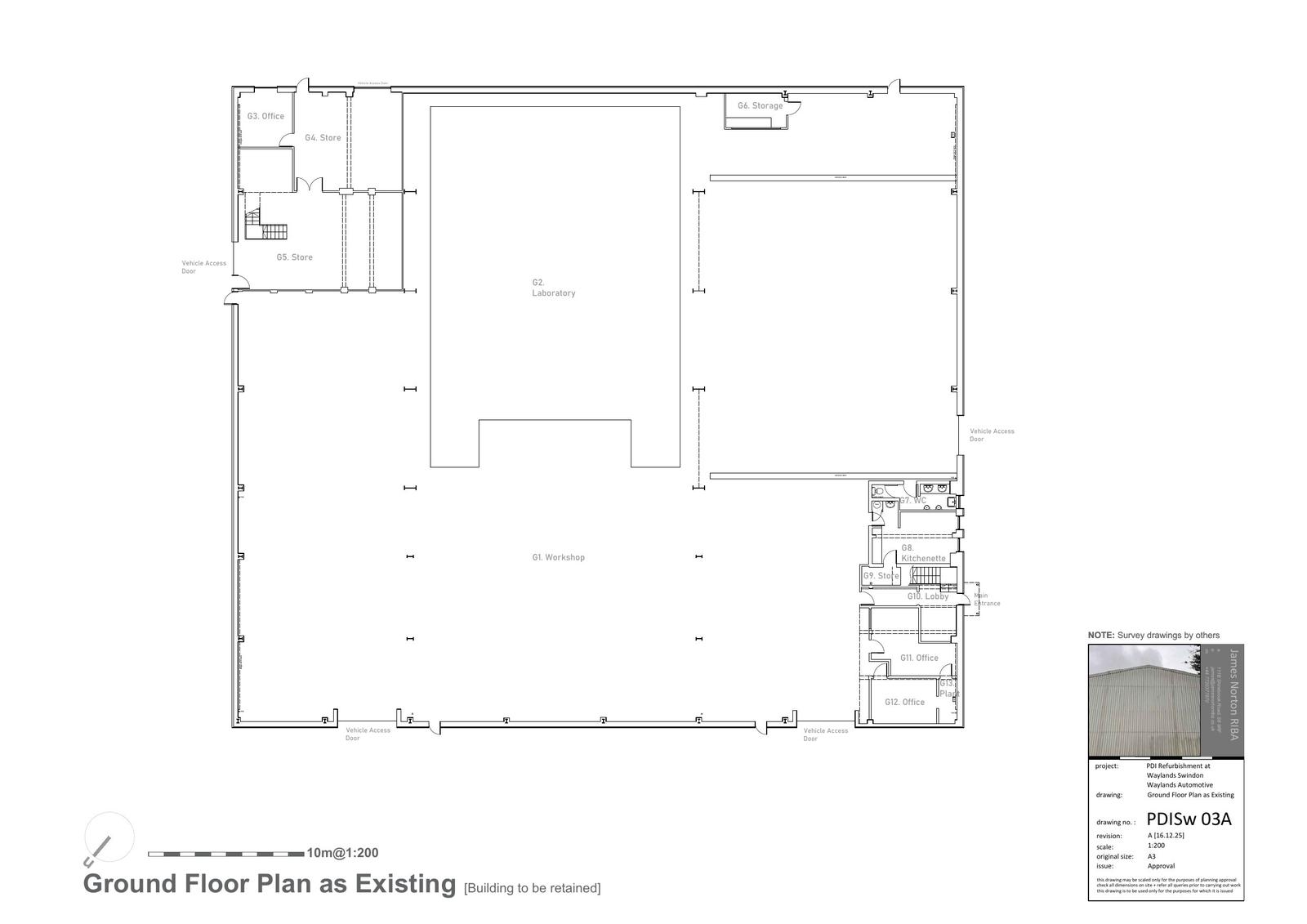
Change of use to vehicle pre-delivery inspection centre (Sui Generis), creation of additional car parking and demolition of 1 no. building.

Documents

Revised Drawing
Archived · Original link
Revised Drawing
Archived · Original link
Revised Drawing
Archived · Original link
Supporting Documents
Archived · Original link
Drawing
Archived · Original link
Drawing
Archived · Original link
Correspondence
Archived · Original link
Drawing
Archived · Original link
Drawing
Archived · Original link

Have your say

Your comment matters. Councils must consider every representation that raises material planning considerations.

Write a comment