← Swindon Borough Council

Status

Application Pending Decision Demolition
Received
28 days ago
New homes
0

Full proposal

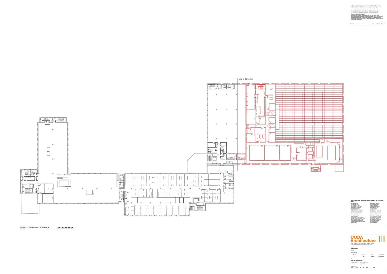
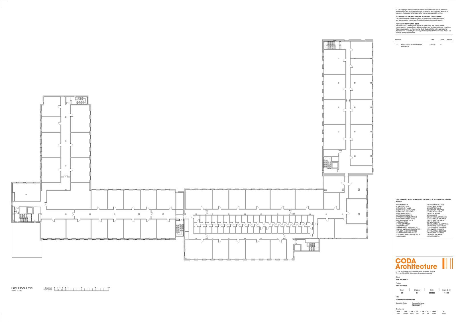
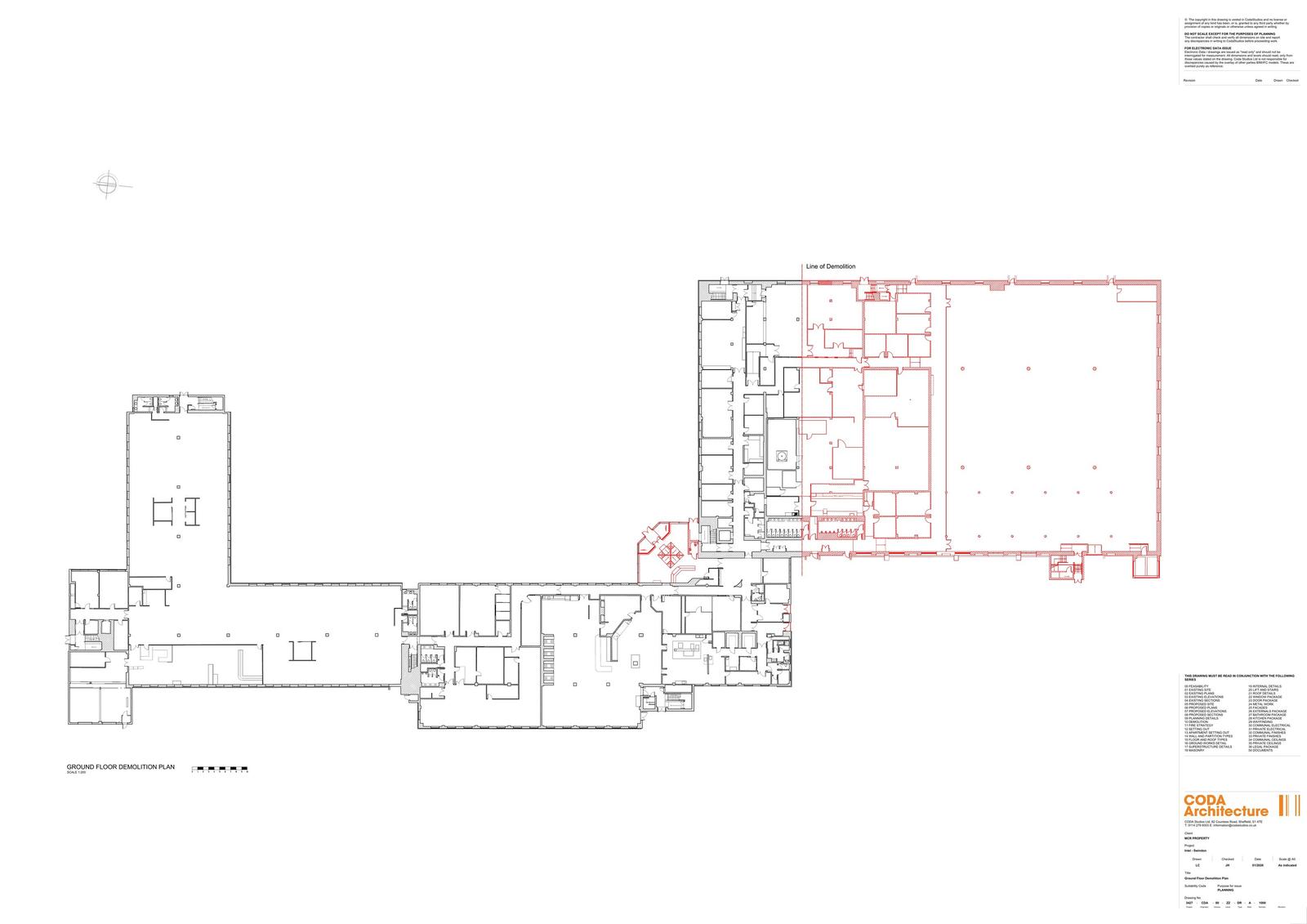
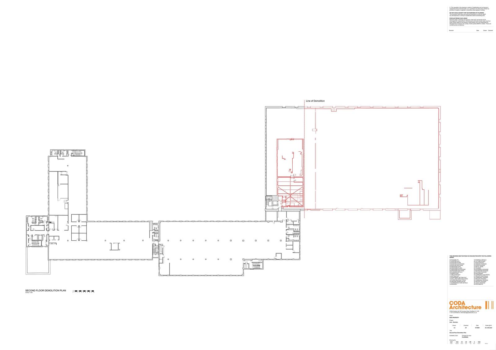
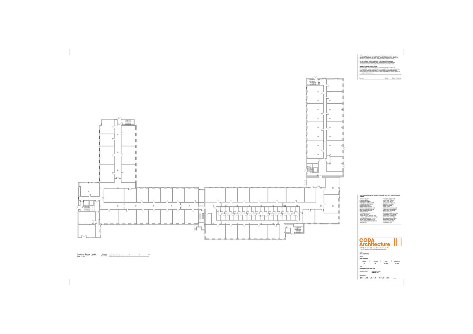
Demolition of existing warehouse and construction of new facade to retained building.

Documents

Application Form
Archived · Original link
Supporting Documents
Archived · Original link
Supporting Documents
Archived · Original link
Consultee Comment
Archived · Original link
Drawing
Archived · Original link
Supporting Documents
Archived · Original link
Drawing
Archived · Original link
Supporting Documents
Archived · Original link

Have your say

Your comment matters. Councils must consider every representation that raises material planning considerations.

Write a comment