← Swindon Borough Council

Status

Application Pending Decision New housing
Received
28 days ago
New homes
1

Full proposal

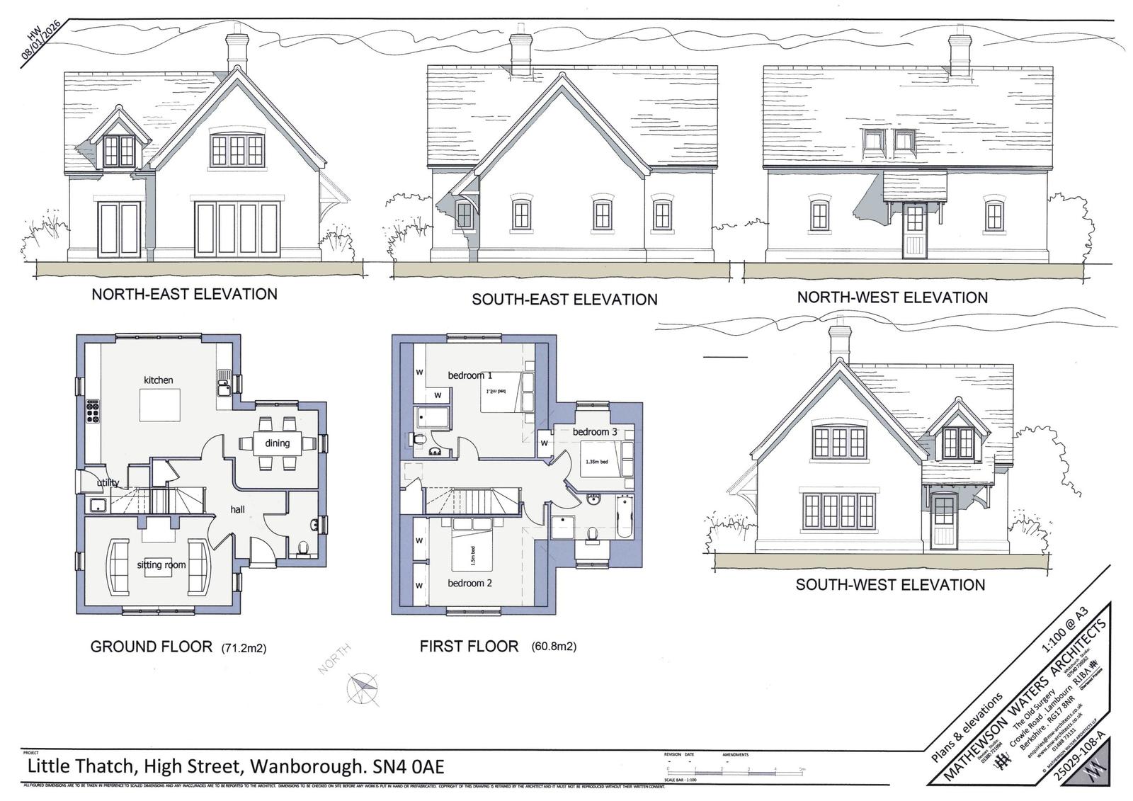
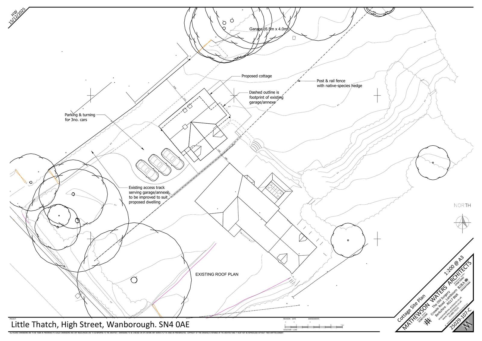
Erection of a new self-build dwelling to replace the existing detached annexe and garage to Little Thatch.

Have your say

Your comment matters. Councils must consider every representation that raises material planning considerations.

Write a comment