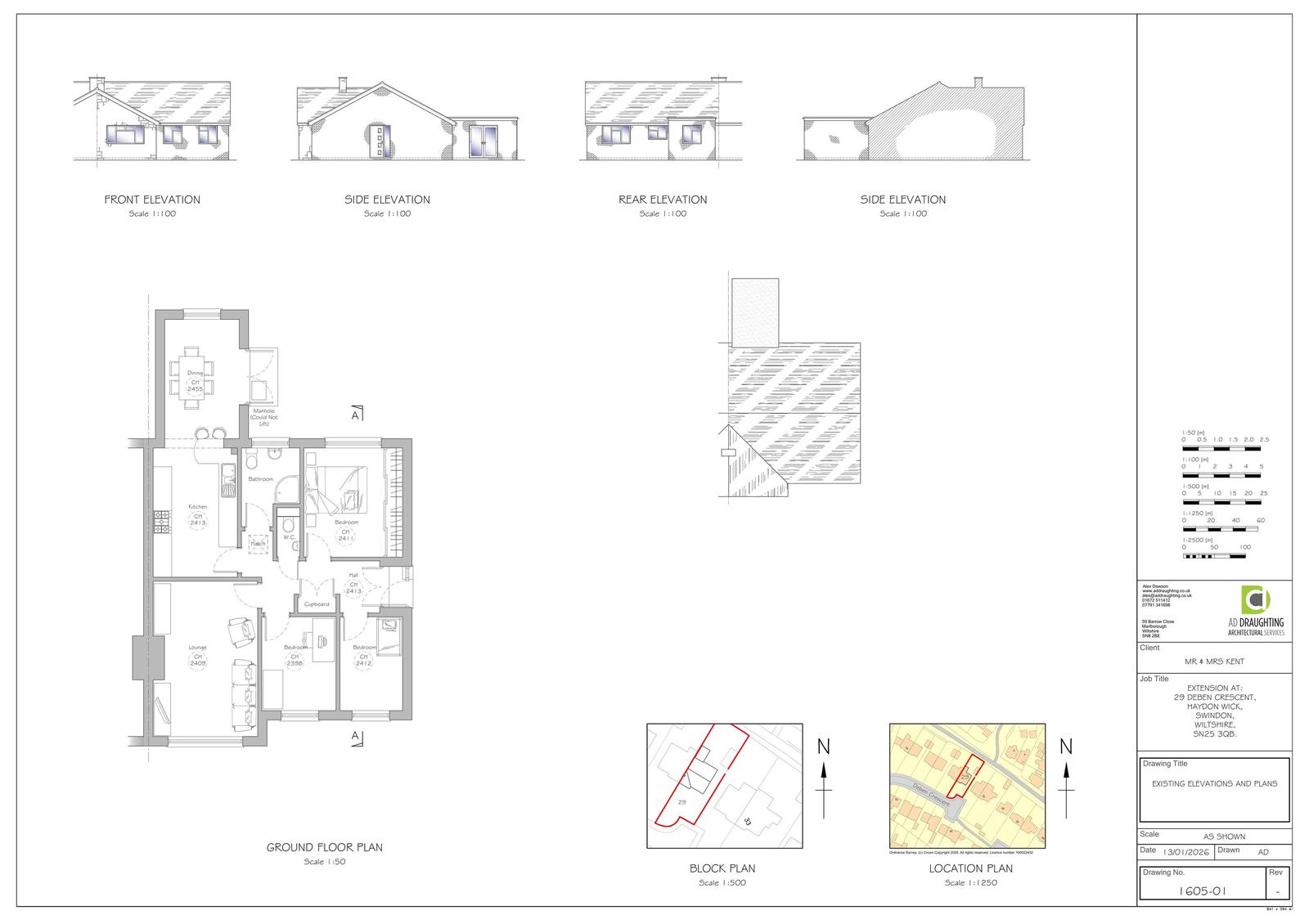
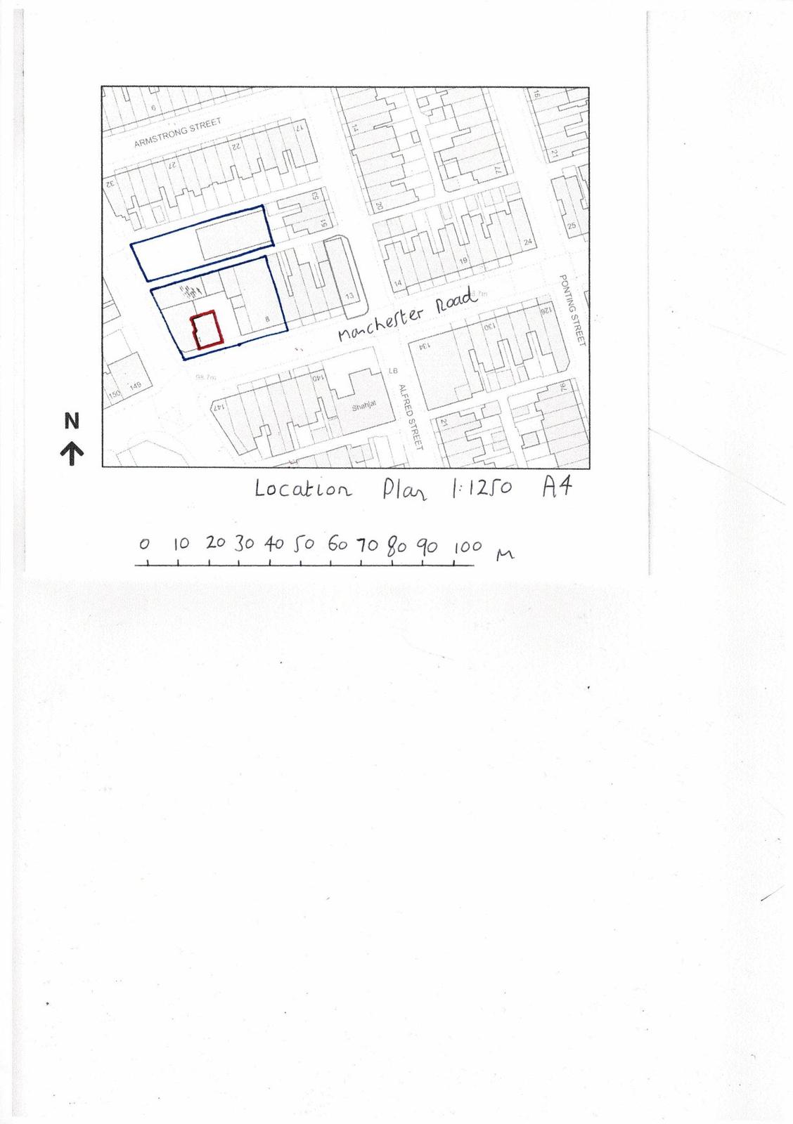
← Swindon Borough Council

Status

Application Pending Decision House extension
Received
21 Jan 2026
New homes
0

Full proposal

Erection of a single storey rear extension and rear dormer window (retrospective).

Documents

Revised Drawing
Archived · Original link
Revised Drawing
Archived · Original link

Have your say

Your comment matters. Councils must consider every representation that raises material planning considerations.

Write a comment