← Swindon Borough Council

Status

Application Pending Decision House extension
Received
Last month
New homes
0

Full proposal

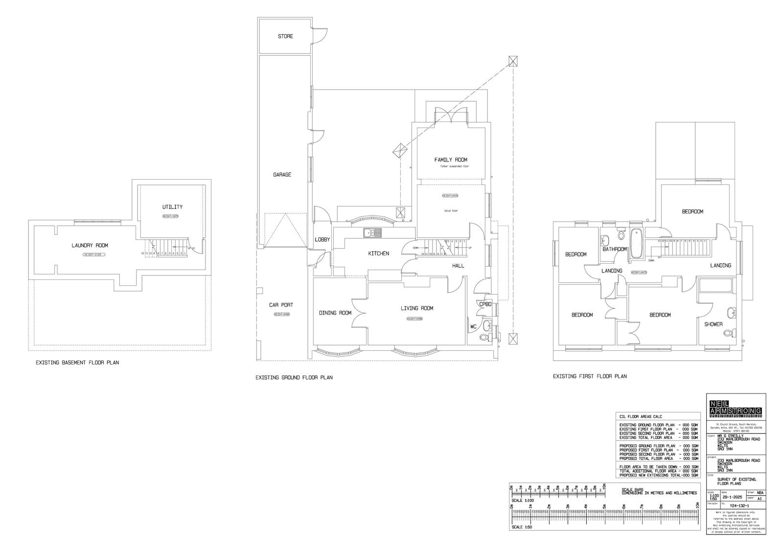
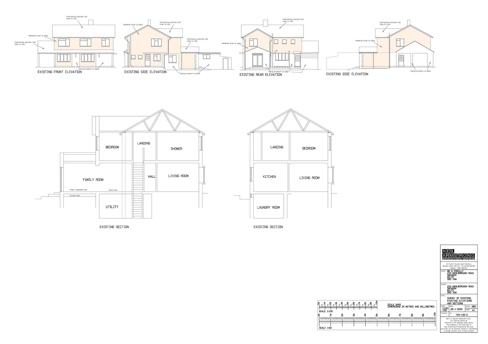
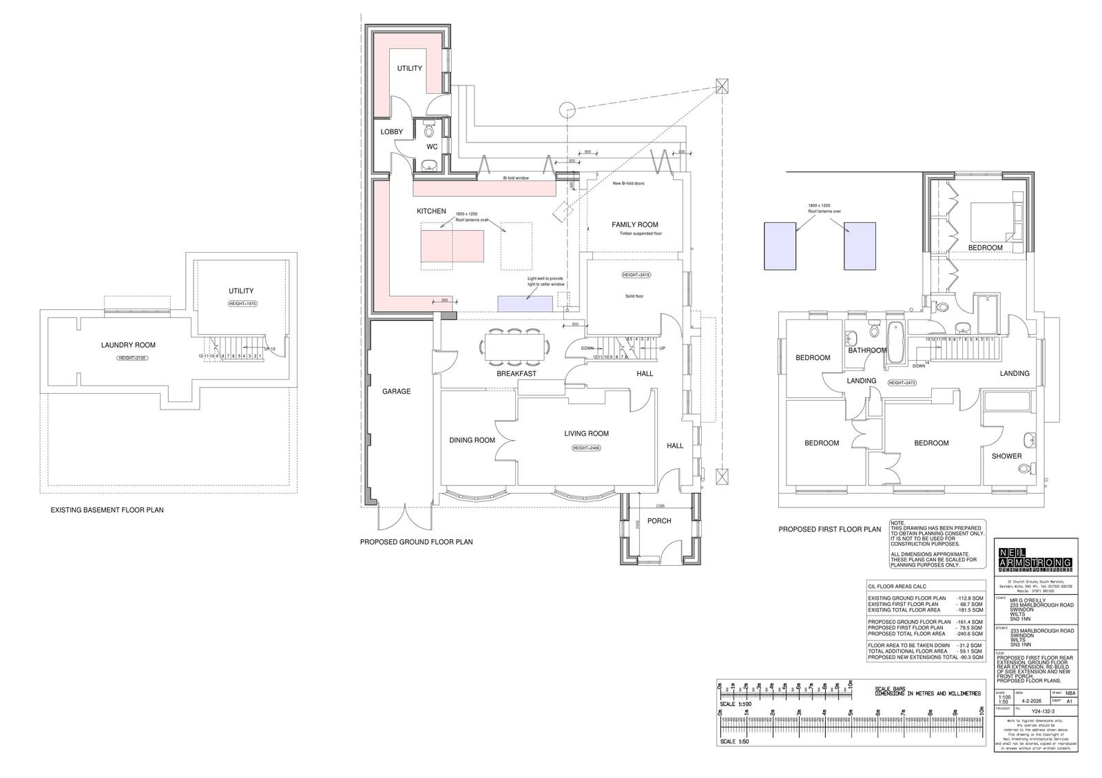
Erection of Proposed first floor rear extension, Ground floor rear extension, Re-build of side extension and new front porch.

Have your say

Your comment matters. Councils must consider every representation that raises material planning considerations.

Write a comment