← Swindon Borough Council

Status

Application Pending Decision House extension
Received
Last month
New homes
0

Full proposal

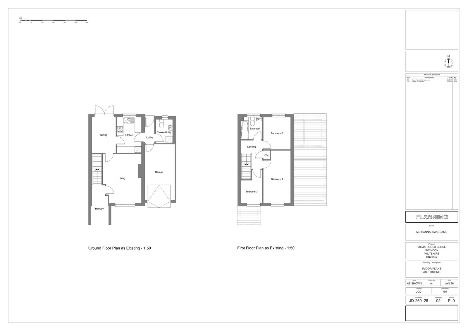
Erection of Single Storey Rear Extension and Second Storey Extension over Garage.

Documents

Drawing
Archived · Original link
Drawing
Archived · Original link
Drawing
Archived · Original link
Drawing
Archived · Original link
Drawing
Archived · Original link

Have your say

Your comment matters. Councils must consider every representation that raises material planning considerations.

Write a comment