← Teignbridge District Council
25/02119/HOU
Teignbridge District Council
Status
Pending Consideration
House extension
Received
19 Dec 2025
New homes
0
Full proposal
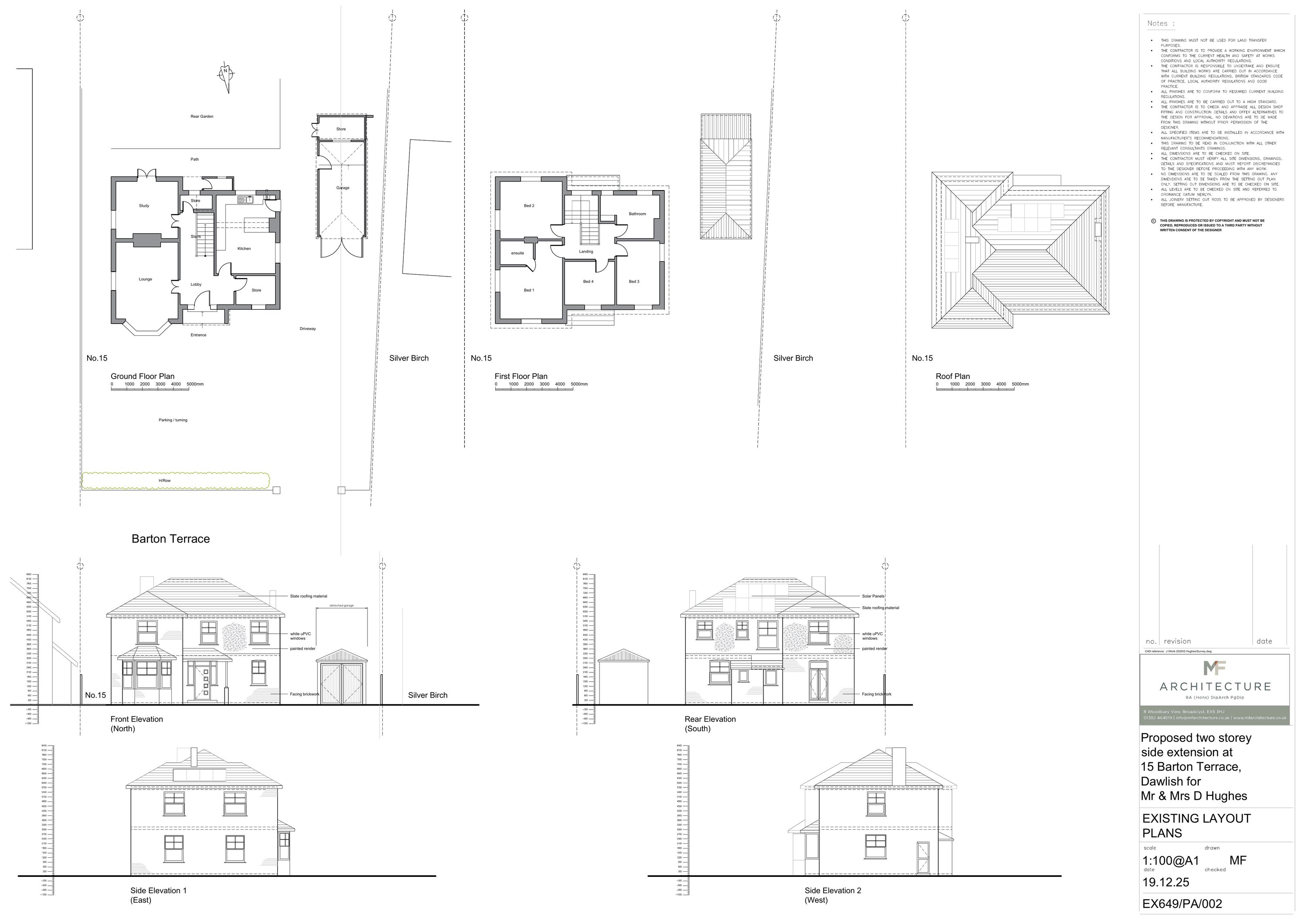
Demolition of detached garage building and erection of two storey side extension
Documents
Have your say
Your comment matters. Councils must consider every representation that raises material planning considerations.