← Back to Tendring District Council
Application
25/01498/FUL
Tendring District Council · IDOX
Status
Awaiting decision
Received
06 Oct 2025
New dwellings
n/a
What you can do
Take Action
Make your voice heard. Authorities need to hear from people who support new homes.
Summary
Erection of 60 single‑storey dwellings for over‑55s and disabled occupants with infrastructure and open space.
Full Proposal
Planning Application - Erection of 60 single storey dwellings for those aged 55 and those with or supporting someone with a disability, with associated site infrastructure and public open space.
Reasonable Objection Grounds
These are planning grounds where objections may be reasonable for this application:
Traffic
Privacy
Light
Scale
Character
Likely Support Reasons
These are potential reasons to support this application based on the proposal:
Housing Need
Brownfield
Density
Detail pages
- View live detail on council site
- No archived detail page available.
Documents
Acknowledgement letter
Acknowledgement Letter
Not downloaded
· Council link
Additional parish comment - objection - rec'd 19.11.25
Public Comment
Not downloaded
· Council link
Archived copy
· Council link
Amended 1b and 2b terrace v1 - proposed elevations - rec'd 16.10.2025
Drawing
Not downloaded
· Council link
Amended 1b and 2b terrace v2 floor elevations - rec'd 16.10.2025
Drawing
Not downloaded
· Council link
Archived copy
· Council link
Archived copy
· Council link
Amended 2b semi detached v2 floor plans and elevations - rec'd 16.10.2025
Drawing
Not downloaded
· Council link
Amended 3b semi detached v2 floor plans and elevations - rec'd 16.10.2025
Drawing
Not downloaded
· Council link
Archived copy
· Council link
Archived copy
· Council link
Amended azalea v2 floor plans and elevations - rec'd 16.10.2025
Drawing
Not downloaded
· Council link
Archived copy
· Council link
Amended camelia - proposed elevations - rec'd 16.10.25
Drawing
Not downloaded
· Council link
Archived copy
· Council link
Archived copy
· Council link
Amended daisy v2 floor plans and elevations - rec'd 16.10.2025
Drawing
Not downloaded
· Council link
Amended double garage floor plans and elevations - rec'd 16.10.2025
Drawing
Not downloaded
· Council link
Archived copy
· Council link
Archived copy
· Council link
Amended jasmine v3 floor plans and elevations - rec'd 16.10.2025
Drawing
Not downloaded
· Council link
Amended jasmine v4 floor plans and elevations - rec'd 16.10.2025
Drawing
Not downloaded
· Council link
Archived copy
· Council link
Archived copy
· Council link
Archived copy
· Council link
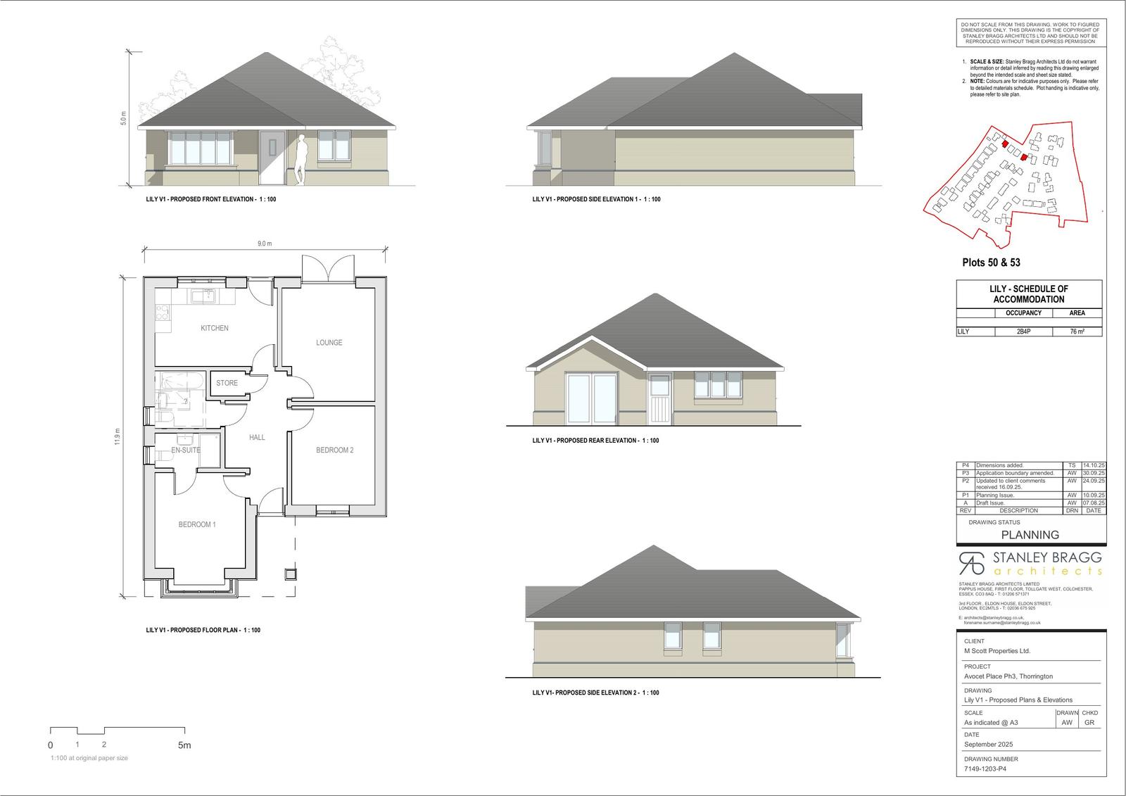
Amended lily v2 floor plans and elevations - rec'd 16.10.2025
Drawing
Not downloaded
· Council link
Archived copy
· Council link
Amended magnolia v2 floor plans and elevations - rec'd 16.10.2025
Drawing
Not downloaded
· Council link
Amended single garage v1 floor plans and elevations - rec'd 16.10.2025
Drawing
Not downloaded
· Council link
Amended single garage v2 floor plans and elevations - rec'd 16.10.2025
Drawing
Not downloaded
· Council link
Amended twin garage v1 floor plans and elevations - rec'd 16.10.2025
Drawing
Not downloaded
· Council link
Amended twin garage v2 floor plans and elevations - rec'd 16.10.2025
Drawing
Not downloaded
· Council link
Archived copy
· Council link
Archived copy
· Council link
Archived copy
· Council link
Application form - rec'd 06/10/2025
Application Form
Not downloaded
· Council link
Arboricultural survey - rec'd 06/10/2025
Report
Not downloaded
· Council link
Biodiversity net gain planning stage report - rec'd 06/10/2025
Report
Not downloaded
· Council link
Bng metric - rec'd 16.10.2025
Report
Not downloaded
· Council link
Breeding bird survey - rec'd 06/10/2025
Report
Not downloaded
· Council link
Consultee response - anglian water - rec'd 11.11.2025
Consultee Comment
Not downloaded
· Council link
Consultee response - anglian water services - rec'd 19.11.25
Consultee Comment
Not downloaded
· Council link
Consultee response - ecc archaeology - rec'd 11.12.25
Consultee Comment
Not downloaded
· Council link
Consultee response - ecc highways dept - rec'd 08.12.25
Consultee Comment
Not downloaded
· Council link
Consultee response - ecc highways dept - rec'd 22.12.25
Consultee Comment
Not downloaded
· Council link
Consultee response - ecc planner minerals - rec'd 11.11.2025
Consultee Comment
Not downloaded
· Council link
Consultee response - ecc suds - rec'd 13.11.25
Consultee Comment
Not downloaded
· Council link
Consultee response - environmental protection - rec'd 21.10.2025
Consultee Comment
Not downloaded
· Council link
Consultee response - essex police - designing out crime - rec'd 29.10.25
Consultee Comment
Not downloaded
· Council link
Consultee response - essex police strategic planning - rec'd 20.10.25
Consultee Comment
Not downloaded
· Council link
Consultee response - natural england - rec'd 04.11.25
Consultee Comment
Not downloaded
· Council link
Consultee response - nhs - rec'd 27.11.2025
Consultee Comment
Not downloaded
· Council link
Consultee response - uu open spaces - rec'd 03.11.2025
Consultee Comment
Not downloaded
· Council link
Consulteecomment
Consultee Comment
Not downloaded
· Council link
Consulteecomment
Consultee Comment
Not downloaded
· Council link
Consulteecomment
Consultee Comment
Not downloaded
· Council link
Consulteecomment
Consultee Comment
Not downloaded
· Council link
Correspondence
Correspondence
Not downloaded
· Council link
Email to run bng metric - rec'd 16.10.2025
Other
Not downloaded
· Council link
Fee calculation - rec'd 06/10/2025
Other
Not downloaded
· Council link
Flood risk assessment - part 1 - main report and appendix a-d - rec'd 06/10/2025
Report
Not downloaded
· Council link
Flood risk assessment - part 2 - appendix e - rec'd 06/10/2025
Report
Not downloaded
· Council link
Flood risk assessment - part 3 - appendix f-l - rec'd 06/10/2025
Report
Not downloaded
· Council link
Habitat regulation assessment
Correspondence
Not downloaded
· Council link
Housing mix note - rec'd 06/10/2025
Report
Not downloaded
· Council link
Invalid correspondence
Invalid Correspondence
Not downloaded
· Council link
Landscape and visual appraisal - rec'd 06/10/2025
Report
Not downloaded
· Council link
Landscape design and access statement - rec'd 06/10/2025
Report
Not downloaded
· Council link
Objection comment - rec'd 23.10.2025
Objection Comment
Not downloaded
· Council link
Objection comment - rec'd 27.10.25
Objection Comment
Not downloaded
· Council link
Objection email - rec'd 05.11.25
Objection Comment
Not downloaded
· Council link
Objection email - rec'd 07.11.25
Objection Comment
Not downloaded
· Council link
Objection email - rec'd 10.11.25
Objection Comment
Not downloaded
· Council link
Objection email - rec'd 11.11.25
Objection Comment
Not downloaded
· Council link
Objection email - rec'd 11.11.25
Objection Comment
Not downloaded
· Council link
Objection email - rec'd 12.11.2025.
Objection Comment
Not downloaded
· Council link
Objection email - rec'd 30.10.25
Objection Comment
Not downloaded
· Council link
Observation comment - rec'd 13.11.2025.
Public Comment
Not downloaded
· Council link
Observation comment - rec'd 13.11.2025.
Public Comment
Not downloaded
· Council link
Phase 1 desk study - part 1 - main report and appendix 1-3.1 - rec'd 06/10/2025
Report
Not downloaded
· Council link
Phase 1 desk study - part 2 - appendix 3.2 - rec'd 06/10/2025
Report
Not downloaded
· Council link
Phase 1 desk study - part 3 - appendix 4-5 - rec'd 06/10/2025
Report
Not downloaded
· Council link
Phase 1 desk study - part 4 - appendix 6-8 - rec'd 06/10/2025
Report
Not downloaded
· Council link
Phase 2 - site investigation - rec'd 06/10/2025
Report
Not downloaded
· Council link
Planning design and access statement - rec'd 06/10/2025
Report
Not downloaded
· Council link
Preliminary ecological appraisal - rec'd 06/10/2025
Report
Not downloaded
· Council link
Proposed access and movement plan - rec'd 06/10/2025
Drawing
Not downloaded
· Council link
Proposed illustrative site layout - rec'd 06/10/2025
Drawing
Not downloaded
· Council link
Proposed materials plan - rec'd 06/10/2025
Drawing
Not downloaded
· Council link
Proposed parameter plan - rec'd 06/10/2025
Drawing
Not downloaded
· Council link
Proposed public and private amenity spaces plan - rec'd 06/10/2025
Drawing
Not downloaded
· Council link
Proposed refuse strategy plan - rec'd 06/10/2025
Drawing
Not downloaded
· Council link
Proposed street scenes - rec'd 06/10/2025
Drawing
Not downloaded
· Council link
Proposed vehicle and cycle parking plan - rec'd 06/10/2025
Drawing
Not downloaded
· Council link
Proposed visualisation 1 - rec'd 06/10/2025
Drawing
Not downloaded
· Council link
Proposed visualisation 2 - rec'd 06/10/2025
Drawing
Not downloaded
· Council link
Shadow habitats screening regulations assessment - rec'd 06/10/2025
Report
Not downloaded
· Council link
Archived copy
· Council link
Site notice
Site Notice
Not downloaded
· Council link
Support letter - rec'd 06.11.25
Support Comment
Not downloaded
· Council link
Support letter - rec'd 06.11.25
Support Comment
Not downloaded
· Council link
The statutory biodiversity metric - rec'd 06/10/2025
Report
Not downloaded
· Council link
Topographical survey - rec'd 06/10/2025
Drawing
Not downloaded
· Council link
Transport statement - rec'd 06/10/2025
Report
Not downloaded
· Council link