← Tendring District Council

Status

Awaiting decision Change of use
Received
12 Jan 2026
New homes
0

Full proposal

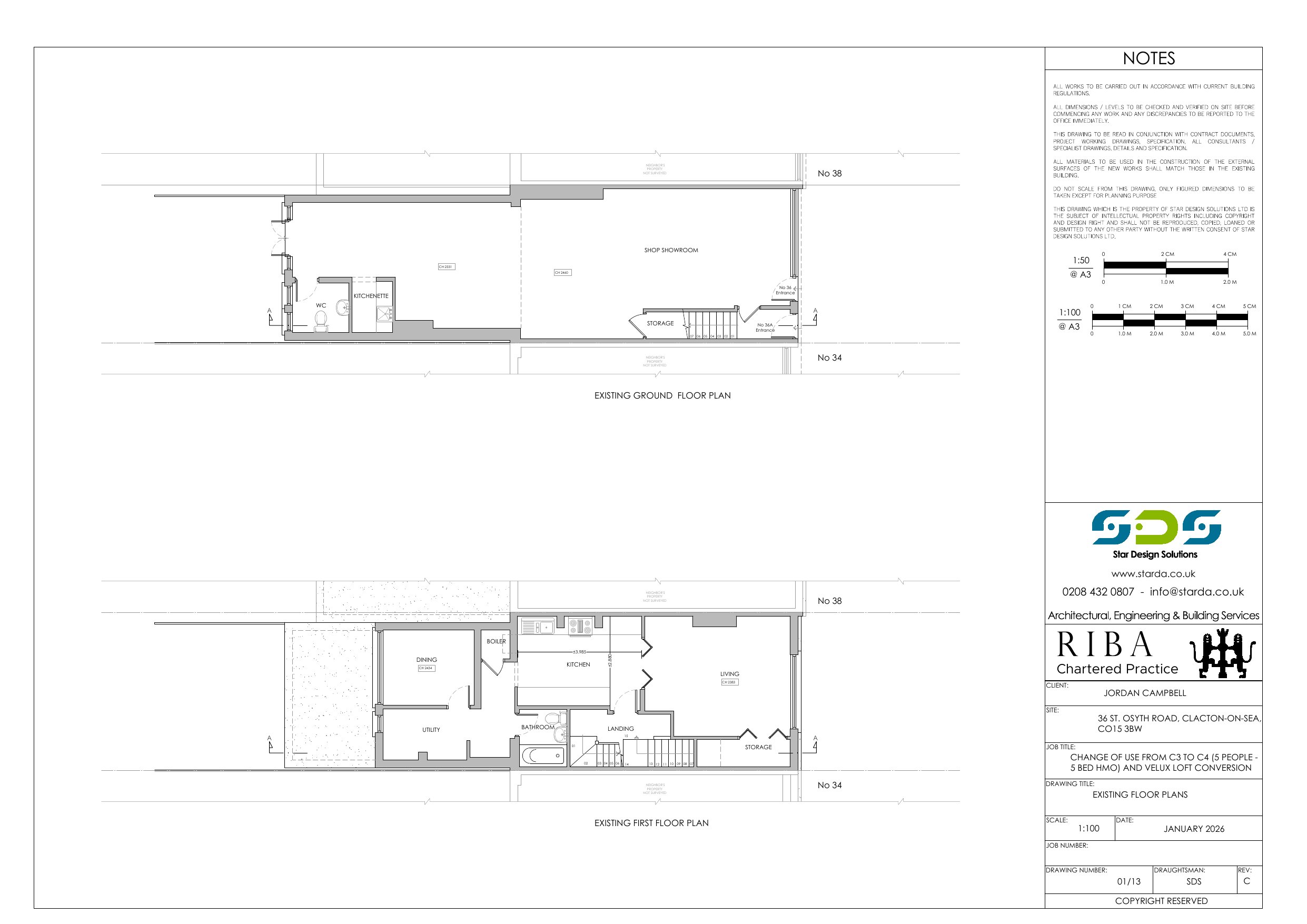
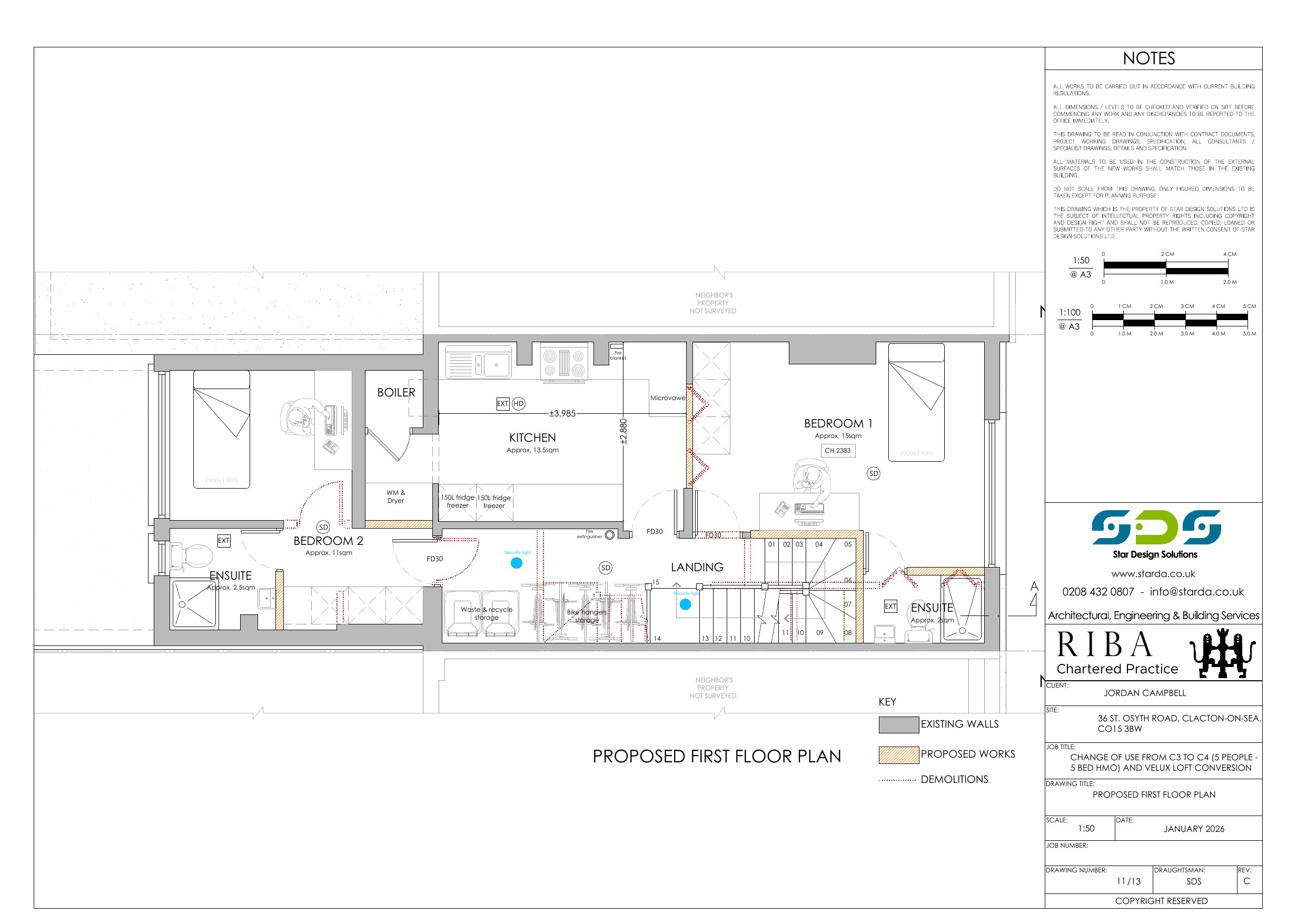
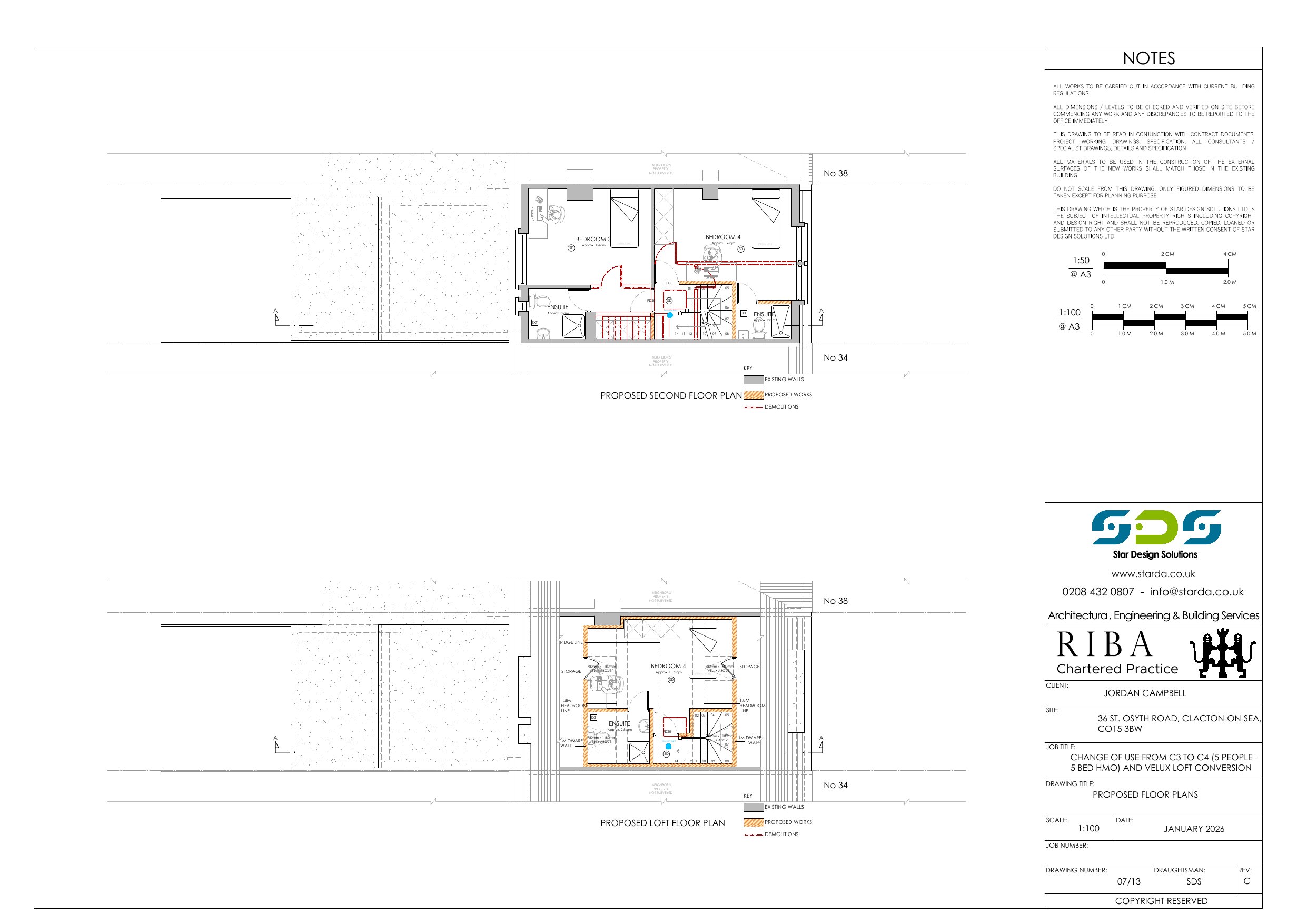
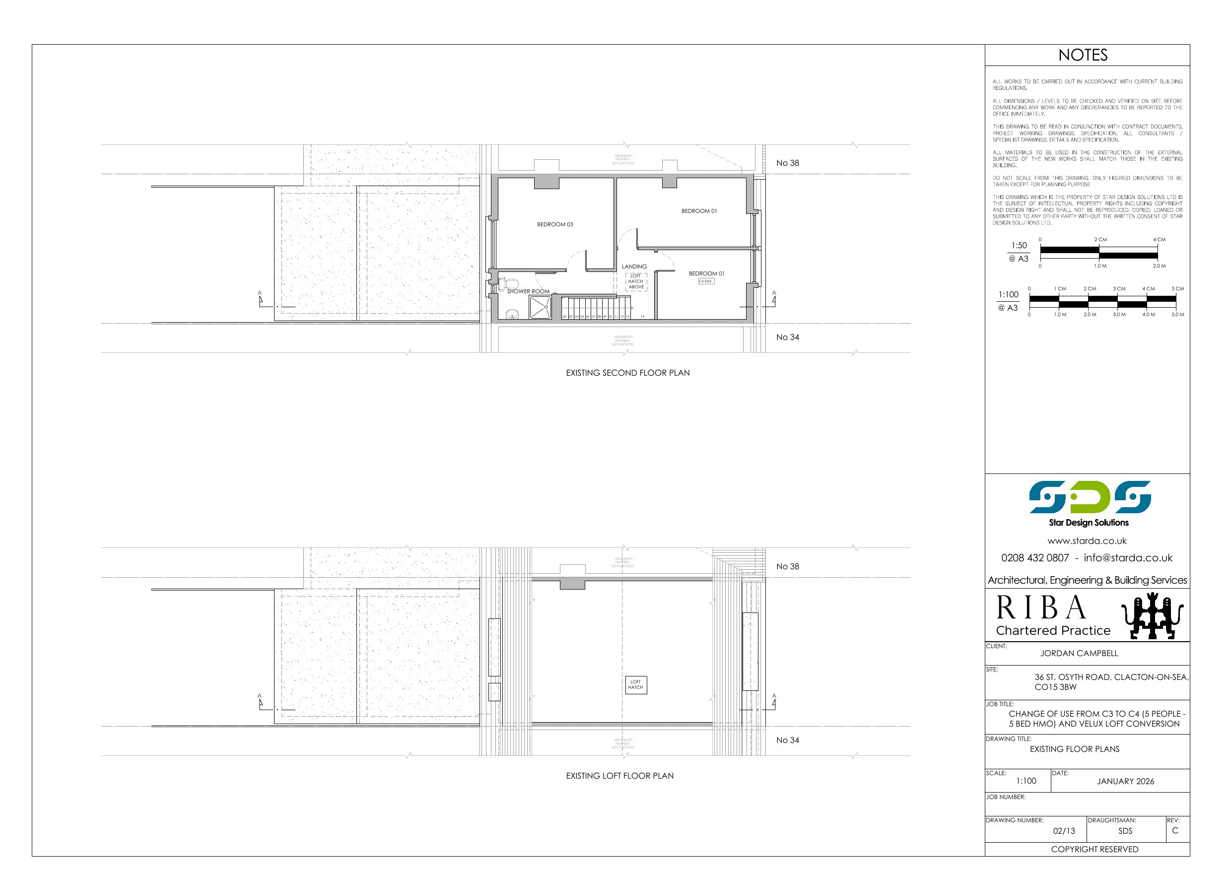
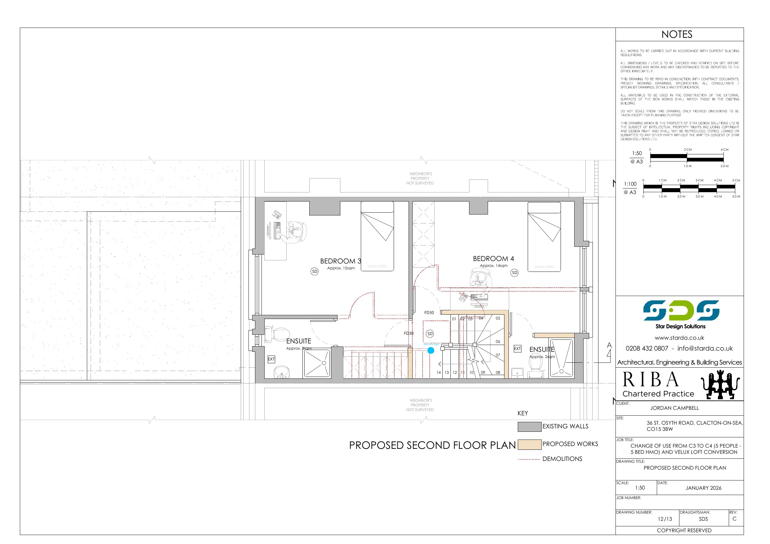
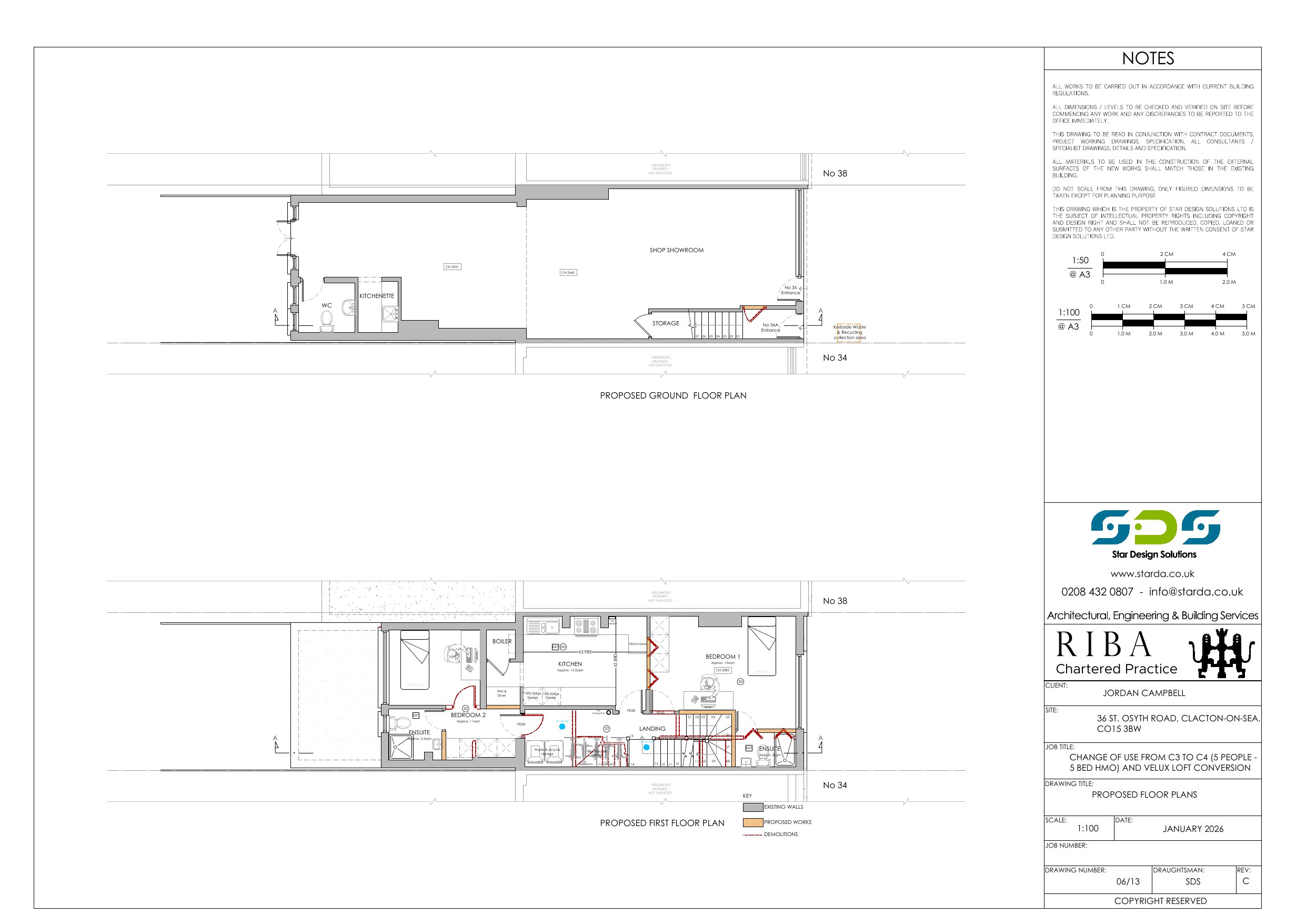
Planning Application - Change of use C3 to C4 (5 People - 5 Bed HMO) and loft conversion including the insertion of two rooflights in the front slope and two rooflights in the rear slope.

Have your say

Your comment matters. Councils must consider every representation that raises material planning considerations.

Write a comment