← Tendring District Council

Status

Awaiting decision House extension
Received
Last month
New homes
0

Full proposal

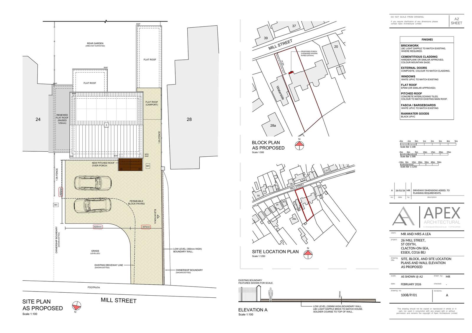
Householder Planning Application - Replacement windows/doors, pitched roof to front flat roof element, material changes to facade and driveway alterations.

Documents

Acknowledgement letter
Acknowledgement Letter
Not yet archived · Original link
Application form - rec'd 24.02.26
Application Form
Not yet archived · Original link
Correspondence
Correspondence
Not yet archived · Original link
Design, access and heritage statement - rec'd 26.02.26
Report
Not yet archived · Original link
Existing floor, roof and elevations plan - rec'd 26.02.26
Drawing
Not yet archived · Original link
Material board - rec'd 24.02.26
Report
Not yet archived · Original link
Proposed floor, roof and elevations plan - rec'd 26.02.26
Drawing
Not yet archived · Original link
Proposed front door - rec'd 9.2.26
Drawing
Not yet archived · Original link
Proposed left of front door window - rec'd 9.2.26
Drawing
Not yet archived · Original link
Proposed lower front left window - rec'd 9.2.26
Drawing
Not yet archived · Original link
Proposed lower front window - rec'd 9.2.26
Drawing
Not yet archived · Original link
Proposed upper front left bedroom window - rec'd 9.2.26
Drawing
Not yet archived · Original link
Proposed upper front right bedroom window - rec'd 9.2.26
Drawing
Not yet archived · Original link
Proposed window right of front door - rec'd 9.2.26
Drawing
Not yet archived · Original link
Site notice
Site Notice
Not yet archived · Original link
Site photos - rec'd 09.02.26
Photo
Not yet archived · Original link

Have your say

Your comment matters. Councils must consider every representation that raises material planning considerations.

Write a comment