← Tendring District Council

Status

Awaiting decision New housing
Received
Last month
New homes
2

Full proposal

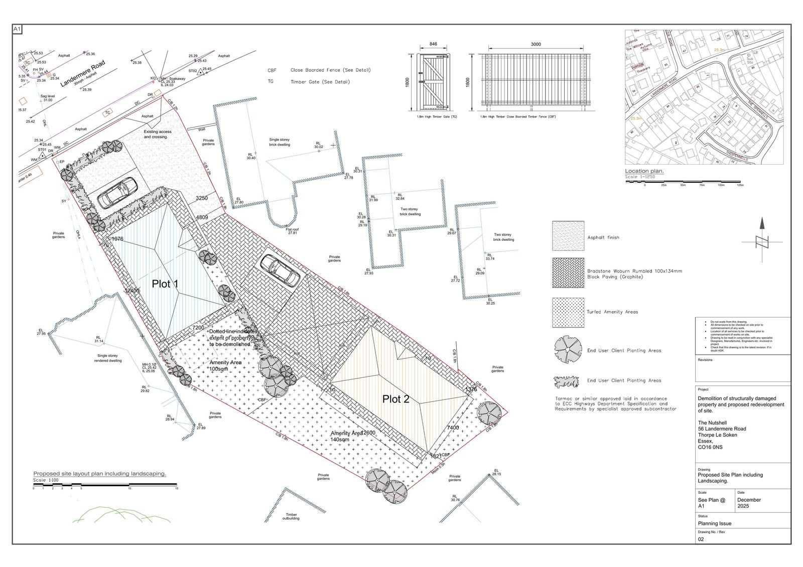
Planning Application - Demolition of existing dwelling. Erection of two x 1 bed self-build bungalows.

Documents

Acknowledgement letter
Acknowledgement Letter
Not yet archived · Original link
Application form - rec'd 24/02/2026
Application Form
Not yet archived · Original link
Broadband details - rec'd 24/02/2026
Other
Not yet archived · Original link
Construction method statement - rec'd 24/02/2026
Report
Not yet archived · Original link
Correspondence
Correspondence
Not yet archived · Original link
Energy statement - rec'd 24/02/2026
Report
Not yet archived · Original link
Ev charging specification - rec'd 24/02/2026
Report
Not yet archived · Original link
Habitat regulation assessment
BackGround Papers
Not yet archived · Original link
Planning statement - rec'd 24/02/2026
Report
Not yet archived · Original link
Self-build and custom-build register application form - sb802970912 - rec'd 24/0
Other
Not yet archived · Original link
Self-build and custom-build register application form - sb802974293 - rec'd 24/0
Other
Not yet archived · Original link
Self-build declaration lvl form - rec'd 24/02/2026
Other
Not yet archived · Original link
Site and block plans, existing floor plans and elevations - rec'd 24/02/2026
Drawing
Not yet archived · Original link
Site notice
Site Notice
Not yet archived · Original link

Have your say

Your comment matters. Councils must consider every representation that raises material planning considerations.

Write a comment