← Test Valley Borough Council

Status

Current Demolition
Received
10 Oct 2024
New homes
0

Full proposal

Demolition of meeting hall and redevelopment to provide 1 house and 4 flats, together with parking and landscaping

Documents

ADDITIONAL - ARBORICULATUAL IMPACT ASSESSMENT
Supporting Information
Not yet archived · Original link
ADDITIONAL - DRAINAGE STATEMENT
Supporting Information
Not yet archived · Original link
ADDITIONAL - DRAINAGE STRATEGY
Drawing
Not yet archived · Original link
ADDITIONAL - ECOLOGY ADDENDUM
Supporting Information
Not yet archived · Original link
ADDITIONAL - EMAIL FROM AGENT DATED 30.01.2026
Supporting Information
Not yet archived · Original link
ADDITIONAL - INDICATIVE PILING SOLUTION
Drawing
Not yet archived · Original link
ADDITIONAL - SUDS MAINTENANCE GUIDE
Supporting Information
Not yet archived · Original link
ADDITIONAL RESPONSE TO ECOLOGY CONSULTATION
Supporting Information
Not yet archived · Original link
ADDITIONAL ROOT PROTECTION AREAS
Supporting Information
Not yet archived · Original link
ADDITIONAL TREE LOCATION PLAN
Drawing
Not yet archived · Original link
ADDITIONAL TREE SURVEY
Supporting Information
Not yet archived · Original link
ADDITIONAL TREE SURVEY AND PLAN
Supporting Information
Not yet archived · Original link
AMENDED - PROPOSED ELEVATIONS OF NEW FLATS
Drawing
Not yet archived · Original link
AMENDED BNG FEASIBILITY STUDY
Supporting Information
Not yet archived · Original link
AMENDED UPDATED PRELIMINARY ECOLOGICAL APPRAISAL
Supporting Information
Not yet archived · Original link
ANDOVER TOWN COUNCIL
Consultation Responses
Not yet archived · Original link
APPLICATION FORM
Supporting Information
Not yet archived · Original link
BAT ROOST CHARACTERISATION SURVEY REPORT
Supporting Information
Not yet archived · Original link
BIODIVERSITY METRIC CALCULATION TOOL
Supporting Information
Not yet archived · Original link
BIODIVERSITY METRIC CALCULATION TOOL
Supporting Information
Not yet archived · Original link
BIODIVERSITY METRIC CALCULATION TOOL
Supporting Information
Not yet archived · Original link
BIODIVERSITY METRIC CONDITION ASSESSMENTS
Supporting Information
Not yet archived · Original link
BUILDING CONDITION REPORT
Supporting Information
Not yet archived · Original link
CONSERVATION
Consultation Responses
Not yet archived · Original link
COVERING LETTER
Supporting Information
Not yet archived · Original link
ECOLOGY
Consultation Responses
Not yet archived · Original link
ECOLOGY (TVBC)
Consultation Responses
Not yet archived · Original link
ECOLOGY (TVBC)
Consultation Responses
Not yet archived · Original link
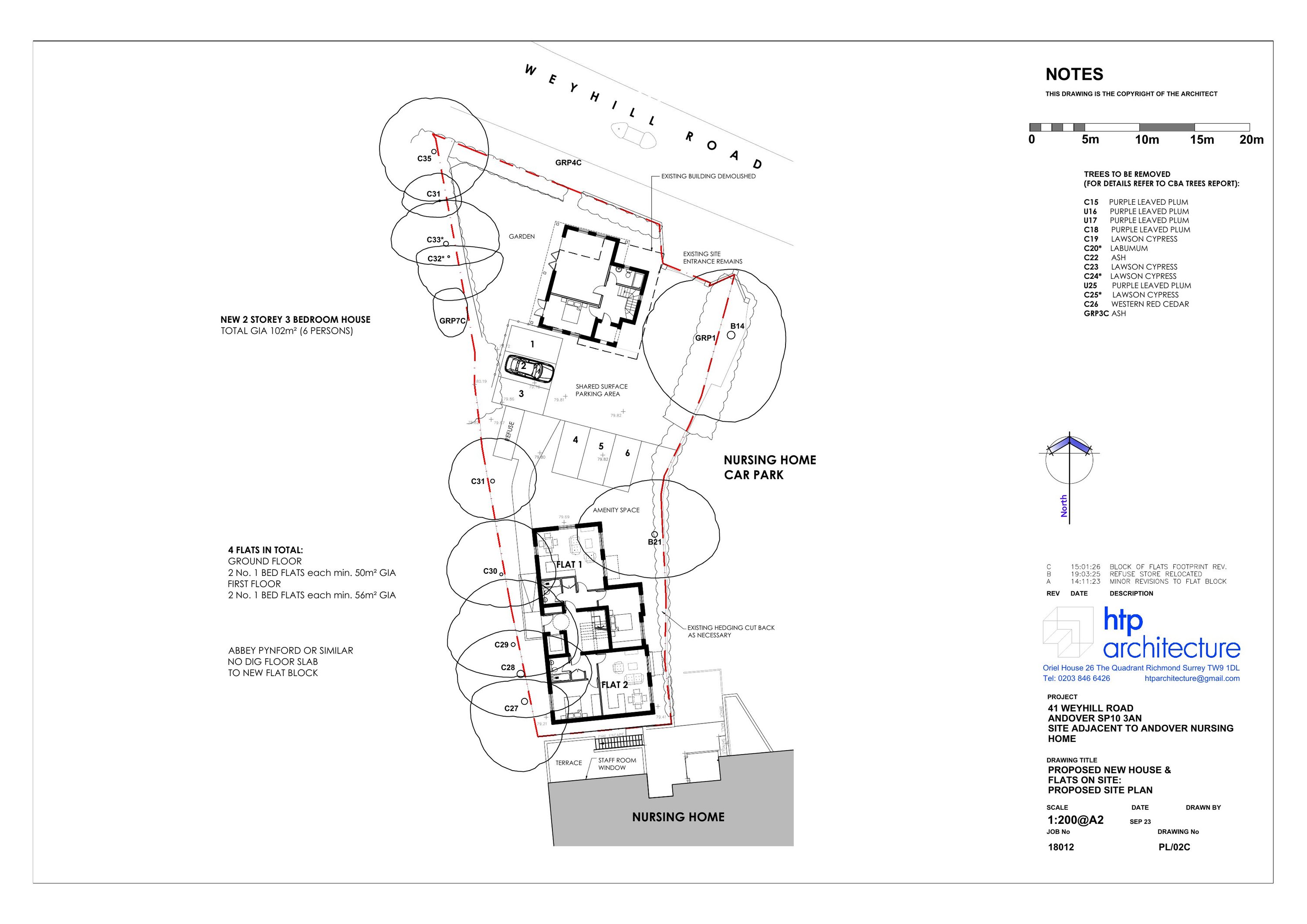
Drawing
Archived · Original link
HIGHWAYS (HCC)
Consultation Responses
Not yet archived · Original link
HOUSING (TVBC)
Consultation Responses
Not yet archived · Original link
MARKETING REPORT
Supporting Information
Not yet archived · Original link
NITROGEN BUDGET ? SEPTEMBER 2023
Supporting Information
Not yet archived · Original link
NUTRIENT NEUTRALITY BUDGET CALCULATOR
Supporting Information
Not yet archived · Original link
PLANNING AND HERITAGE STATEMENT
Supporting Information
Not yet archived · Original link
POLICY (TVBC)
Consultation Responses
Not yet archived · Original link
PRELIMINARY ECOLOGICAL APPRAISAL
Supporting Information
Not yet archived · Original link
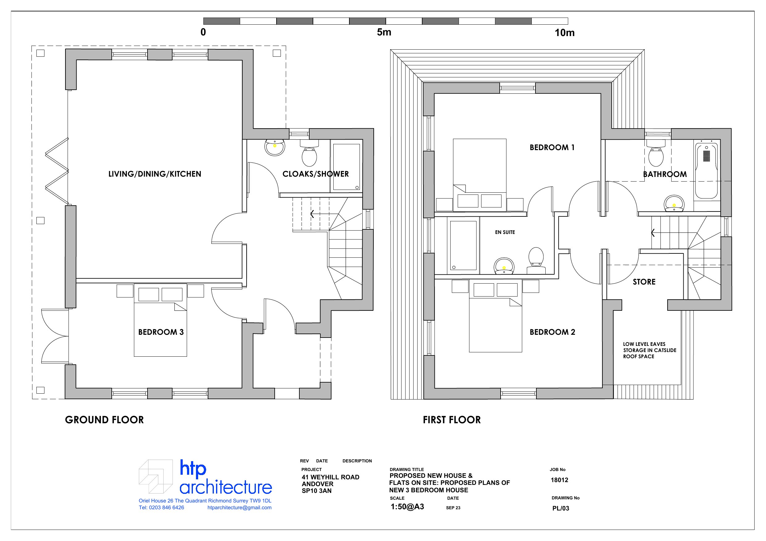
PROPOSED ELEVATIONS - 3-BED HOUSE
Drawing
Not yet archived · Original link
RECYCLING
Consultation Responses
Not yet archived · Original link
Drawing
Archived · Original link
TRANSPORT ASSESSMENT
Supporting Information
Not yet archived · Original link
TREE SURVEY
Supporting Information
Not yet archived · Original link
TREES (TVBC)
Consultation Responses
Not yet archived · Original link
TREES (TVBC)
Consultation Responses
Not yet archived · Original link
TREES (TVBC)
Consultation Responses
Not yet archived · Original link
TREES (TVBC)
Consultation Responses
Not yet archived · Original link

Have your say

Your comment matters. Councils must consider every representation that raises material planning considerations.

Write a comment