← Test Valley Borough Council

Status

Current New housing
Received
13 Feb 2025
New homes
5

Full proposal

Erection of five dwellings and garages

Documents

ADDITIONAL - ARBORICULTURE ASSESSMENT AND METHOD STATEMENT
Supporting Information
Not yet archived · Original link
ADDITIONAL - HABITATS REGULATIONS ASSESSMENT
Supporting Information
Not yet archived · Original link
ADDITIONAL - HRA
Supporting Information
Not yet archived · Original link
ADDITIONAL - NITRATES CALCULATOR
Supporting Information
Not yet archived · Original link
ADDITIONAL - NITRATES CALCULATOR
Supporting Information
Not yet archived · Original link
ADDITIONAL - TREE PROTECTION PLAN
Supporting Information
Not yet archived · Original link
AMENDED PLANTING PLAN
Drawing
Not yet archived · Original link
APPLICATION FORM
Supporting Information
Not yet archived · Original link
BLOCK PLAN
Drawing
Not yet archived · Original link
BNG REPORT/METRIC
Supporting Information
Not yet archived · Original link
COLE
Public Comments
Not yet archived · Original link
DRAINAGE STRATEGY & FLOOD RISK ASSESSMENT
Supporting Information
Not yet archived · Original link
DRAINAGE STRATEGY ADDENDUM
Supporting Information
Not yet archived · Original link
ECOLOGICAL ASSESSMENT
Supporting Information
Not yet archived · Original link
ECOLOGY (TVBC)
Consultation Responses
Not yet archived · Original link
ECOLOGY (TVBC)
Consultation Responses
Not yet archived · Original link
ENVIRONMENTAL PROTECTION TEAM (TVBC)
Consultation Responses
Not yet archived · Original link
FURTHER COMMENTS FROM NATURESPACE
Consultation Responses
Not yet archived · Original link
FURTHER ECOLOGY COMMENTS (TVBC)
Consultation Responses
Not yet archived · Original link
FURTHER RESPONSE FROM NATURESPACE
Consultation Responses
Not yet archived · Original link
GLANVILLE (ON BEHALF OF LRM HOLDINGS LIMITED)
Public Comments
Not yet archived · Original link
GLANVILLE GROUP (ON BEHALF OF LRM HOLDINGS LIMITED)
Public Comments
Not yet archived · Original link
HEALTH PROMOTION (COMMUNITY & LEISURE)
Consultation Responses
Not yet archived · Original link
HIGHWAYS (HCC)
Consultation Responses
Not yet archived · Original link
LANDSCAPE (TVBC)
Consultation Responses
Not yet archived · Original link
MANUAL FOR MANAGING TREES
Supporting Information
Not yet archived · Original link
MR GEORGE BAKER(FULL)
Public Comments
Not yet archived · Original link
MR TIM GRIFFITHS(FULL)
Public Comments
Not yet archived · Original link
NATURAL ENGLAND
Consultation Responses
Not yet archived · Original link
NATURAL ENGLAND
Consultation Responses
Not yet archived · Original link
NATURESPACE PARTNERSHIP
Public Comments
Not yet archived · Original link
PLANNING STATEMENT
Supporting Information
Not yet archived · Original link
POLICY (TVBC)
Consultation Responses
Not yet archived · Original link
PROPOSAL CONFIRMATION
Supporting Information
Not yet archived · Original link
PROPOSED ACCESS
Drawing
Not yet archived · Original link
PROPOSED SITE SECTIONS
Drawing
Not yet archived · Original link
ROMSEY & DISTRICT SOCIETY (NATURAL ENVIRONMENT COMMITTEE)
Public Comments
Not yet archived · Original link
ROMSEY & DISTRICT SOCIETY (NATURAL ENVIRONMENT COMMITTEE)
Public Comments
Not yet archived · Original link
ROMSEY TOWN COUNCIL
Consultation Responses
Not yet archived · Original link
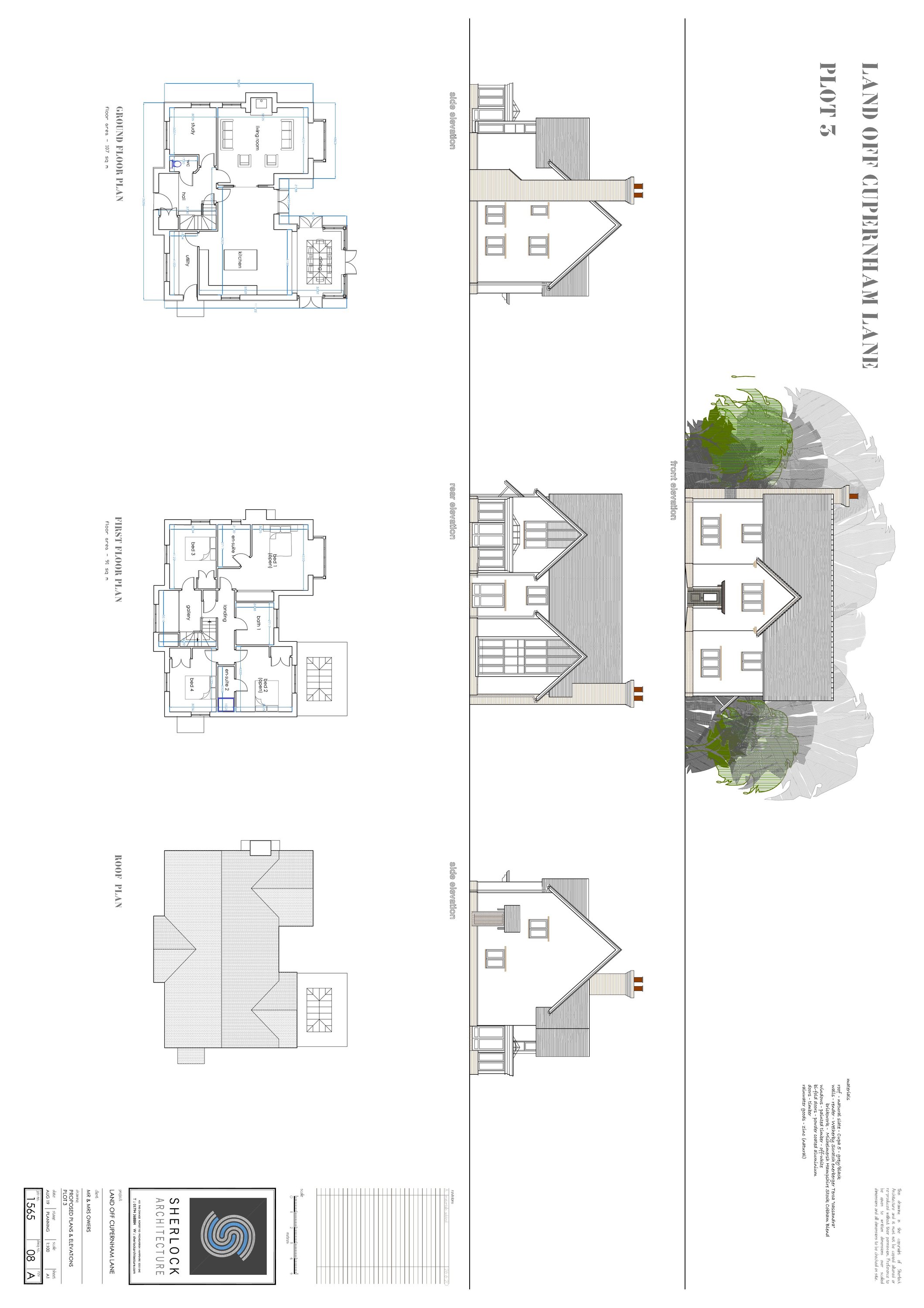
Drawing
Archived · Original link
SOUTHERN AREA PLANNING COMMITTEE
Officer Report
Not yet archived · Original link
SOUTHERN AREA PLANNING COMMITTEE
Officer Report
Not yet archived · Original link
TREES (TVBC)
Consultation Responses
Not yet archived · Original link
TREES (TVBC)
Consultation Responses
Not yet archived · Original link

Have your say

Your comment matters. Councils must consider every representation that raises material planning considerations.

Write a comment